查看完整案例


收藏

下载
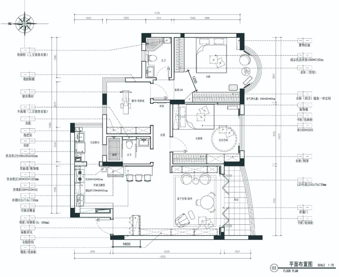
屋主是三口之家,希望屋内光线充足,整体是宽敞大气的,空间与空间之间能有充分沟通和互动。全屋整体是原木色系,柔软的中性色和奶油白为主体色调,搭配了暖色木质家具,绿植的点缀让整个空间氛围明亮温馨。全屋完善的收纳系统,考虑到了屋主十年以上的生活诉求。房屋信息:位置:广东·广州面积:107㎡户型:三居风格:简约原木风平面布置图:
优化后的平面功能规划方案:● 增加独立入户玄关换鞋区
●开放式厨房改善采光
●餐厅区域餐桌的功能多样性,一桌多用
●开放健身区、收纳以及全身镜
●儿童房强大的收纳体系为学习成长规划方向
●主卧室改变门的朝向,解决了风水的基本禁忌
原始户型图:
- 原始户型过道对主卧室门且正对卫生间门
玄关
入户玄关,进门的收纳神器-蓝色洞洞板,大面积的蓝色与卡座相呼应,给人眼前一亮的感觉。木条屏风温馨且不挡光线,与门中门保留良好的通风。
-左滑查看开灯效果
换鞋卡座下方设置了感应灯,背光区也能明亮舒适。地面选择了耐磨的小花砖与整体搭配和谐。
客厅
客厅的墙壁选择了整体柜的设计,原木色柜体与简洁的哑光白色平板组合。为了避免空间过于单调,选择了柔软的中性色调单人椅,简单温馨又不失趣味。
客厅光线充足,窗外一片绿意盎然。闲暇之余三口之家在这里阅读、游戏,享受惬意的亲子时光。
每把椅子都是屋主亲自挑选,细节之处也体现了屋主的审美与生活品味。
厨房
开放式厨房让整个空间更加通透,改善了之前采光较差等问题。
餐厅
亲友聚会时将餐桌放在中心,日常靠墙摆放,餐桌摇身一变成为办公桌,为了日后方便移动设计师选用了底部带有滑轮的桌子。
书桌靠墙摆放时,餐厅活动最大化,屋主在此日常办公或陪伴孩子做手工。
卫浴
卫生间选用了全哑光的地砖,黑白灰的搭配经典永不过时。
生活阳台
定制整体柜完美的容纳了洗衣机和烘干机,小空间也有大容量。
主卧
主卧地台高,没有过多的繁复修饰,墙面木质装饰的点缀恰到好处,好像能看见屋主平静温馨的生活本心一样。
270°全景天窗是主卧的亮点,闲暇周末静坐于此享受阳光,感受生活的纯粹,简单的本质。
儿童房
儿童房有条件的一定首选向阳的空间,没有过多的修饰一切刚刚好。
分类收纳,一排排的小车模型是孩子的小小收藏,收纳区域成为了孩子的专属展览区。
· END
预约方式
或
同时
客服
消息
收藏
下载
最近































