查看完整案例


收藏

下载
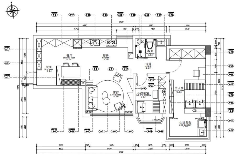
在这套仅有78㎡平米刚需之家,整体以现代北欧风格的装修与软装布置,在客餐厅刷了一面墨绿色的背景墙,通过大胆巧妙的色彩搭配,布置出一个稳重端庄的闲适空间感。
房屋位置丨广州市
面积户型丨78平米(二居)
常住成员丨2夫妻+1小孩
主要材质丨油漆、玻璃、石材、全屋定制
主题配色丨绿色、白色、雅色
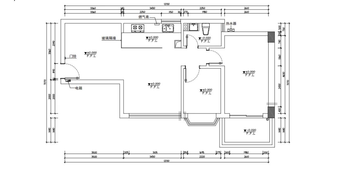
原始户型图>
改造后户型图>
落地还原度
玄关>
入户门在房子横向的正中间,所以一打开门就会看见房门。为了避免一眼看到底的尴尬,利用玄关柜隔绝部分视线是最简单直接的做法。
玄关一侧是到顶的鞋柜+换鞋凳组合,另一侧墙面则是挂了一面全身镜,带来的是一个充满实用精致的空间感。一张玄关凳在进出时,方便换鞋。
考虑到业主有使用吸尘器的习惯,我们设计了吸尘器收纳系统
客厅>
小客厅在取消了电视的布置后,也是显得格外的宽敞。
在这套仅有78平米的中等户型,整体以现代北欧风格的装修与软装布置,在客餐厅刷了一面墨绿色的背景墙,通过大胆巧妙的色彩搭配,布置出一个稳重端庄的闲适空间感。
纯木沙发后面挂上一组简约精致的装饰物,显得沉稳而又雅致。
开放式厨房>
厨房整体简洁现代的空间,橱柜柜门加入简洁的线条,搭配灰色操作台,让空间显得充满现代感。
餐厅>
简洁的木质餐桌,搭配餐椅,顶上一盏白色吊灯,让用餐氛围显得简单而华丽。
这个餐桌是多功能的,可以是休闲阅读区,倒一杯咖啡坐在吧台前看看书;平常不用的时候能放一些出门必须带的物品,不容易忘记。
主人房
简洁的卧室衣柜门,布置在这个简雅大方的空间里,呈现出一个优雅端庄的空间感。
卧室以灰蓝色的背景墙,搭配一张灰色布艺床,床头两侧都做了吊灯,布置出一个稳重舒适的睡眠空间。
洗手间
卫生间在复古白色的墙面地面空间
阳台
洗衣机柜与洗手盆一体设计,让这个阳台空间利用得更加实用。
END
预约方
式
或
同时
客服
消息
收藏
下载
最近




































