查看完整案例


收藏

下载
每一个全案,都是私人订制
Customized for each project.
设计师用简约却不简单的细节打造了一个呈现灵性的住宅空间。室内有条不紊的纹理细节得到完美的呈现,结合内饰的点缀,材质赋予了整个空间高级质感的体现。整体有了趋向完美的比例感,其中感受绚烂高雅的空间气质。仅以简单而不失质感的空间设计,就给人带来一种宁静高贵的视觉感受。于现代极简主义中流露出写意之美,简雅而素淡。
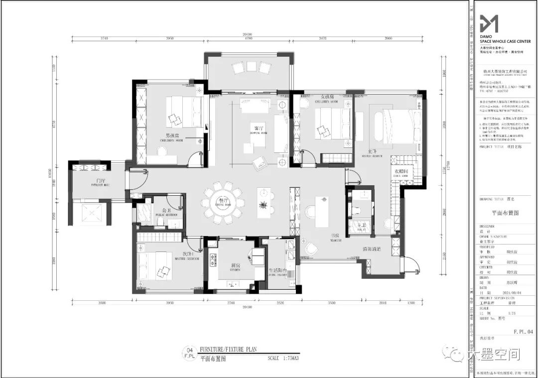
户型图
Plan
Project Information /项目信息
赣州·江山里
Project area/项目面积
180M
DesignInstitute/设计单位大墨空间全案中心Maindesign/主案设计廖秋萍CostumeDesign/软装设计廖秋萍
玄关Entrance
空间的艺术感、高级感以及体验感并不是单单靠表层的装饰堆砌而成,挖掘生活的有趣以及居住的意义,运用当代的、文化的、建筑的语言,通过物质与意识的双重传达,营造空间的艺术感、永恒感。
客厅Living room
现代简约的客厅,以注重功能性,追求理性,简洁、明朗的色彩而备受大家的喜爱,自然的材质与流畅的线条,却能让家居熠熠生辉。
餐厅Dining room
隐藏在干净利落的线条和简洁的配色之下的
是油盐酱醋茶般琐碎的日常烟火,亦是美食的汇集之地
餐厨区域作为客厅的延伸
从日常出发再思考
将我们带入极致、自然的生活氛围中
卧室Bedroom
简约的床头装饰配上一盏长吊灯室内一片静谧之感顺着阳光由浅入深打造成温文尔雅的心情居所整体色彩搭配和谐自然,烘托柔和的空间氛围床品、工艺品与灯具之间颜色相呼应明亮的色泽与哑光色泽的变换优雅尽显,符合主人简居舒适的气质
卫生间
Bathroom
卫生间的功能性比较强大,通过深灰色与白色的相互交错,可以打造出一种无限延伸的空间感;延伸阅读
For More Reading
公园大观|优雅的空间,岁月的静好
公司介绍
Company Profile
大墨空间全案中心,全称赣州大墨装饰工程有限公司,于2013年在赣州成立,专业打造高端住宅、办公环境、商业空间等设计及施工。多年来,公司致力于研究剖析行业现状和客户痛点,在赣州率先倡导全案理念和服务,全方位为客户解决设计难、选材难、价格控制难、施工落地难等痛点。公司秉承着”不走量”原则,专注于为少数人群服务的精致化路线,以确保满足客户高标准的个性化需求。
你和自己之间,只差一个理想家的距离。大墨空间为你找到更好的自己。联系设计师廖秋萍实景图片版权所有
The copyright of the live picture has been registered
Authorization DAMO SPACE WHOLE CASE CENTER account release
关注DAMO
TEL:15870708580
ADD:江西省赣州市经开区汉泰·上上城A1—20店铺三楼
大墨空间全案中心
客服
消息
收藏
下载
最近






















