查看完整案例


收藏

下载
曾几何时,“繁华”才是“品质”的代名词,奢侈隆重的欧式、法式也因此流行一时。
但年轻一代对生活的品味,显然不止于此,时髦的毫不费力,才是真法式!现代法式、奶油法式、混搭法式应运而生。法式越来越“轻”、装饰越来越少,但轻盈灵动的美感,却更俘获人心。
今天小诗为大家分享的,正是两套「轻法式」案例。当优雅法式邂逅现代时尚,在空间中谱写一首轻法式的浪漫小调,让居室有了简洁又丰盈的美感。
「奥山澎湃城」
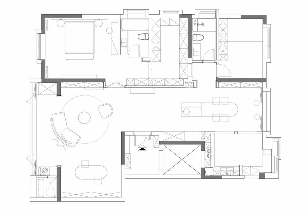
[ 项目简介
地址|Address:奥山澎湃城
面积|Square Meters:235㎡
风格|Style:法式复古
户型|Apartment:五房两厅一厨三卫
设计|Designer:诗享家设计
施工| Construction:诗享家施工
软装|Soft Decor:诗享家宅配
咨 询|诗享家咨询预约入口
本案屋主是一对海归夫妇,多年的海外生活,让他们对法式的建筑和风格极其钟情,这次装修新家,希望自己的家能兼具实用性和法式浪漫感。
空间上,考虑到目前家庭人口较少,从居住舒适度出发,将五房改为四房,打造一个自由活动的空间,让公共区域更为开阔。
[ 功能设计
↔️向
右滑动查看原始平面图
临近玄关的小房间布置 L 形储物柜,做专门的进出门收纳区,平时的衣物包包随手拿放。
大阳台一分为二,部分纳入客厅,增加空间尺度感,部分归入次卧,增加次卧空间功能。
客厅分为谈话观影区和吧台区两个部分来布置,打造社交型客厅。
餐厨空间做一体式开放设计,餐岛结合的形式,节约空间,用餐烹饪也更加方便。
[ 视觉设计
·客厅原始空间通透轩敞,加上奶油和原木配色,视觉上舒展大气,承载了纯粹且过目难忘的意境。阳台与客厅隔门拆除,气质拱门既划分出区域界线,又不影响两个空间的互动交流。
·沙发摒弃传统靠墙布置的方式,主沙发和单人沙发围合出一个安全感十足的对谈空间,家人闲坐,灯火可亲,家的温馨感一触即发。
·餐厨区一体布置,由客厅至餐厅,地面材质的变化暗示了区域场景的转化。黑白花纹地砖,方便打理,契合餐厨区功能定位。
·主卧为套房式设计,睡眠区空间摒弃繁琐装饰,以流畅线条、纯粹材质、温暖灯光,增加空间浪漫气质。
·床尾整墙通顶柜与墙面呼应,简约优雅之外,增加空间收纳功能。床头两侧的置物台精巧灵动,视觉上毫不臃肿。
「卧龙东方郡」
[ 项目简介
地址|Address:卧龙东方郡
面积|Square Meters:182㎡
风格|Style:现代法式
户型|Apartment:三室两厅一厨两卫
设计|Designer:诗享家设计
施工|Construction:诗享家施工
软装|Soft Decor:诗享家宅配
咨
询|
诗享家咨询预约入口
屋主是一对年轻小情侣,他们希望新家能够体现温暖舒服的质感。女屋主是个时尚达人,十分喜欢法式风格的高贵浪漫。设计师通过材质和色调的巧妙配合,为屋主打造自在精致居所。
[ 功能设计
↔️向
右滑动查看原始平面图
设计开放式书房,满足屋主办公阅读需求的同时,增加空间互动性。
厨房为 U 形设计,通过连接的储物柜和操作台,梳理出流畅的烹饪动线。
主卧隔门位于电视背景墙,布置储物柜,并统一柜门与卧室门的样式,弱化主卧正对客厅的尴尬感。
[ 视觉设计
· 根据屋主喜好,客厅选择暖白色为主调,构建出简约干净的空间框架。电视墙柜体与主卧门对称,且造型一致,减少了客厅正对主卧门的尴尬,又突出了空间的轴线对称之美。
· 墙面以石膏线条和法式角花装饰,搭配圆形吊顶和优雅灯带,客厅硬朗又温柔。现代时尚邂逅法式浪漫,在家造个“小巴黎”。
·弧形体态沙发与圆形小几相得益彰,展现出自然的柔软舒适感,给居者最大程度的放松。
·客厅中划出开放式书房,法式书桌搭配后方拱形开放格,典雅精致。
·大尺幅餐桌与岛台做一体式设计,凸显空间连贯性。岛台可做水吧台,也是便利西厨,分担厨房收纳和烹饪压力。
·餐厅吊顶延续圆形吊顶,灯带环绕,加上两盏氛围灯,营造出多变的就餐环境,给空间更多的解读视角。
诗享家咨询预约入口
[往期作品回顾]
你也喜欢这样的家?
诗享家咨询预约入口
[ 我们的荣誉
2021 安德马丁发现中国好设计年度推荐设计师
2021 年度优秀雅奢空间设计
2021 我要去米兰杰出青年设计师奖
2021「营造家奖」年度设计 TOP50
NCA 新商业空间大奖(2021-2022)杰出新商业空间设计师 TOP100
金案奖(2021-2022)·全国优胜奖
潮设计奖-2021 潮设计空间 TOP100
2021 金住奖-中国(武汉)十大居住空间设计师
2021 广州设计周 40UNDER40 中国(湖北)设计杰出青年奖
2020「营造家奖」年度推荐设计师全国百强
2020 广州设计周 40UNDER40 中国(湖北)设计杰出青年奖
2020HDA 她设计奖年度最佳设计
2020 幸福家设计大赛全国亚军
2020Hi-Design 室内设计大赛公寓组金奖
2019 金堂奖年度优秀住宅公寓设计、年度优秀办公室空间设计
2019 年第三届华中区室内设计新势力奖
2019 年好好住营造家奖年度最佳大户型设计 Top20
2018 年度达人设计总评榜全国百强
2018Hi-Design 第六届室内设计大赛优秀奖
2018 广州设计周 40UNDER40 中国(湖北)设计杰出青年奖
2017 中国空间设计大赛“鹏鼎奖”十佳豪宅空间奖、十佳公寓空间奖
2016 国际空间设计大奖“艾特奖”最佳陈设艺术设计奖
2016Hi-Design 第四届室内设计大赛优秀奖
2016 湖北室内设计总评榜住宅空间优秀奖
2016 第七届“筑巢奖”优秀作品
客服
消息
收藏
下载
最近






























