查看完整案例


收藏

下载
舒服和谐的住宅空间并不需要复杂华丽的装饰,有时候简简单单,空间更能达到隽永。
「华侨城」
[ 项目简介
地址|Address:华侨城
面积|Square Meters:145㎡
风格|Style:现代极简
户型|Apartment:三室两厅一厨两卫
设计|Designer:诗享家设计
施工| Construction:诗享家施工
软装|Soft Decor:诗享家宅配
咨
询|
诗享家咨询预约入口
屋主喜欢简单的居室风格,同时十分注重生活情调,希望自己的新家,能够通过以简驭繁的手法,创造出简约不失高级的生活环境。在功能方面,屋主希望有家人围聚闲谈之地,也有个人独处之所,通过空间的合理布局,平衡家人与自我之间的关系。
[ 功能设计
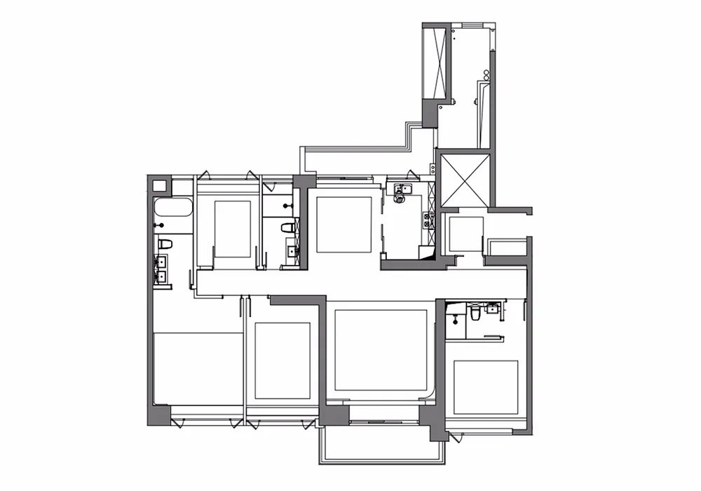
↔️向右滑动查看原始平面图。从原有主卧中分出一间书房,满足屋主对独处空间的追求。通过阳台,将客厅与书房联系起来,优化从客厅到书房的动线。两房合为一房,布置出更加宽绰的餐厅。餐厅设计岛台,划分客厅与餐厅边界。主卧由纵向变为横向布局,通过空间重组,做出大套房式主卧。[ 视觉设计]
·简约的配色搭配宽绰的空间布局,形成大气简洁的空间场域,客厅看似空空如也,实则满溢温情。·打通阳台,将客厅和书房连接起来,从公共活动区,到私人独处区,空间转换更加顺畅。通过合理的布局和连接方式,平衡家庭与个人的关系。
·由客厅望餐厅,扩充过后的用餐空间功能更加多样。通过岛台划分客厅与餐厅边界,不影响区域之间的交流感,也将区域功能进一步强化。
·餐厅依然以原木做主导材料,呼应居室整体氛围。岛台悬挑设计,视觉上更显轻盈,也为扫地机器人进出留下足够空间。
·书房与相邻阳台设计玻璃移门,既保证了房间的私密性,又不影响空间采光。依墙的整排书架,嵌入灯光系统,光线烘托下,空间更显静谧雅致。
·从原有主卧中分出一间房,布置为书房,斑驳纹理的木质书桌搭配舒适桌椅,独处时看书喝茶,怡然自得。
·卧室背景墙局部饰以格栅,在保证墙面色调统一的前提下,丰富视觉层次。两侧分别布置灯光系统,光线之下,睡眠空间更显静谧温馨。
·主卧通过空间重组,变为套房式设计。步入式衣帽间正对卧室阳台,为屋主打造明亮又实用的衣物收纳之地。床尾通过定制的书桌,填补空间凹陷,为女屋主打造专属的梳妆台。
「万科御玺滨江」
[ 项目简介
地址|Address:万科御玺滨江
面积|Square Meters:221㎡
风格|Style:现代简约
户型|Apartment:四室两厅一厨三卫
设计|Designer:诗享家设计
施工| Construction:诗享家施工
软装|Soft Decor:诗享家宅配
咨询|诗享家咨询预约入口
屋主热爱自然,希望自己的新家能尽可能多的融入自然元素,温暖的阳光,宜人的微风,温润的原木材质......在风格上偏爱简约时尚的设计,不用繁杂华丽的装饰,只是通过材质的对比与自然元素的运用,便能让空间达到隽永的风格。
我们在设计中十分注重通风采光,拆掉客餐厅与相邻阳台的隔断,改善空间通风采光,通过客厅阳台宽大的落地窗,屋主可随时欣赏自然美景,让居住成为一种精神上的自由式享受,提升生活舒适度。
[ 功能设计
↔️向
右滑动查看原始平面图
拆除客厅与阳台隔门,为室内引入更多自然光线,也方便屋主在阳台上放松观景。
打开餐厨空间,并设计吧台,优化烹饪用餐动线,空间在视觉上也毫无拥堵之感。
主卫干区内移,腾挪出更多空间布置储物柜,为屋主打造一间步入式衣帽间,增加主卧储物功能。
[ 视觉设计
·现代风格更注重以材质本身的质感增加空间气质,温润的原木,冷硬的仿大理石地砖、通透玻璃,将简洁干净的客厅衬托的高级感满满。·拆除阳台和客厅隔门,依凭款尺幅的落地窗,阳光更加自由的洒入室内,自然元素的烘托下,客厅有了别样美感。
客餐厅设计融入开放式理念,打造出串联家人情感的温馨场域,公共活动区成为一处可以抚平躁动心灵的舒心空间。
电视背景墙以黑色为主色,与白色的沙发墙形成对照,空间配色张弛有度。圆柱形落地灯,弱化墙面的厚重,透明的玻璃也让空间更有呼吸感。
·打通餐厅和厨房隔墙,适当比例的吧台设计,和木质餐桌通过材质的对照,形成空间韵律,提升餐厨空间的时尚感。
·餐椅选择高靠背样式,打造舒适放松的就餐环境。细金属椅脚与木质餐桌搭配,空间精致感油然而生。
·狭长的过道激发进入者对空间的探索欲望,以光线引导视线,空间更显神秘。
· 主卧背景墙以长城板、大理石和软包材质的叠加,丰富墙面视觉层次。灰色作为墙面主色,在床头灯光烘托下,立体感满满。
· 主卧内套的卫生间干区内移,留出更多空间布置储物柜,相对布置的柜子,为屋主打造出美观又实用的步入式衣帽间。
诗享家咨询预约入口
[ 往期作品回顾 ]
你也喜欢这样的家?
诗享家咨询预约入口
[ 我们的荣誉
2021 广州设计周 40UNDER40 中国(湖北)设计杰出青年奖
2020「营造家奖」年度推荐设计师全国百强
2020 广州设计周 40UNDER40 中国(湖北)设计杰出青年奖
2020HDA 她设计奖年度最佳设计
2020 幸福家设计大赛全国亚军
2020Hi-Design 室内设计大赛公寓组金奖
2019 金堂奖年度优秀住宅公寓设计、年度优秀办公室空间设计
2019 年第三届华中区室内设计新势力奖
2019 年好好住营造家奖年度最佳大户型设计 Top20
2018 年度达人设计总评榜全国百强
2018Hi-Design 第六届室内设计大赛优秀奖
2018 年度得意家专业设计引领品牌
2018 广州设计周 40UNDER40 中国(湖北)设计杰出青年奖
2017 中国空间设计大赛“鹏鼎奖”十佳豪宅空间奖、十佳公寓空间奖
2016 国际空间设计大奖“艾特奖”最佳陈设艺术设计奖
2016Hi-Design 第四届室内设计大赛优秀奖
2016 湖北室内设计总评榜住宅空间优秀奖
2016 第七届“筑巢奖”优秀作品
2016 得意生活最受网友欢迎装饰/设计品牌
2015 年青年文化创意奖
2012-2013 中国国际建筑装饰及设计博览会年度 50 强商业规划及空间设计师
2011 广州设计周金堂奖
2011“亨特窗饰杯”首届软装 100 设计盛典优秀作品奖
2008 年武汉十大设计师优秀奖
2007 威能杯设计师大赛武汉赛区银奖
发表的设计作品也被国内各大杂志采用,如《瑞丽家居》、《精品家居》、《南方周刊》、《BOSS》、《顶尖样板房》、《装潢世界》、《名石、名师、名宅》等,武汉的《第 1 生活》、《幸福》、《易网湖北》《腾讯大楚网》等等
客服
消息
收藏
下载
最近

































