查看完整案例


收藏

下载
大部分现代家庭的生活是:大人忙着工作,孩子忙着上学,火急火燎出门,披星戴月归家。与家人、朋友聚在一起的时间只有周末和晚餐前后。紧张的生活节奏让人们越来越渴望通过社交式的公共空间,来改变时间对亲情和友情的冲击。
本次两个案例,通过客餐厅一体化的布局,构建出一个利用率超高的家庭核心区域,轻松满足日常吃饭、亲友聚餐、社交娱乐、亲子互动等多种活动需求,让每个身处其中的成员,都有满满参与感。
「
城投翰城璞岸」
[ 项目简介
地址|Address:城投翰城璞岸
面积|Square Meters:101㎡
风格|Style:人文简约
户型|Apartment:三室两厅一厨一卫
设计|Designer:诗享家设计
施工|Construction:诗享家施工
软装|Soft Decor:诗享家宅配
咨 询|诗享家咨询预约入口
本案为一家三口,男业主从事 IT 行业,女业主从事旅游相关行业,孩子活泼可爱。因工作缘故,业主希望家能有足够的温馨感,让一家人可以自在放松地享受家庭生活。不喜欢过多的造型装饰,希望通过精简的设计,让空间呈现出简约高级的质感。
[ 功能设计
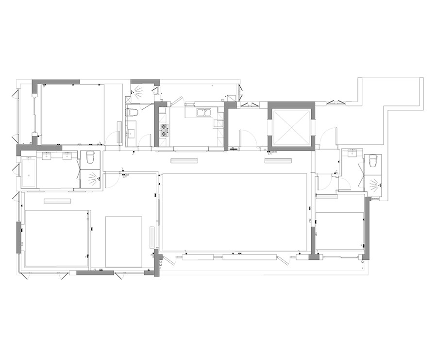
↔️向
右滑动查看原始平面图
三房改两房,将其中一间房融入到客餐厅空间中,作男业主办公区域,与餐厅、客厅形成一个开放的空间。
餐桌结合岛台形式,让空间的功能更加多元化。
厨房借餐厅部分面积,扩展烹饪空间。U 型布置的厨房,让美食制作一气呵成。[ 视觉设计
客餐厅以奶油色为主色调,硬装上融入弧形元素,营造出温暖柔和的空间氛围。电视背景墙与西厨区局部用上黑色艺术涂料,冷暖色调对撞,增加空间视觉亮点。筒灯作为客厅主照明,简洁大方。搭配的隐藏灯带,见光不见灯,抬眼望去,如天光倾泻而下,空间的归属感更上一层。
·考虑到目前屋主的家庭结构,三房改为两房,将其中一间房融入到客餐厅空间,做男屋主的办公之地。开放式的空间设计,通过打破空间物理阻隔,增进家人之间的亲密关系。
·主卧延续温馨优雅风格,奶油色背景墙上以黑色艺术涂料画出半圆造型,配色和用材上呼应公共空间,保持居室的整体调性。拆除飘窗后,以温润木材搭出简约书桌,为屋主留下睡前就近看书工作的空间。
·儿童房以软包材质做出立体三角造型,空间中的童趣被瞬间激发。床尾的储物柜和大尺幅书桌一体式规划,从实用角度出发,传达父母对孩子的爱与期盼。
·卫生间在有限空间内实现了功能的多样化。一体式台盆下方增设两层抽屉式储物柜,分担台面收纳压力。壁挂式马桶、玻璃移门,节省空间,保持卫生间视觉上的简洁大方。
「创新国际社区」
[ 项目简介
地址|Address:创新国际社区
面积|Square Meters:210㎡
风格|Style:现代简约
户型|Apartment:四室两厅一厨三卫
设计|Designer:诗享家设计
施工|Construction:诗享家施工
软装|Soft Decor:诗享家宅配
咨询|诗享家咨询预约入口
本案是精装修改造项目,业主是一对温文尔雅,追求生活品质的年轻夫妻。喜欢简洁、大方、温润的空间氛围,家里有大量的书籍需存纳,希望有充裕的储物空间,希望家是一个陪伴孩子成长,充满温情的所在。
空间功能上整体大格局保持不变,保留三房和一间书房,厨卫不变。
[ 功能设计
↔️向
右滑动查看原始平面图
客餐厅一体化设计,并将阳台融入室内,增加了空间通透性。
西厨区另设收纳空间,分担厨房收纳压力。餐桌加岛台的形式,满足不同生活场景的需求,赋予餐更多的社交功能。
拆掉餐厅与书房梭门,使书房与客餐厅在视觉上连成一体,功能上又保持独立。
将阳台并入儿童房,增加孩子玩乐、学习区域。
[ 视觉设计
·客餐厅发挥地理位置优势,大尺幅落地窗,让自然光景成为空间的一部分,延伸视觉,增加室内通透度。
·电视背景利用框景的手法将原本细碎的空间整合在一起,沉稳硬朗的黑色石材,将整个公共空间的视觉中心聚焦于此。
·餐岛一体的设计,增加餐厅应用场景。书房与餐厅梭门拆除,半开放的书房与客餐厅在视觉上连成一体,功能上又可保持独立。
·主卧空间轩敞明亮,干净的奶油色调与沉稳高级灰,营造出温柔不失静谧的适睡氛围。窗台处别出心裁的设计,将屋主细腻精致的生活态度,通过细节传达出来。
·儿童房将阳台纳入其中,增加空间可布置面积。床头一侧以书桌代替床头柜,搭配上墙的置物板,为孩子留下看书学习之地。床尾的结构型置物柜,摒弃厚重,保证功能的同时,考虑到空间观赏性。
诗享家咨询预约入口
[ 往期作品回顾
你也喜欢这样的家?
诗享家咨询预约入口
[ 我们的荣誉
NCA 新商业空间大奖(2021-2022)杰出新商业空间设计师 TOP100
金案奖(2021-2022)·全国优胜奖
潮设计奖-2021 潮设计空间 TOP100
2021 金住奖-中国(武汉)十大居住空间设计师
2021 广州设计周 40UNDER40 中国(湖北)设计杰出青年奖
2020「营造家奖」年度推荐设计师全国百强
2020 广州设计周 40UNDER40 中国(湖北)设计杰出青年奖
2020HDA 她设计奖年度最佳设计
2020 幸福家设计大赛全国亚军
2020Hi-Design 室内设计大赛公寓组金奖
2019 金堂奖年度优秀住宅公寓设计、年度优秀办公室空间设计
2019 年第三届华中区室内设计新势力奖
2019 年好好住营造家奖年度最佳大户型设计 Top20
2018 年度达人设计总评榜全国百强
2018Hi-Design 第六届室内设计大赛优秀奖
2018 年度得意家专业设计引领品牌
2018 广州设计周 40UNDER40 中国(湖北)设计杰出青年奖
2017 中国空间设计大赛“鹏鼎奖”十佳豪宅空间奖、十佳公寓空间奖
2016 国际空间设计大奖“艾特奖”最佳陈设艺术设计奖
2016Hi-Design 第四届室内设计大赛优秀奖
2016 湖北室内设计总评榜住宅空间优秀奖
2016 第七届“筑巢奖”优秀作品
2016 得意生活最受网友欢迎装饰/设计品牌
2015 年青年文化创意奖
2012-2013 中国国际建筑装饰及设计博览会年度 50 强商业规划及空间设计师
2011 广州设计周金堂奖
2011“亨特窗饰杯”首届软装 100 设计盛典优秀作品奖
2008 年武汉十大设计师优秀奖
2007 威能杯设计师大赛武汉赛区银奖
发表的设计作品也被国内各大杂志采用,如《瑞丽家居》、《精品家居》、《南方周刊》、《BOSS》、《顶尖样板房》、《装潢世界》、《名石、名师、名宅》等,武汉的《第 1 生活》、《幸福》、《易网湖北》《腾讯大楚网》等等
客服
消息
收藏
下载
最近































