查看完整案例


收藏

下载
对于亚当而言,天堂是他的家;然而对于亚当的后裔而言,家是他们的天堂。
——伏尔泰
本案为一幢三层别墅,我们规划出了私人影院、健身场地、舞蹈房、酒吧、休闲娱乐室,生活区和储物区,满足用户对多功能空间的追求;在家具配置上,多用经典款,营造出和谐、典雅的居室氛围;配色上以浅色系为主,赋予空间温暖质感,又在细节处点缀亮色,整个空间稳重温暖,活力不减;并通过天井露台、大面积落地窗,将自然风景纳入室内,身居家中,也能感受到满满自然氛围。
每一寸空间的布置,每一种材质的运用,每一处细节的设计,都是对于空间的解读与重塑,在极简空间中碰撞出满满夏日度假风。
金地圣爱米伦
[项目简介
地址|Address:金地圣爱米伦
面积|Square Meters:430㎡
风格|Style:现代简约
户型|Apartment:四房三厅一厨三卫
设计|Designer:诗享家设计
施工|Construction:诗享家施工
软装|Soft Decor:诗享家软装
咨询|诗享家咨询预约入口]
[客户需求
生活于繁忙都市,屋主追求“有品质,无负担”的居家氛围,我们把简约现代理念贯穿设计始终,为空间减负,又以高品质材质,赋予居室满满质感,契合屋主简约不简单的生活准则。]
[功能设计
根据屋主的生活习惯,结合空间原始布局,我们重新规划空间,让各个空间彼此独立又隐隐呼应,打造出一个宜居性与趣味性兼具的家。]
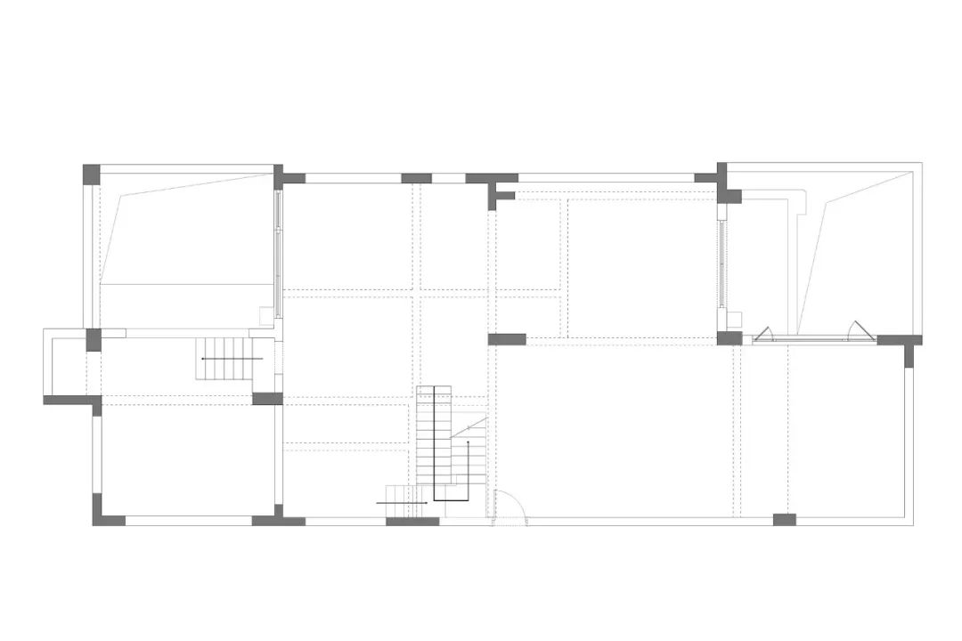
↔️
左右滑动,查看-1F 户型设计
// 打破沉闷,空间功能多样又通透
保留天井内庭院,多方位引入自然光,同时大面积运用玻璃,打造出舒适明亮的地下层休闲娱乐空间;
空间化零为整,用极具古典特色的拱形门洞,融合现代的手法,去做区域的分割处理。空间之间彼此独立又相互贯通,为家人互动提供方便;
墙面做出弧形角度,弱化直角的冷硬感,空间氛围更加和谐;
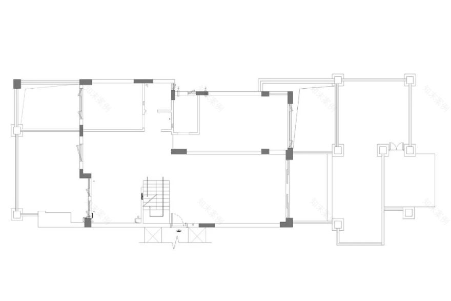
↔️左右滑动,查看 1F 户型设计// 缩短动线,生活更为便利一楼为生活区,布置出客厅、餐厅、厨房、卧室等,空间规划合理,生活更为便利;客厅上部挑空,获得更为大气朗阔的公共空间,一侧设计大面积落地窗,室内光线丰盈,空间更显明亮;
↔️
左右滑动,查看 2F 户型设计
// 重构空间,收获静谧休憩空间
二楼为休息休闲区,布置出两间套房式卧室,屋主休息空间私密性与功能性兼备;二楼平台的布置满足休息、社交及阅读的功能,穿过玻璃栏杆与一楼形成视觉上的空间交互。
[ 视觉设计 ]
·一层客厅巧借自然光,大面积落地窗让室内外空间连贯互动,光线入室,空间自然大气。白色与原木的搭配,用素调诠释温馨,再点缀绿植,客厅纯净不失活力。
·客厅顶部直通二层,朗阔的层高自带庄严大气之感,线性几何块状吊灯,以形状的变化和高度的不同,打破空间序列,同时光线角度更为丰富多样。
· 电视背景墙做出凹陷空间,将电视纳入其中,空间层次更为分明。背景墙以青草绿装饰,与室内绿植与户外的自然风景形成呼应。
· 从入户走廊到客厅,以拱形门隔开,柔和的线条为室内注入满满人文气息。
·餐厨空间以岛台分割,两个空间互通连贯又彼此保持独立。室外光线进入餐厅,原木餐椅与大理石餐桌在光的渲染下碰撞出质感十足的空间氛围。
·一层厨房以白色奠定空间纯净基调,地面彩色斑点水磨石地砖,在保持整体色调统一的基础上,用细碎花纹赋予空间呼吸感。
·地下层空间功能丰富,各个空间分区明确又用设计手法相互串联,以藤编材质的拱形门作为不同场域的分割,又用不同光源以光域形成界线。空间各具特色又和谐一致。
·宴客餐桌规整大气,两侧餐椅两两相对,秩序感十足,一侧的大面积落地窗引景入室,温暖阳光调和严肃氛围,觥筹交错,宾主尽欢。
·原木色餐桌颇具田园风情,仿水磨石岛台,正面以木质装饰,与餐桌形成视觉上的统一,又富有意趣。法式拱门与弧形墙面形成呼应,玻璃+原木的选材保证空间光线充足,同时赋予空间满满温情。
·休闲区布置简约,白色柜体储物功能强大,两张单人沙发搭配花瓣形小几,舒适不乏精致。
诗享家咨询预约入口
[ 往期作品回顾 ]
你也喜欢这样的家?
诗享家咨询预约入口
[ 我们的荣誉]
2020 广州设计周 40UNDER40 中国(湖北)设计杰出青年奖
2020HDA 她设计奖年度最佳设计
2020 幸福家设计大赛全国亚军
2020Hi-Design 室内设计大赛公寓组金奖、优秀奖
2019 金堂奖年度优秀住宅公寓设计、年度优秀办公室空间设计
2019 年第三届华中区室内设计新势力奖
2019 年好好住营造家奖年度最佳大户型设计 Top20
2018 年度达人设计总评榜全国百强
2018Hi-Design 第六届室内设计大赛优秀奖
2018 年度得意家专业设计引领品牌
2018 广州设计周 40UNDER40 中国(湖北)设计杰出青年奖
2017 中国空间设计大赛“鹏鼎奖”十佳豪宅空间奖、十佳公寓空间奖
2016 国际空间设计大奖“艾特奖”最佳陈设艺术设计奖
2016Hi-Design 第四届室内设计大赛优秀奖
2016 湖北室内设计总评榜住宅空间优秀奖
2016 第七届“筑巢奖”优秀作品
2016 得意生活最受网友欢迎装饰/设计品牌
2015 年青年文化创意奖
2012-2013 中国国际建筑装饰及设计博览会年度 50 强商业规划及空间设计师
2011 广州设计周金堂奖
2011“亨特窗饰杯”首届软装 100 设计盛典优秀作品奖
2008 年武汉十大设计师优秀奖
2007 威能杯设计师大赛武汉赛区银奖
发表的设计作品也被国内各大杂志采用,如《瑞丽家居》、《精品家居》、《南方周刊》、《BOSS》、《顶尖样板房》、《装潢世界》、《名石、名师、名宅》等,武汉的《第 1 生活》、《幸福》、《易网湖北》《腾讯大楚网》等等
客服
消息
收藏
下载
最近
































