查看完整案例


收藏

下载
家是容器,真正承载的是生活。摒弃繁杂装饰,让家回归自然与舒适,在简单生活中寻找生活的小确幸。
本案为别墅的上叠,共三层。一楼和二楼的空间较为方正,三楼是一个斜角空间,可利用空间较少。屋主对原始户型的空间布局不太满意,希望我们能够重构整个空间,以满足屋主的需求。
于是,我们根据一家人的生活习惯和喜好,按照功能区分原则,将空间重新划分,使各个空间各自独立又有相互的呼应和连接,让这个家功能与趣味性并存!
光谷未来城
[ 项目简介
地址|Address:光谷未来城
面积|Square Meters:128㎡
风格|Style:现代
户型|Apartment:别墅・上叠
设计|Designer:诗享家设计
施工|Construction:诗享家施工
软装|Soft Decor:诗享家软装
咨
询|诗享家咨询预约入口
[ 客户需求
屋主喜欢简单雅致的风格,希望未来的新家能够告别逼仄,有较多的储物空间。在空间布局上,屋主希望在一楼设计出一间书房,满足自己喜欢读书的爱好,更希望整体上打破呆板,增加空间的趣味性。
[ 功能设计
考虑到屋主的需求和房屋原始布局,我们化零为整,以整体化的思想,为屋主打造宜居性与趣味性兼具的家。
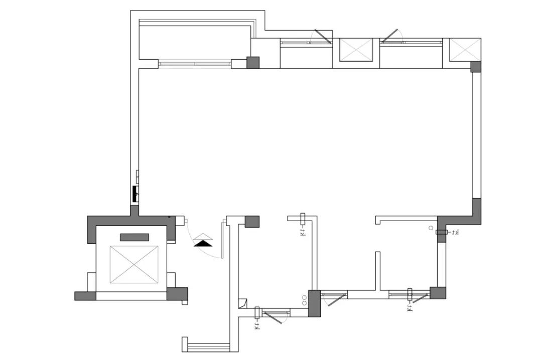
↔️左右滑动,查看 1F 户型设计// 重构空间,功能多样又通透一楼只保留一间卧室,舍弃小房间,打造宽敞的客餐厅;客餐厅无墙体分割,并打开餐厅阳台,设计吧台,采光通风更佳;合理规划楼梯位置,处于空间轴心,动线更合理,也不影响洗手间动线。
↔️左右滑动,查看 2F 户型设计
// 奢华套间,全面提升居住品质
根据一楼客餐厅情况,舍弃挑空客厅,现浇楼板,打造一间带睡眠区、衣帽间、超大卫生间的大套间,提升生活品质;
儿童房根据空间特性,床铺靠墙摆放,制作上下铺,便于放置书桌、并留出足够活动空间;
利用角落空间巧设衣帽间,满足收纳需求。
↔️左右滑动,查看 3F 户型设计
// 空间妙用,利用率与趣味性的完美结合
考虑到顶楼冬夏两季的舒适度,三楼主要设计为休闲区和家政晾晒区;利用走道空间,设置储物柜,安放洗衣机、烘干机、家政清洁物品,去露台洗衣晾晒更方便;保留主卧挑空部分,小书房与主卧可以空间联动,更富有趣味。
[ 视觉设计
·按照屋主的喜好,打造“素颜风”客厅,主色调为白色+原木色,再点缀以青草绿,客餐厅纯净自然不失小心机。
·白色 L 型组合沙发,大方舒适,适合家人围坐交谈,同时也是客餐厅的软分割,颜值与功能兼备。
·客厅地毯的选择与沙发暗暗呼应,上饰简单图案与花纹,让空间意趣丛生。
·电视背景墙划分客厅与书房空间,下方的玻璃砖设计,让两个空间彼此独立又不影响空间的通透性,把设计渗透于家的每一寸肌理,打破空间死板。
·客厅飘窗做出拱形门造型,圆润线条让空间更添柔软气质,窗台用原木材质为家增温,绿色单人沙发椅让空间灵动起来,一杯茶,一本书,一把小椅,静坐窗前,岁月静好不再是想象。
·厨房门用窄框长虹玻璃门代替实木门,阳光可以自由穿透空间,又不影响客厅与厨房的功能划分。
·不规则镜面巧妙引景入室,利用光学手法,视觉上增大空间,满足屋主对于大空间的需求。
·阳台与餐厅门打通,扩大餐厅视野,拱形门的设计与客厅飘窗造型遥相呼应,白色、原木色、青草绿,颜色碰撞间高级感自然而生。
·餐桌与岛台一体化设计,把现代家居理念融入设计,找到功用和美观的平衡点,岛台既可做水吧台,饭后品茶,也可做西厨,处理冷餐。·原木色餐桌颇具田园风情,仿水磨石岛台,正面以木质装饰,与餐桌形成视觉上的统一,又富有意趣。诗享家咨询预约入口[ 往期作品回顾
你也喜欢这样的家?
诗享家咨询预约入口
[ 我们的荣誉
2020 广州设计周 40UNDER40 中国(湖北)设计杰出青年奖
2020HDA 她设计奖年度最佳设计
2020 幸福家设计大赛全国亚军
2020Hi-Design 室内设计大赛公寓组金奖、优秀奖
2019 金堂奖年度优秀住宅公寓设计、年度优秀办公室空间设计
2019 年第三届华中区室内设计新势力奖
2019 年好好住营造家奖年度最佳大户型设计 Top20
2018 年度达人设计总评榜全国百强
2018Hi-Design 第六届室内设计大赛优秀奖
2018 年度得意家专业设计引领品牌
2018 广州设计周 40UNDER40 中国(湖北)设计杰出青年奖
2017 中国空间设计大赛“鹏鼎奖”十佳豪宅空间奖、十佳公寓空间奖
2016 国际空间设计大奖“艾特奖”最佳陈设艺术设计奖
2016Hi-Design 第四届室内设计大赛优秀奖
2016 湖北室内设计总评榜住宅空间优秀奖
2016 第七届“筑巢奖”优秀作品
2016 得意生活最受网友欢迎装饰/设计品牌
2015 年青年文化创意奖
2012-2013 中国国际建筑装饰及设计博览会年度 50 强商业规划及空间设计师
2011 广州设计周金堂奖
2011“亨特窗饰杯”首届软装 100 设计盛典优秀作品奖
2008 年武汉十大设计师优秀奖
2007 威能杯设计师大赛武汉赛区银奖
发表的设计作品也被国内各大杂志采用,如《瑞丽家居》、《精品家居》、《南方周刊》、《BOSS》、《顶尖样板房》、《装潢世界》、《名石、名师、名宅》等,武汉的《第 1 生活》、《幸福》、《易网湖北》《腾讯大楚网》等等
客服
消息
收藏
下载
最近




























