查看完整案例


收藏

下载
你的Dream house是怎样的?对本案屋主夫妻来说,理想中的家,不仅要有视觉上的享受,更应有心灵上的温情与成熟。
这套473㎡的宽阔别墅,是屋主夫妇送给孩子和父母的礼物。屋主夫妻希望邀请父母过来居住,共享温暖生活。因此对新家的要求,除了精致、高级的空间气质,还非常注重家人之间的互动和情感交流
。如何将形式与功能相融合、让三代人回归本真生活,是本案的设计重点。
原户型室内分隔细碎,内部形成较多的小空间,利用率极低。设计师将空间扩展,整合小空间,提升开阔感,最大限度优化功能格局。公共空间保持开放,不同的分区间彼此连接渗透,并利用高差做出层次,小孩可以自由奔跑、快乐游戏,老人可以悠闲看书、庭院种花…… 每一位家庭成员都能找到温暖归属感。
汉南绿地城别墅
[ 项目简介
地址Address:
汉南绿地城别墅
面积Square Meters:473
风格|Style:现代风格
户型|Apartment:联排别墅
设计|Designer:诗享家设计
施工Construction
诗享家施工
软装|Soft Decor:诗享家宅配
[ 客户需求
本案是联排别墅,带有地下室车库和顶楼阁楼共有五层。屋主是一对年轻夫妻,目前是一家三口居住,后期父母也会过来同住,屋主希望一家人能够在这里其乐融融的生活。
[ 功能设计
在前期与客户进行充分的沟通中,设计师清晰地为屋主划分了每个楼层的功能设计。
功能设计
地下室:用于停放车位,同时作为休闲、娱乐场所;一楼:作为客餐厅及厨房、洗衣房社交的公共空间;二楼:留给老人房和儿童房使用;三楼:整层留给屋主夫妻二人使用;阁楼:影音室及书房。
地下室考虑采光及防潮,设计师地面采取垫高及地台形式,划分整个区域,采用玻璃隔断补充光线不足的问题。并设计了独立的车位停放区域及独立的台球室、麻将室。
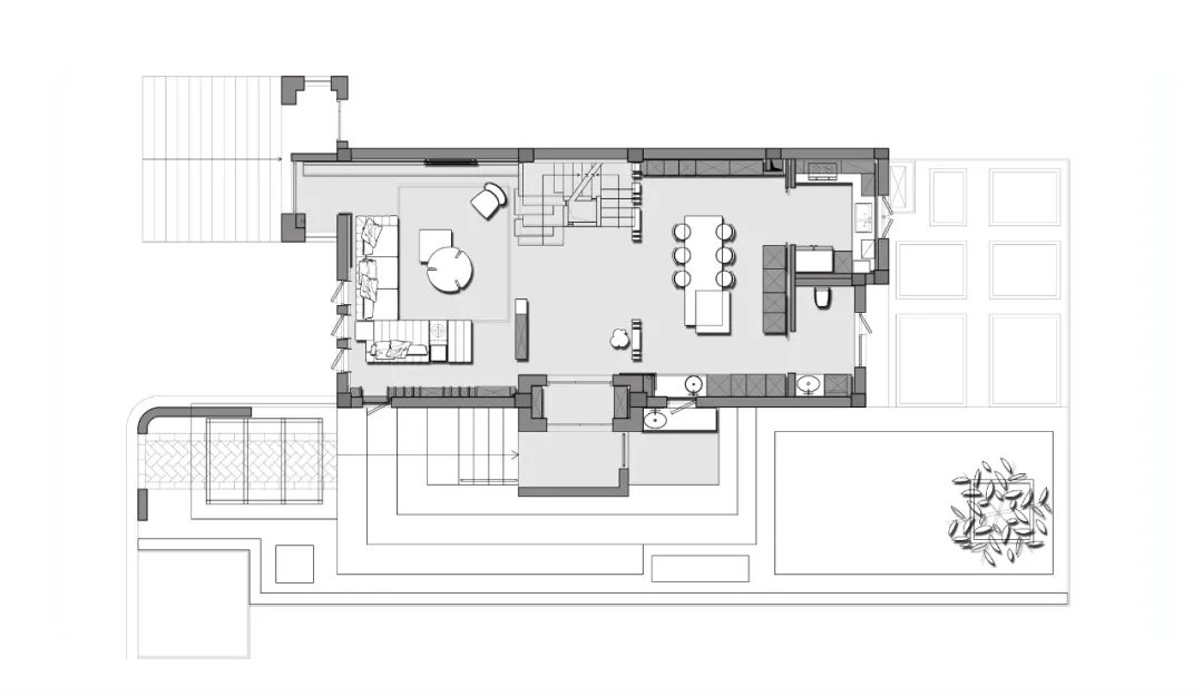
一楼改变原入户大门方位,保证客厅区域的完整性。细分厨房功能,在餐厅区域增设岛台与餐桌结合的形式,让厨房功能向餐厅延展。
二楼两个卧室分别做套间处理,方便老人和小孩的日常生活便利。
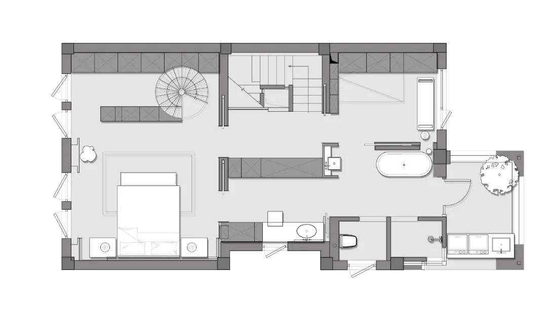
三楼及阁楼整层都是留给夫妻二人使用,设计师将空间划分为卧室、大型衣帽间、卫生间、独立书房、露台洗衣房。
[ 视觉设计
以开放的设计手法,打造一个可阅读可交流的公共空间。
在整体空间色彩方面,设计师选用了黑与白,色度把握恰到好处,为空间注入了端庄的气质,局部金属点缀,带来奢华感,绛红色柜体的加入,打破沉闷。
老人在一旁修剪盆栽花草,孩子爸爸陪着小朋友在客厅玩游戏,时不时邀请孩子妈妈加入,温情的生活场景,在开放互联的客厅空间上演。
楼梯设置在电视背景旁边,简洁大方,脱离墙面的设计,保证了楼梯区域的采光及空间线条的流畅。
客厅电视背景这面墙做了挑空处理,让居住者的视线以及室外的光线得到更好的延展。
大面积地面灰色瓷砖铺贴,结合白色墙面及黑色踢脚线,有由黑到灰、白的层次变化。原木的融入,让大理石多了几分朴素温暖的韵味,两种材质的完美融合,将功能与美学转化为精致的细节,赋予其刚柔并济的空间氛围。
绛红色的床背景色彩鲜明跳跃,黑色的加入减低视觉收缩感,平衡色彩。波点元素的呼应,将俏皮感、美感引入空间,让卧室呈现出年轻、时尚的鲜活质感。
黑白相间的地砖拼花,简单明快,充满时尚和个性的感觉。同时局部做了地砖上墙处理,视觉上给人一种延伸扩大之感,使空间更显开阔大气。
[ 往期作品回顾
你也喜欢这样的家?
点击下方“阅读原文”联系设计师吧~[ 我们的荣誉
2019金堂奖年度优秀住宅公寓设计、年度优秀办公室空间设计
2019年第三届华中区室内设计新势力奖
2019年好好住营造家奖年度最佳大户型设计Top20
2018年度达人设计总评榜全国百强
2018Hi-Design第六届室内设计大赛优秀奖
2018年度得意家专业设计引领品牌
2018广州设计周 40UNDER40中国(湖北)设计杰出青年奖
2017中国空间设计大赛“鹏鼎奖”十佳豪宅空间奖、十佳公寓空间奖
2016国际空间设计大奖“艾特奖”最佳陈设艺术设计奖
2016Hi-Design第四届室内设计大赛优秀奖
2016湖北室内设计总评榜住宅空间优秀奖
2016第七届“筑巢奖”优秀作品
2016得意生活最受网友欢迎装饰/设计品牌
2015年青年文化创意奖
2012-2013中国国际建筑装饰及设计博览会年度50强商业规划及空间设计师
2011广州设计周金堂奖
2011“亨特窗饰杯”首届软装100设计盛典优秀作品奖
2008年武汉十大设计师优秀奖
2007威能杯设计师大赛武汉赛区银奖
发表的设计作品也被国内各大杂志采用,如《瑞丽家居》、《精品家居》、《南方周刊》、《BOSS》、《顶尖样板房》、《装潢世界》、《名石、名师、名宅》等,武汉的《第1生活》、《幸福》、《易网湖北》《腾讯大楚网》等等
客服
消息
收藏
下载
最近

























