查看完整案例


收藏

下载
这是为一个大家庭设计的别墅案例,为了满足每位家庭成员的需求,设计师需要系统而缜密地考虑整体功能空间的分配,动线设计,家具和软装的搭配,营造适合不同成员的生活空间。
功夫在诗外,功夫更在设计之外。我们的设计师并没有堆砌奢华家具,却让这个家看上去非常动人,仿佛拥有了情感与灵魂。在这个精致与优雅并存的空间里,每一个细节都可以感受到设计赋予生活更多的品质与意义,美感与功能共同成就了美好生活。
卡 尔 顿 庄 园
CARLTON ESTATE
融合美感与功能的雅致现代空间
项目简介:地址|Address:葛洲坝·卡尔顿庄园
面积|Square Meters:580
风格|Style:现代
户型|Apartment:别墅
设计|Designer :诗享家设计
施工|Designer :诗享家施工
软装|Soft Decor:诗享家宅配
客户需求
本案的客户是一对事业有成的夫妻,家中已是四代同堂。为了享受其乐融融的大家庭生活,需要保留两个套房供屋主及女儿使用,为两个宝贝准备两个儿童房,另外还需要一个长辈房。并且因为每年春节大家庭的兄弟姐妹都会到家中聚会,所以需要两个会客厅,两个娱乐室和一个大餐厅,由于家人众多,还需要一个洗衣房。
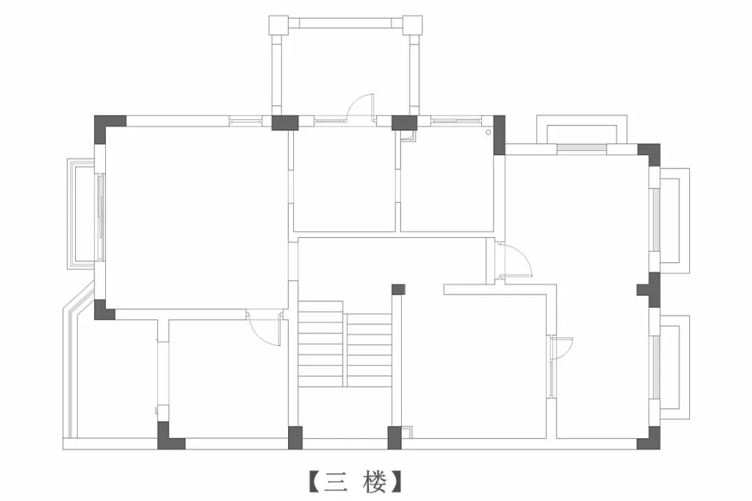
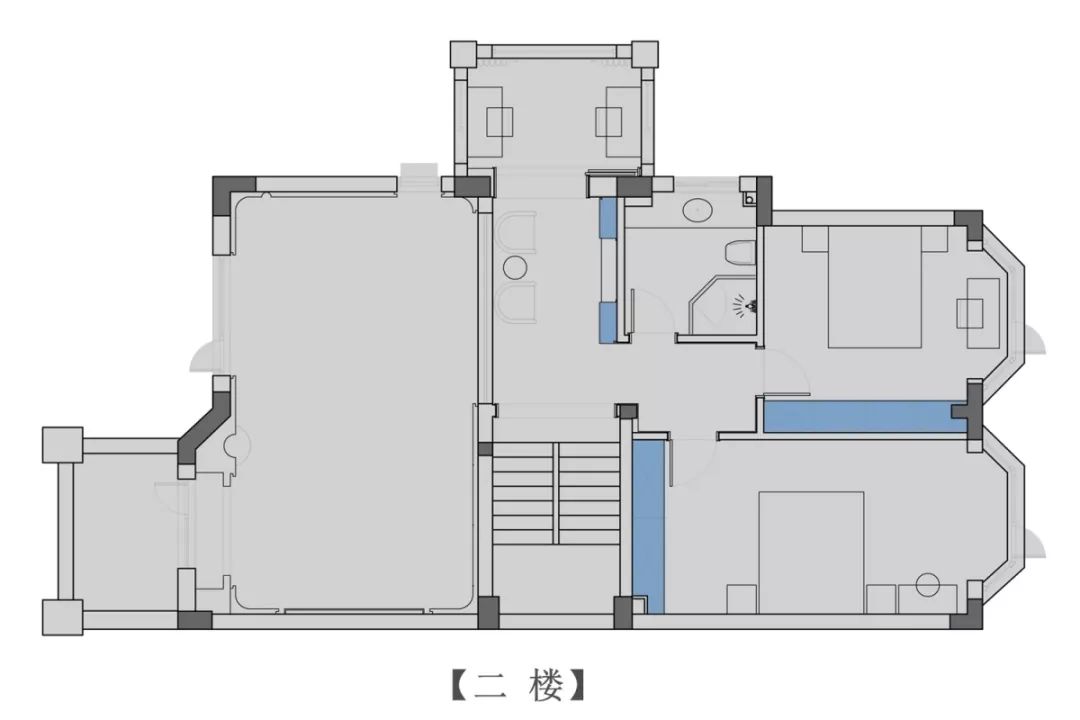
左右滑动查看原始平面图
功能设计
本案是一套三层楼带地下室和阁楼的别墅,我们根据屋主的需求对每层楼的功能空间进行了合理安排。
一楼为公共活动区,对格局进行了大刀阔斧的改造。首先,将原本的入户门楼和客厅异形的部分规划成一个格局方正功能齐全且通透的门厅,这样原本门厅的空间可以全部规划到客厅区域,得到一个超大的客厅。
原来的客餐厅被厨房隔开,只通过一条狭窄的昏暗的过道连接,我们在重新规划功能分区时将厨房和餐厅的位置对调,并将原本的过道区域纳入餐厅,得到一个宽敞的餐厅,可以放下一个大的圆桌并且设计一个岛台作为洗切水果或制作西点的操作台面使用。
一楼预留一个房间作为长辈房使用。原本通往院子的露台用玻璃房封闭起来做为观景阳台。
二楼是儿童房和书房。两个独立的儿童房都配备储物柜和书桌,并在阳台区域为孩子们设计了一个独立的书房。公共区域则设计成一个休闲区域与客厅的挑空层相通,可以增加一楼二楼家庭成员的互动,并在公共区域设计茶水台,方便后期两个宝宝使用。
三楼作为主人和女儿的生活区域。两个套房都配备自己的衣帽间、卫生间以及办公区域,客户和女儿都能在自己的空间完成生活或偶尔办公的需求,并且主卧室配备一个观景阳台作休闲使用。
阁楼为多功能空间。包括一个独立的储物间,一个娱乐室兼客房,其它的区域全部开放出来,给屋主一个宽敞、通透的空间,自由的冥想、打坐。室外原本的露台用玻璃房封闭起来作为一个洗衣房,可以放两组洗衣机、烘干机和洗衣池,满足全家人洗衣晾晒的功能。
地下室完全作为会客使用。娱乐室、品茶区、会客区一应俱全,并设计独立的茶水台和储物空间,满足平时一家人使用或者节假日亲朋好友聚会的功能,两个天井位置一边作为运动区,一边作为观景区使用。
左右滑动查看平面布置图
视觉设计
您可能还喜欢|作品实景:用柔和的色彩,把网红INS风装进家!
作品实景:一套房子7种不同配色方案,现代简约风也能如此出“彩”!
作品实景:楚天都市雅园|打通两套三居室,颠覆性改动带来一个极具互动感的家!
作品实景:万科金域蓝湾|这个家把高级灰演绎得如此惊艳
作品实景:复地东湖国际|优雅新中式,做隐居都市的浪漫客
作品实景:汉口城市广场|鸭梨家,就要如此俏皮又前卫
作品实景:华侨城|饱满的色彩打造质感空间
如果你也喜欢这么美好的家,可以咨询小诗预约设计师哦。
我们的荣誉
2017中国空间设计大赛“鹏鼎奖”十佳豪宅空间奖、十佳公寓空间奖
2016国际空间设计大奖“艾特奖”最佳陈设艺术设计奖
2016Hi-Design第四届室内设计大赛优秀奖
2016湖北室内设计总评榜住宅空间优秀奖
2016第七届“筑巢奖”优秀作品
2016得意生活最受网友欢迎装饰/设计品牌
2015年青年文化创意奖
2012-2013中国国际建筑装饰及设计博览会年度50强商业规划及空间设计师
2011广州设计周金堂奖
2011“亨特窗饰杯”首届软装100设计盛典优秀作品奖
2008年武汉十大设计师优秀奖
2007威能杯设计师大赛武汉赛区银奖
发表的设计作品也被国内各大杂志采用,如《瑞丽家居》、《精品家居》、《南方周刊》、《BOSS》、《顶尖样板房》、《装潢世界》、《名石、名师、名宅》等,武汉的《第1生活》、《幸福》、《易网湖北》《腾讯大楚网》等等
TEL / 027-88925856
地址 / 徐东国际联发大厦1111-诗意家居 雅致生活 -有人说,设计是放,艺术是收。我们旨在一收一放间,将艺术完美地融入到生活的柴米油盐中,让每一个作品都成为生活的艺术。设计,让生活更美好。
客服
消息
收藏
下载
最近






























