查看完整案例


收藏

下载
度假别墅,打造恰到好处的精致与奢华,彰显主人的气质与品味,也让它成为安放心灵的悠闲之所,与家人安享天伦,构筑悠然自得的生活态度......
香榭北郦湖
5层度假别墅空间,淋漓尽致的美式风情
基本概况:
项目地址: 香榭北郦湖
项目面积:435㎡
项目户型:五层独栋别墅
项目风格:简美轻奢
项目设计:诗享家设计
项目施工:诗享家施工
项目软装:诗享家宅配
客户需求:
本案为一幢五层独栋别墅,作为大家庭的度假使用。家庭成员比较多,有屋主夫妻二人,可爱的女儿(还准备再要一个宝宝),另外还有父母、岳父、奶奶,还可能会有保姆。作为一个度假的房子,即要考虑男女业主的喜好,也要考虑每个家庭成员的需要,以及度假的趣味性。
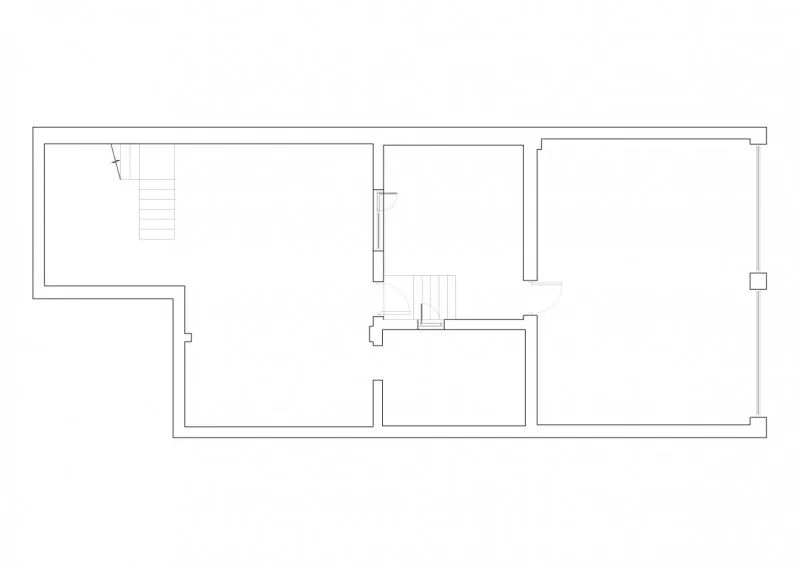
▲ 左右滑动查看1-5楼原始平面图
功能设计:
别墅的面积大,更需要合理地规划空间,让屋主能生活得更方便舒适。在跟业主进行了充分的沟通之后,我们重新进行了空间划分:
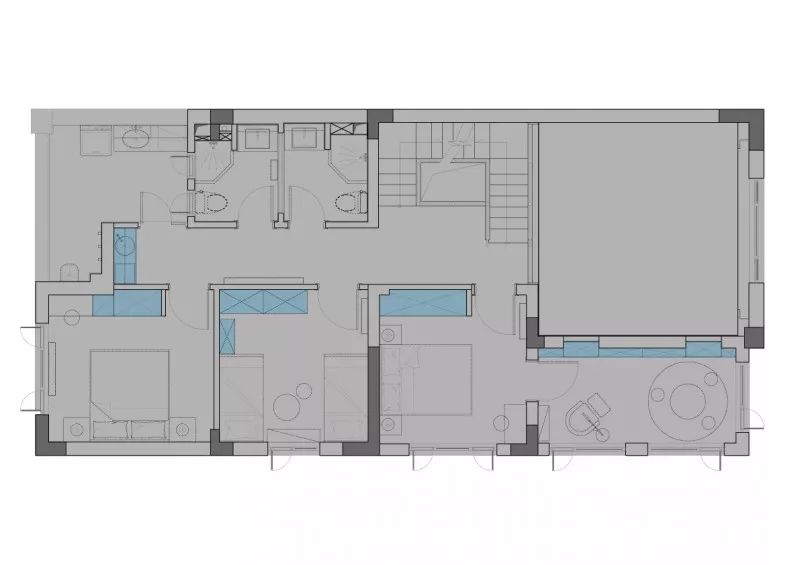
地下室规划成娱乐区以及保姆间,天井处规划了鱼池以及内景花园。
一楼规划为客餐厅、茶室以及奶奶的卧房,入户处与客厅分隔开形成单独的完整的空间,客厅保留挑空的高度优势营造开阔的视野,餐厅利用窗下的高度做成西厨,摆放交流性更强的圆桌。
二楼规划为家人的卧室以及寓教于乐的空间。
三楼和阁楼则成为夫妻的私人空间,功能齐全 。
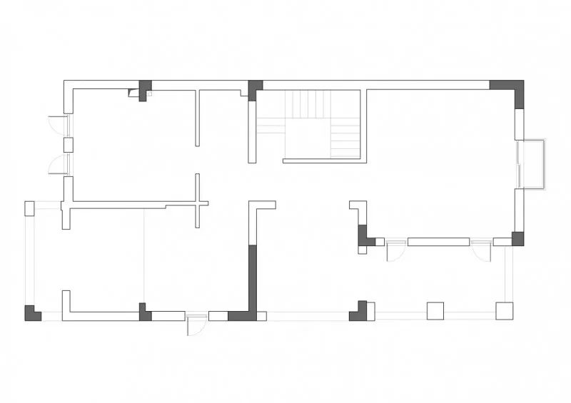
▲
左右滑动查看1-5层平面布置图
软装设计:
我们通过材质、色彩的运用和软装的搭配将轻奢的美式风情打造得淋漓尽致。
空间里丰富的色彩搭配令人眼前一亮,除了白色作为主色调外,再通过沙发、抱枕和巨幅油画等的色彩运用,让爱马仕橙、墨绿、蓝色等极具冲击力的颜色同时出现,强烈的撞色效果充满视觉张力。
餐厅玛莎拉酒红色的柜子搭配黑色的西厨柜带来一股异域的风情;
主卧运用黄绿色的墙面与灰蓝色的丝绒床对比突出、个性强烈;
儿童房是色彩鲜艳的ins风格,清爽又有趣。
|效果图|
如果你也喜欢这么美好的家
可以咨询小诗预约设计师哦
▼
我们的荣誉
2017中国空间设计大赛“鹏鼎奖”十佳豪宅空间奖、十佳公寓空间奖
2016国际空间设计大奖“艾特奖”
最佳陈设艺术设计奖
2016Hi-Design第四届室内设计大赛优秀奖
2016湖北室内设计总评榜住宅空间优秀奖
2016第七届“筑巢奖”优秀作品
2016得意生活最受网友欢迎装饰/设计品牌
2015年青年文化创意奖
2012-2013中国国际建筑装饰及设计博览会年度50强商业规划及空间设计师
2011广州设计周金堂奖
2011“亨特窗饰杯”首届软装100设计盛典优秀作品奖
2008年武汉十大设计师优秀奖
2007威能杯设计师大赛武汉赛区银奖
发表的设计作品也被国内各大杂志采用,如《瑞丽家居》、《精品家居》、《南方周刊》、《BOSS》、《顶尖样板房》、《装潢世界》、《名石、名师、名宅》等,武汉的《第1生活》、《幸福》、《易网湖北》《腾讯大楚网》等等
客服
消息
收藏
下载
最近























