查看完整案例


收藏

下载
植物的最初是微小的一颗种子经过阳光雨露的灌溉奋力向上生长最终长成具有生命力的形态
植物的生命力被艺术家用各种方式捕捉,即便用水墨语言描绘以黑白灰勾勒,亦可探窥其形。
德国摄影师
Karl Blossfeldt
总共拍摄六千多张植物的照片
植物在他的镜头下
虽隐去了色彩
却显现力量
Karl Blossfeldt镜头下的植物
在道胜最新设计的餐厅中
我们关注可感知的力量
不同于摄影与绘画的直接展现
而是运用抽象化的手法
透过空间
表现植物的生命力
Brand Appeal
品牌诉求
K-11是全球首个把“艺术.人文.自然”三大元素融合起来的品牌,K-11购物艺术中心把购物体验与艺术体验结合。继香港、上海以及武汉之后,第四座K-11购物艺术中心开在了广州繁华的CBD地带。
MAYS餐厅坐落于K-11购物艺术中心,是一家以素食为主的西式餐厅。在西式餐厅日益增多的情况下,MAYS餐厅提出了更健康的果蔬膳食理念,以素食为主,希望藉由健康的果蔬带给顾客从味觉到身心的愉悦。
因此设计师以植物生机作为主题概念,通过一定的空间手法,让环境与美食相互衬托,希望营造有如在“林间漫步”的用餐空间,从而让繁忙的都市人享受自然的愉悦感。
Innovative Ideas
创意抽炼
植物能够生长,是以脉络为支撑,汲取光和热,最终以成熟的形式呈现。
为了响应餐厅的主题,赋予本案空间自然的力量,设计师不是简单地将植物作为空间的装饰,而是采用更抽象趣味的空间表达手法。设计师通过抽取自然植物中根枝叶的形态脉络作为元素,将其形态进行简化、衍生和创作,构造出流畅自然的线条,最终形成新的设计符号,从而折射出更大的想象世界。
Space show
空间展示
从餐厅的主入口进来,首先经过开放式就餐区,座位配置以木制的餐桌为主,入口水吧区的飘带线条装置则带动视线移动、穿透,该装置使用不锈钢的硬朗材质糅合舒展的线条,隐约描绘出一幅云动水卷的自然景象。
随着这优美的线条移动,则进入到网状不锈钢独立就餐区。不锈钢之间纵横交错,仿若自地无限生长的树枝,透露出蓬勃的生命力。
灯光透过网状装置缝隙,投下了相互交错的光影,光影摇曳之间,宛如树影斑驳,风吹云动。
在半封闭的包房之中,在共享式长餐桌之上,设计师以数百盏光纤灯打破空间原有的框架,自高空此起彼落地垂吊而下,构成了室内空间中独有的无垠森林,让光影错综与自然林景的轮廓结合,交织出自然神秘的用餐氛围。
整体餐厅设计与空间规划,打破了固有的设计思维。可见的现代材质与自然设计语言相辅相成,构成了既有创意现代气息,又有大自然舒适感觉的空间。
宾客在空间享受食物带来的愉悦之余,得以在别样的西式简餐环境中体验无穷乐趣。
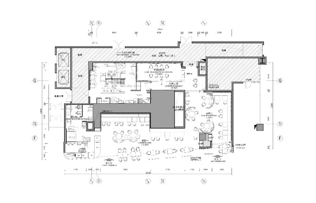
Space Plan
| 平面图
Name|项目名称:
MAYS RESTAURANT - MAYS西式餐厅
Location
项目地点:
Guang Dong Province,China|中国广东
Client
项目客户:
Guangzhou zhengu catering investment co. LTD
广州臻谷餐饮投资有限公司
Design Director | 主持设计
YongMing He | 何永明
Interior Design
室内设计DAOSHENG DESIGN道胜设计
Construction Process
施工花絮
/ @ 何永明Tony /
/ @ 广州道胜设计有限公司/
WebsiteTEL/ 020-89231103 / Address
/ 广州市海珠区琶洲凤浦中路首层113-118 /
何永明(Tony Ho)道胜设计创办人&设计总监奉行“适合”就好的设计哲学,2003年创立何永明设计师事务所,2005年成立广州道胜设计公司,广东省陈设艺术协会副会长,中国建筑学会室内设计分会第九专业委员会副会长,专注设计工作之余亦曾担任广州美术学院室内设计系客座讲师、华南师范大学室内设计系客座讲师。
近年来荣获国内外设计奖项超过100多项,其中更获德国红点大奖、德国IF设计大奖、美国BEST OF YEAR AWARDS设计金奖、美国IDA设计大奖银奖、意大利A design 设计金奖 、香港环球设计大奖 、APIDA香港亚太室内设计大奖。『道胜设计』更于中国建筑学会室内设计分会2015 CIID中国室内设计大奖赛中获得『最佳设计企业大奖』。
『道胜设计』是一家多元化的室内设计顾问公司,秉持着坚持创意、实用、优质至上的理念,项目分布在中国许多重要城市,以现代主义精神与热情为设计注入完美无瑕的风格和创新能量。凭着丰富的专业知识与工程经验,透过整合建筑、室内设计、视觉图像和室内布置,每一次新作皆创造出独特的感官魅力与欢愉的空间气氛。
道胜设计代表作品
▲百晟花园会所
▲精颖灯饰展厅
品家展厅
▲保利珑门广场样板房
▲梦想改造家:零采光的家
▲保利阳江北洛湾C1别墅
碧桂园映月台售楼部
客服
消息
收藏
下载
最近













































