查看完整案例


收藏

下载
“平淡生活里的柴米油盐,繁琐日子中的喜怒忧伤……太多的画面在脑海里一一呈现,太多的地方想和你一起用脚步丈量,想和你在世界的任何地方拥吻,想和你牵手走过人生路上一段段如意与不如意的时光……最终,我只想偎在你温暖的怀抱,任凭摇椅轻晃,炉火噼啪作响,你吻着我满是皱纹的脸,我仍是你心中美丽的小姑娘......”
老陈手记
项目地址:德阳.碧桂园
项目名称:A song of love
硬装设计:田园.憬致设计—胡憬
软装设计:田园.憬致设计—胡憬
设计风格:北欧
项目面积:130+
项目摄影:名堂metown|李良
品牌支持:方太厨电、科勒洁具、TATA木门、卢森地板、长谷瓷砖、飞宇门窗、德莱宝集成吊顶、付式墙纸布艺、Benjiamin moore艺术涂料
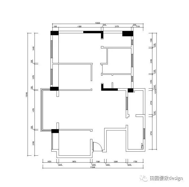
原始户型图
入户区域利用墙体厚度做了嵌入式鞋柜,在餐厅部分增加了西厨区域,厨房与生活阳台改为四扇玻璃推拉,延伸空间,增加公共区域的通透性和采光度。客厅沙发没有采用常规的布局,利用两侧墙面做了壁炉和钢琴、书柜的摆放。卧室区域调整不大,主卧衣柜的位置做到了床尾对面,让卧室两侧空间更宽敞。
平面布置图
餐 厅
西厨和餐桌在同一空间,木台面和白色柜体的搭配,温暖有质感。“静静的看着你做饭,也是一种幸福”
客 厅
会客厅形式的客厅,一家人弹琴唱歌、围着壁炉看书闲聊,其乐融融,更有家的温暖。
胡桃木和原木色的碰撞,白色墙面和白色砖纹的呼应,金属色的软饰和绿叶的搭配,一切的一切美好且有温度。
阳 台
闲暇时光、咖啡与茶,手工编织的吊椅,诗和远方……
厨 房
“我想要个大大的厨房,有你就有了家。”
儿童房
利用飘窗的位置设计了书桌书架,纯白的空间,因为有了彩色的软饰,便有了跳跃的感觉……有独角兽和小马的陪伴,相信能有一夜好梦。
卫生间
同样的小白砖、灰色花片,不同的浴室柜,让主卫和次卫空间相互呼应但不失趣味性……
书 房
书房有加长的书桌台面和一整面墙的书架,藤编的篮子让房间温暖且有质感,灰绿色的黑板墙,随意书画,是给生活的留白和对未来的畅想……
主 卧
黑与白的搭配,清新绿植和台灯的点缀,灰色麻质抱枕和木质窗台,让整个空间不太冷。
在这里也要谢谢业主老陈的积极配合,
以及认可我的“不将就”。
为了西厨和飘窗台的定制的原木台板不变形,来回折腾三次;为了找到合适的琴叶榕和天堂鸟在花鸟市场顶着太阳晒,感叹生活在三四线城市有种找啥啥没有的无奈;把我的软装清单照单全收,贯彻到底,甚至是买个勺子也会跟我商量。
很高兴这样的遇见···
一个对我来说很重要的人对我的评价是“非黑即白”,我一直当是褒义。一就是一,二就是二,哪来的中间值?时光荏苒,过好每一刻,爱折腾、不将就,才是对生活最好的态度......
田园憬致design
憬然有悟 专注极致
地址:居然之家4F田园装饰
客服
消息
收藏
下载
最近







































