查看完整案例


收藏

下载
项目地址:德阳
碧桂园
项目名称:
ink。green
硬装设计:田园
憬致设计—胡憬
软装设计:田园
憬致设计—胡憬
设计风格:现代风格
项目面积:130+
项目摄影:名堂
metown|李良
M
erry christmas!在这个节日,给大家呈上一抹应景的圣诞绿。
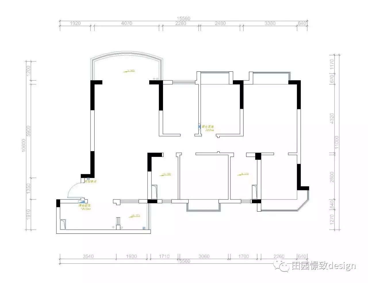
原始户型图
平面布局图
故事的开始总是要介绍介绍主角,男主果先森高大帅气,女主璐璐美丽大方有气质,身高嘛,就是让我多看两眼可以除颈纹那种,绝对的男神女神配!
要是不说,光看图,绝对想象不到他们的职业都是人民警察。或许也是受工作的影响,他们希望自己的家干净明了,居家生活简洁利落有品质。
所以这次案例的设计上我们就摈弃了复杂的造型和鲜艳色彩。采用50°灰色为整个空间主体色调,配以黑白色系沙发茶几,用少量的金属色增加时尚感,加以墨绿色作为点缀色和1%黄色作为提亮,使空间脱离单调而富有意蕴。
餐厅背景与入户视野相对,爱家爱生活的他们对家的一致要求就是整洁明朗,干净的墙面,金属桌腿配上玻璃桌面这种极具视觉张力的餐桌,柔和的灯光,一幅肌理质感的墙面挂画,一角落,一世界的感觉悠然而来。
客厅里全抛釉面地砖和爵士白大理石的电视背景依旧是刚硬之选,这也恰恰与了果先森直爽的性格相协调,旁边墙体黑镜饰面,增添浅色石材的厚重感,让画面丰富有层次。
书是知识的载体,书房则是文化的集中储藏地,在电视墙背后分割一个空间作为开放书房,书架的石材套口与紧邻的石材电视墙形成一个前后呼应。
无论是大的风格色调还是一个小的艺术点缀,不单单是某一种风格化,而是拥有自我的独特审美和品味。一个多棱的茶几便是这个空间的一个艺术亮点。
金属色壁灯,皮质软包,黑色床、床柜,明亮色系的床品,简洁而温馨。
Ink.green 墨。绿突然想到三个字——“不将就”,家可以不用很大,家里的布置却不将就,家的装饰可以不复杂,但每一个细节都不将就,身边的人也一样,兴趣相投,彼此相爱,感谢遇见,不将就!祝果先森和美璐相伴幸福......
田园憬致设计——胡憬
来一张公司小伙伴儿们的大合照,大家节日快乐
田园.憬致设计工作室
地址:居然之家
4F田园装饰
客服
消息
收藏
下载
最近


















