查看完整案例


收藏

下载
引言 / Preface
共生形态新创意办公总部选址于广州美术学院的广东现代广告创意中心。
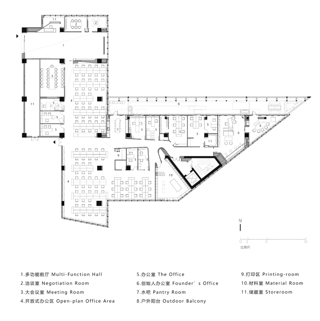
由于三角形地块的关系,该建筑的两侧翼在最末端被伸展为凌厉的尖三角,而共生形态正好落在这个不规则的三角形内,从平面图上看,就像一柄刚出锋的刻刀,锋芒毕现。
整体而言,空间的设计顺应了建筑内部特征,以原空间柱网框架作为载体,穿插进呼应建筑形态的三角几何体块,改变空间的结构与层次,形成渐进的空间秩序与张力。
从电梯口出来,彩色的灯膜在左侧的黑暗之中制造了一种与艺术有关的魅影。
黑与白,形式语言的显与隐。
白色盒子的应用,在这里并非只是单一的空间形式,它在公共办公区通道的L形转角前方,形成白色茶水间。在这里,一种关注精神性、注重流动感的设计语汇在此形成。
从茶水间往后延伸,一改前续空间的凛冽与克制,代之以蜿蜒流畅的白。
公共办公区占据着整个空间最为开敞的区域,以接待前厅为缓冲,位于空间动线的中段,既保证了工作状态的低干扰,也兼顾着对外沟通的灵活性。
打破封闭式格局,强化设计工作过程中的沟通与协作,在自由开敞的环境之中激发不同的思维创意,向内部探索。
在这里,开放式办公,更多是一种自发到自觉的过程。
大会议室位于公共办公区走廊的另一侧,与走廊相连的是可以自如切换透明度的电控调光玻璃,为会议室提供最佳的会议状态。
黑色中的大会议室,较之于白色或敞亮的空间,能让思考不受常规性的暗示与束缚,更为活跃。在纯净的黑之中,头脑的风暴似乎总是来得更为强烈些。
与大会议室的设计策略相反,对外的洽谈室被安排在接待前厅东北角的方向上。
在平面布局中,白色沙发以反常规的方式背靠横向延伸的办公桌一端,形成中岛组团结构,既使得空间秩序干净明确,也为入口留出充足的动线空间。
入口南窗这边是以书柜、长凳、置物架、水平窗为高低布局的室内小景;而邻近美院校园一侧的落地玻璃,则以更开放的方式将绿植、阳光引进室内,形成视觉延伸。
以水泥灰为基底,开敞的水平面布局,绿植与大量的书籍以及艺术收藏物参与进整个细节的处理之中,日常性与艺术感渐浓,不仅消解了三角形空间的硬朗感,还让空间在整体上更为舒展自在。
最后,以腰线分割的方式,将最末端的三角形空间细化为会议室,形成两进的格局。
办公室外是接近三十米的狭长露台,一端连接着茶水区,另一端连接着创始人办公室,与内部的白色走廊相对应,形成完整的闭环。
在露台上铺以砾石,种上狼尾草,野趣横生。露台一侧是广州美院安静的校园,玻璃幕墙那边则车水马龙的都市盛景。
项目名称|C-C DESIGN共生形态创意办公总部
设计单位|广州共生形态工程设计有限公司
设计内容|室内设计、软装设计及工程
软装设计|丁淇、陈泳夏、何真芳、黄文秀、高颖颖
参与设计|夏声悦、谢紫山
项目后期|李永华、朱云锋、朱文烽、黄壕俊
室内照明|赫光照明设计(广州)有限公司
主要材料|金属漆、肌理漆、岩板
本文转载网络,仅供学习参考之用,版权归原作者所有,如有侵犯请在文末留言。www.woododesign.com
客服
消息
收藏
下载
最近






















