查看完整案例


收藏

下载
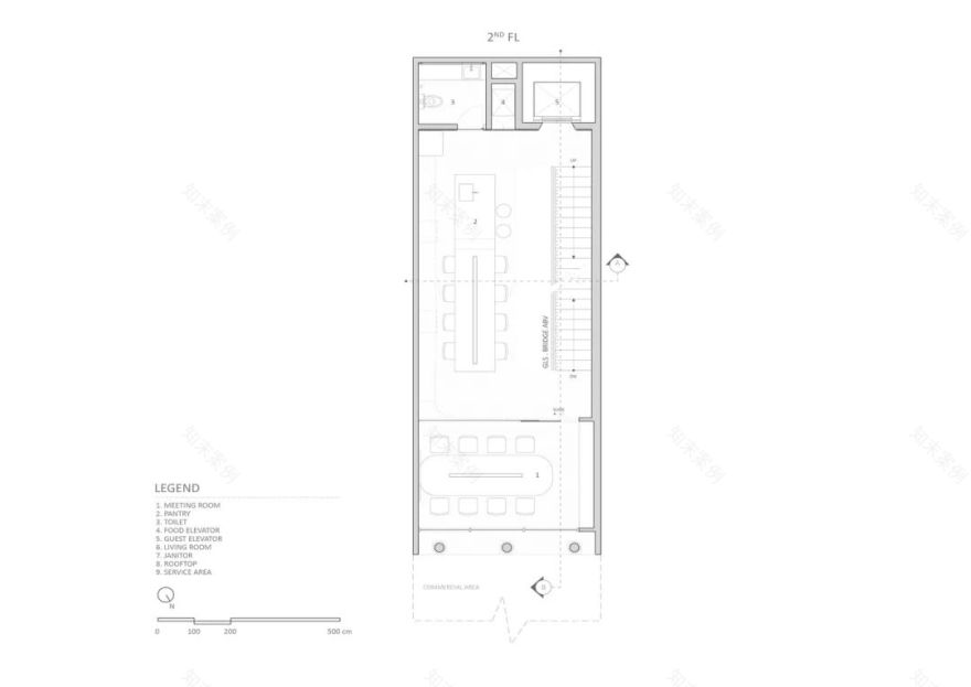
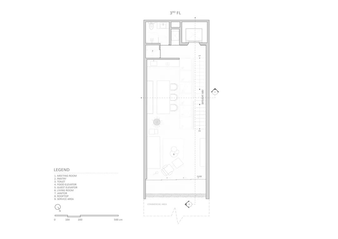
该项目是对现有“Ruko”的重大改造,“Ruko”是印度尼西亚雅加达常见的典型混合用途排屋建筑。场地宽4 m,深15 m。这种类型结构的一个常见类型是它与其邻居共享两堵共同的墙,这在找到足够的自然光和通风通道方面常常构成设计挑战。针对这个问题,我们在楼梯间舱壁的屋顶和三楼的楼板上打了洞,为一家小型科技初创公司提供健康有趣的工作生活方式。
刺穿的动作从楼梯间舱壁开始,椭圆形天窗穿过一个带有强烈圆角边缘的矩形体量,从而创造出一个柔软的形状,将俏皮的日光反射到室内。采光井一直延伸到下面的地板,在那里安装了一个可步行的天窗,将自然光引导到较低的楼层。因此,白天不需要使用人工照明。此外,楼梯间竖井的设置和浮动楼梯上立管的省略旨在激活烟囱通风效果,以改善整个建筑物的空气流通。
建筑物的程序按楼层分布。二楼的员工区集成了一张多功能桌,可容纳诸如准备食物、吃饭、工作和清洁等活动。三楼是舒适的私人工作室公寓,适合工作的行政人员。最后,屋顶露台旨在鼓励公共互动,在城市景观背景下可以进行非正式会议和休闲活动。我们的设计理念规定,所有内部和外部的改动都旨在强调趣味性,并通过提供更多的自然光和通风来营造更健康的工作环境。
建筑师:K-Thengono Design Studio
区域:180平方米
建筑设计:Christoporus Tanbunan
照明顾问:PT。Crown America International 印度尼西亚
景观顾问:PT。金枪鱼Tumbuh Bersemi
室内设计:Cindy Devia
建筑绘图:Fikrie Mailadi
城市:Kecamatan Penjaringan
国家:印度尼西亚
客服
消息
收藏
下载
最近






















