查看完整案例


收藏

下载
探索事物于不同角度的发散认知,以相对述平化的方式来阐述其内在诸多的复杂可能性挖掘更多不同的生活方式探讨和对人性的再思考,让空间更具可考究及情感共鸣的建立......
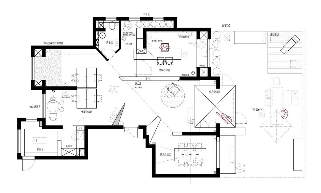
此项目立案之期,更多的还是想打破定式的思维惯性,以块面的方式来实现联动空间的分区合理性,同时也想建立伙伴之间更多的场景交流。
Yi Yu Officel
以‘动线’为环流向轴,来组织空间与空间之间,‘断层’的有反向思考。
以‘木盒’置入的方式来连接室内外的交互可能性,分化界限的区隔和功能的整体统一性,借助‘体块’的延伸导向来梳理空间脉络的逻辑性。
以通透为由,来处理相邻空间的联动情景,开合之间,来实现更多的日常记录场景。
在天花的处理上,考虑原梁位的错乱及重叠,如何变局限的劣势为出彩点,也是区间的分隔上着重考虑的点位,‘以点划线’,来区分面的过度,由此延伸到空间的分区形成。
在分区与分区之间的交织层面,借助体块的交割位面来强化分区的界限点位,让对应的属性更为明显。
由‘斜面’入内,视线由压缩到开阔的心理感受后,顶面与底部的层面开合,让视角不会局限在单区域空间。
以‘地台’的形式来替代原传统沙发位的休闲会客方式,更像多些交互的随和性,盘膝而坐,畅谈琐碎,也是以此为‘媒介’,来连贯室内外分区的心理缓冲。
打破‘规制式’分割空间的思维惯性,借由动线梳理及间隔的位面关系来呈现自由的二维格局。
主创及设计团队/ 温州隹聿(zhui yu) 设计工作室
项目地址/ 浙江,温州市
主持设计师/ 兰斯,林思思
设计参与/ 王利勇,曹建豪
建筑面积/ 140 m² (另露台120m²)本文转载网络,仅供学习参考之用,版权归原作者所有,如有侵犯请在文末留言。www.woododesign.com
客服
消息
收藏
下载
最近




































