查看完整案例


收藏

下载
北京华成智云软件股份有限公司总部位于北京诺德中心写字楼,建筑面积996㎡。现场建筑为框架结构,场地中心内部有四个一米见方的柱子。业主是从事安防事业的企业,建筑功能要求把企业的展示功能与办公空间结合起来。
▼室内主要功能空间全景
建筑设计中围绕三个“无界”进行,第一个“无界”是功能无界。建筑功能主要有办公,产品展示,影像展示,产品互动展示等等。在功能布置中,将这些功能完全融合在一个空间体系内。围绕现场四个柱子设计一组互动展示空间,主要进行安防产品的互动展示,展示空间内设计若干展架将产品与互动端相结合,实现实时互动。独立办公室设计在主要空间的外围,独立又有一定的隐私性。展示空间的南北两侧分别是办公空间和产品展示墙。此三组功能将主要空间分割为三条线和一条主要通道,各种功能之间相互影响、相互呼应。办公空间与员工日常工作成为企业展示功能的一部分,同样展示空间也成为办公空间必不可少的延伸,可以通过展示空间内的展品与互动装置给员工带来灵感。
▼建筑入口
▼展览空间和办公空间融合在一个空间体系内,实现功能无界
第二个“无界”是空间无界。此项目设计使空间的视觉与流线相融。互动展示空间为线型品字布局,品字布局的负型形成了员工的流线。通往独立办公室的主要通道两侧同样是互动展示空间与产品展示墙,独立办公室人员路线必经展示群组空间。通过这两种人本身的行为路线与功能结合的设计,把两种空间完全融合在一起。互动展示空间造型设计犹如画框、外实内虚的造型将前后左右的空间互相映衬、互相依附。空间高度以3米线以下进行设计,所有墙体高度、灯具吊装高度、门与玻璃的高度均为三米。三米线以上进行整体涂黑,把管线管道全部弱化于黑色天花内。墙身材料为混凝土漆,地面为混凝土自流平,两种材质在视觉上相融合。办公空间内穿插实木家具与柜门,体现出办公本身的人性化感受,与互动展示空间的灰色系相融合。
▼互动展示空间和办公区实现空间无界
▼展示空间北侧的产品展示墙
▼走廊展示空间与互动展示空间实现空间无界
第三个“无界”是时间无界。此项目设计遵循可持续发展的思路,企业根据自身发展的时间规律,在以后会把此空间完全变成企业博物馆。根据这点,建筑设计在现有时间段和未来时间段的使用功能都做了充分的考虑。现有的办公空间尺度既可以作为办公空间,也可以作为展示台空间,进行企业产品研发展示,只需将若干办公椅撤离就可以达到展示台的尺度要求。独立办公室各间的隔墙为独立
轻钢龙骨双层石膏板墙体,未来可以将内部隔墙拆除,独立办公室就形
成了一个独立完整空间展厅,可以展示高精安防研究产品和企业的保密产品展示。所以此项目设计将各个时间段的功能与形式需求进行融合,做出一个可持续发展的空间设计。
▼现有的办公空间尺度也可以作为展示台空间,适应未来的要求,实现时间无界
▼互动展示区细节
▼模型
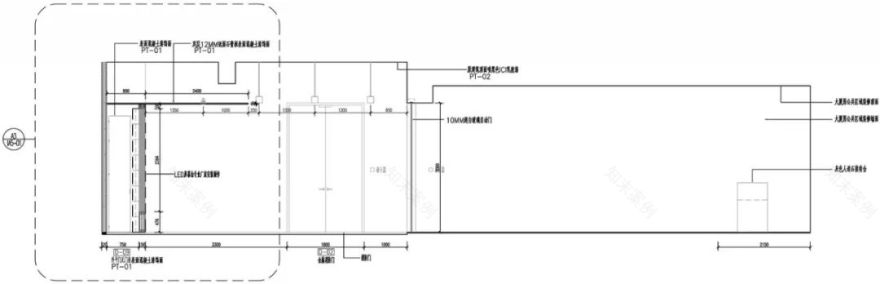
▼平面图
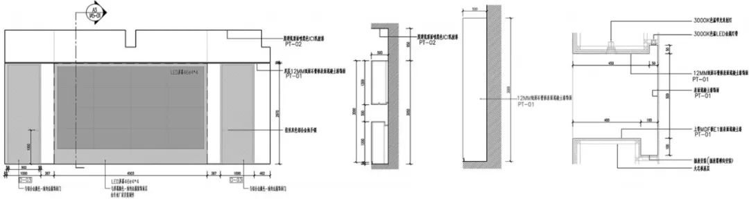
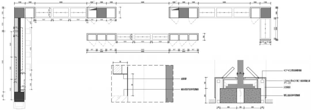
▼立面大样
项目名称:华成智云总部
设计方:北京班得建筑设计有限公司
设计年份:2017
完成年份:2018
设计团队:曹正仁 葛红军 董红
项目地址:北京丰台诺德中心
建筑面积:996㎡
客户:北京华成智云软件股份有限公司
品牌:水泥自流平 混凝土漆 木材
客服
消息
收藏
下载
最近




















