查看完整案例


收藏

下载
“我以为,从人类文化和快乐的观点论起来,人类历史中杰出新发明,其能有直接有力的帮助我们享受悠闲,友谊,社交和谈天者,莫过于吸烟,饮酒,饮茶的发明。”——林语堂《生活的艺术》
有丰富的心灵,有简朴生活的爱好。深爱人生的人,不会把生活弄得平凡,刻板无聊。
盛名多累,隐逸多适,充分享受大自然和文化所供给我们的色声香味吧~
试看香是何味,烟是何色,穿窗之白是何影,指下之余是何音,
恬然乐之而悠然忘之者,是何趣,不可思量处,是何境?
不如欢喜。
爆炸分析图
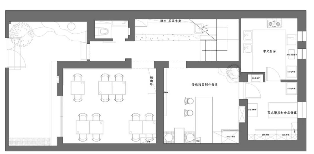
平面布局
PRAT 1
院落/courtyard
浮生若梦,为欢几何?谈时不择题目,想到便谈,天南地北,越去越远,既无秩序,也无定法,随意所之,所以谈到兴尽之时,也就欢然而散。在这种神清气爽,心气平静,知己满地的镜池中,方能领略到茶与酒的悠闲滋味。
PRAT 2
交通空间 /活动共享区/甜品售卖区/收银区/卫生间
Traffic space /Active area/Dessert sales area /Cashier area/TOILET
春饮宜庭,夏饮宜郊,秋饮宜室,夜饮宜月。享受四季,也如享受雪月花草一般。有适当的同伴尚喜,也可一个人以冷静的头脑去体味忙乱的世界。享受悠闲的生活,以一种艺术家的性情,在一种全然悠闲的情绪中,去消遣一个闲暇无事的下午。
PRAT 3
男卫生间/女卫生间/沙发休闲区/楼梯/卡座 4 人区
凡入欢喜,均为知己。
随缘礼待,忘形笑语。
不言是非,不侈荣利。
闲谈古今,静玩山水。
清茶好酒,以适幽趣。
PRAT 4
室内景观区/榻榻米 VIP 包房/景观吧台座位
landscape/Tatami VIPRoom/Landscape barseats
眼前一笑皆知己
举座全无碍目人
一次真正的谈天,
在一间可关上门的屋子,
几个知己朋友,
旁边没有我们所不愿意看见的人,
方得悠闲。
PRAT 5
餐厅四人区/Restaurant4-people area
茶如隐逸,酒如豪士。
茶需静品,而酒需热闹?不以为然,最紧要的是心境。
所以气氛是重要的东西,这里到处充满悠闲的空气。
不是专在吃喝,而是欢笑作乐。虽不善饮,也可享酒之趣。
欢喜之境,乃是心喜、体喜、根喜。其欢喜,敬信,爱念,庆悦,调柔,踊跃,不坏他意,不恼众生,不嗔恨。对比初期勘测时候的样子,不禁感慨万千。
▲临街对比
▲院落对比
▲走廊对比
▲一层楼梯比对
▲入口对比
▲一层收银区对比
▲一层营业区对比
▲西厨对比
▲楼梯过道对比
▲三层小角落对比
// 设计落地过程纪实 //
2018.2.20
▼收到设计委托后,初次测量现场的时候既震惊又兴奋,这个案子一定会非常有趣有价值,信心满满的和同伴一起开启——化腐朽为神奇的自我挑战赛。
2018.2.28
▼拆除结束后再次精确
2018.3.13
▼确定初步方案开工交底,设计深化和施工修缮同步进行
2018.3.19
▼挑选主要材料
2018.3.24
▼新建阶段现场跟踪
2018.3.28
▼新建阶段现场跟踪
2018.4.2
▼建阶段现场跟踪
2018.4.19
▼木工阶段现场跟踪
2018.4.23
▼木工阶段现场跟踪
2018.5.1
▼外墙搭建现场指导
2018.5.2
▼外墙搭建现场指导
趁着五一假期,业主和康工迅速组织了外墙拆除搭建。我们也是频频跑现场,春风和煦,阳光绚烂。虽然最后的一叶扁舟小拱桥没有完全落地,能实现立面长窗,院落搭建早就皆大欢喜了。
沿街开店,难!
想与众不同,独树一帜?难上加难!
2018.5.10
▼立面开窗,院落搭建现场指导
2018.5.14
▼立面开窗,院落搭建现场指导
2018.5.18
▼瓦工阶段现场指导
2018.6.4
▼窗户安装完毕,开始渐渐有了摸样...
2018.6.18
▼这一天以后,看着百年的老房子渐渐绽放生机,康工脸上露出了欢喜的笑容,我们评选康工为年度最佳配合好工长。
2018 年度配合好工长-康工靓照
2018.6.26
▼很多时候遇见固执己见的供货厂家,图纸是没有用的,说什么也是没有用的。造型和颜色完全任凭自己的经验发挥不看图的情况经常出现,比如这次搭建多次沟通确认后仍然给做成了葡萄架。好在业主配合并坚持方案,最后现场又想办法返工修补后效果还不错。
2018.7.10
▼定制家具安装已经接近尾声,定制的成品家具也陆续进场。
2018.7.16
▼定制家具的安装也是一波三折,进度缓慢让人焦急,好在效果不错,历经磨难终见彩虹。
2018.7.19
▼入门处一整面手工铺贴的白色石子出自康工手工,现在这里已经成为了客人最喜欢拍照的地方之一,再次感谢多才多艺爱动手的康工。
2018.7.23
▼定制铝板门头安装
2018.7.27
▼LED 字安装
2018.8.4▼灯亮了
2018.8.9
▼手工定制装饰画
2018.8.13
▼现场已经初见效果就想拍拍拍~
2018.8.14▼聪明的康工经过多次试验后自制了成功的枯山水制作工具
一代二代以实验失败告终
三代通关-康工制作
2018.8.17
▼最后软装饰品都渐渐到位,留了一部分手工制作 diy 的细节让空间更有温度。
经过半年时间的设计,修缮,施工和软装布置,终于迎来了开门纳客的时候。
项目的深化负责 D 姐终于现身,与能粗能细的康工一起 DIY 茶室帷幔。
2018.9.3
▼布置下软装摆件,喝一口满口香甜的熊猫酒仙~吃一口甜而不腻的芝麻青砖~不甚欢喜
在施工跟踪的过程中又穿插着许多细节设计的沟通工作,与各路大侠厂家们沟通出目标效果真的不是一件容易的事情。现实情况是我们总是拿着有限的预算,想达到一流的国际感的独特效果。同样一个部位,我们常常用多种方式表达设计意图:施工图往往是最难懂的,su 草图比较直接,有时候实在没办法的时候需要面对面的比划儿。不论采用何种办法,达到目的才是关键。诸多繁杂的定制需求,在业主方大力的支持下终于一一实现。
▲ su 模拟铁艺门和防腐木和新建墙体的结合方式,一切做不了只是不愿意的借口。
▲定制全面铁艺花池嵌入室内地面;
▲cad 和 su 结合建模阐述窗户定制要求,图纸齐全的好处是如果厂家做错了,会毫无怨言的改过来。语言沟通可就说不清楚了,最后妥协只能怪自己不谨慎了。
▲院落门头图纸及模型,这个异形的门头定做起来也是坎坷,遭遇众多的做不了后,最后淘宝上以非常实惠的价格解决了。
皇天不负有心人,我司小伙伴都有颗大而直的心。用心用心,取之不尽用之不竭的心。
▲定制家具的图纸及模型,桌子和椅子都是定制的。一定要让业主的设计费花在每一个细节。任何一个独一无二气质的空间,打造的背后是每一个独一无二的细节。
▲楼梯定制模型和灯具定制模型
▲成品家具的搭配考虑整体性和性价比,不远千里来到这里。
▲花花草草的绿植也是不能放过,高度比例和叶子种类都有符合气质。
▲软装配画是非常关键的,特别是在都是大白墙的空间,成败再次一举,平日积累的艺术修养终于有了发挥的用场。
▲细节
小到螺栓、布料、石头的形体与大小,大到家具的选购事无巨细,认真负责。
▲这对宝石头的主题-欢喜相依,花色,尺寸,形状,按照我们的想法来加工定制,不说别的,搬运都需要执念,业主和康工都是棒棒哒。
▲定制了布椅,精致的工艺让家具有独特的故事,为纯净的空间加入尊贵的气质。
▲地板要有现代性并且便宜耐用,最好局部再来一点意外惊喜而不显单调。
// 概念设计及部分图纸 //
设计概念-
墨竹青煮时
煮茶 // 煮雨 // 煮酒 // 煮时间
日月如磨蚁,万事且浮休。
只盼花深里,雨露沾人衣。
梦连环、饮花酒、观青竹。
以竹为线索,贯穿与空间,
logo,布衣,软装,灯具饰品。
若隐若显的链接着这个活着的空间。
▲一楼平面布局
▲二楼平面布局
▲三楼平面布局
▲ 详实的立面图
▲ 精确的定制家具图纸
其中心血,无可名状。聪明的人可能会花费 1 个月会做到 90 分,拙实的人会花费半年做到 100 分。谁有智慧,还要看不同的人生价值追求。
SU 建模▼
本次案例使用 SKetchUP 来进行效果展示,SKetchUP 可以灵活的进行墙面造型及定制家具的建模,操作灵活可根据现场施工情况及时更改模型以便于后续的设计跟踪。
VI 设计▼
欢喜的 logo 设计是根据竹叶的形状衍生而来,又根据 logo 的形状为欢喜特别设计了室外灯箱。
物料
清单
物料清单的制作可以方便业主方采购需要成百上千种的材料,千万不要小看这个工作量和专业度。设计费和关系不到位的,一般是不会做这些的。费心费力不讨好,不挣钱还高风险的事情,特别聪明的都不会做。
各种详细的配置清单,根据时间节点贯穿于施工期间的始末~
// 开业后反馈记录 //
短短时间已经成为天津创意菜第一名~自开业以来好评已如潮~为什么呢?除了独特的空间设计之外,重要的自然是产品更给力,特别是老板男帅女美,还有萌娃代言。一壶好酒,一块青砖,二三好友,现在约起来吧!岳阳道 104 号
设计师档期随时变动,咨询预约尽量提前。
Add : 天津市河东区海河东路棉三创意街区 3-1-119
周一至周六 9:00AM-6:00PM
客服
消息
收藏
下载
最近














































































































































