查看完整案例


收藏

下载
Gabriela Carrillo是一位来自墨西哥的女性建筑师,也是知名设计组织Colectivo 733的创始成员之一。她凭借场地的敏感性和丰富的感官体验式设计形成了自我特殊的视角和风格,屡次受邀参加不同国家举办的建筑双年展,并于2017年被Architectural Review 和Architects Journals评为年度女性建筑师。
Matamoros Market
对于墨西哥来说,日常的市场不仅仅是购买和销售生活用品的简单空间,更是承载着地区文化和商业联系的场所。本案位于墨西哥东北部的城市马塔莫罗斯,当地的乡土建筑往往以坚实的表皮和内部的天井来应对气候条件,Gabriela Carrillo将这种地域性的启发反映于作品中,有效地减少了资源和后续维护的消耗。
建筑的底层为红砖砌成的封闭方形体块,Gabriela Carrillo仅在人流聚集的几个方向留有相对应的通道。而其上方则是一个倒金字塔式的雨水收集结构,这种特殊的结构体系有着高系数的硬度,能够抵御飓风或是暴雨时的降水,并为雨雪径流提供了最佳的路径。
Casa Piedra Acapulco
Casa Piedra Acapulco是一座位于阿卡普尔科湾半岛上的住宅,这里曾是一片花岗岩矿床,因此场地内遗留了有许多天然的石块,住宅中心的位置更是有两块直径超过两米的巨石。Gabriela Carrillo将这种特殊的地质条件视为场地特色而保留下来,并建立了一个完全开放的空间体系。
住宅的餐厅和起居室围绕着中心的巨石铺展开来,同时与户外的泳池相接,消解了内外的界限。除了厨房和影音室外,住宅的其他空间都以一种开放的姿态融入环境,与自然密切地交流并进行对话。建筑的墙体由混凝土和当地的沙子混合而成,在色彩和肌理上与海滩遥相呼应,从而使之与岛上的景观和谐相融。
Casa de musica
Gabriela Carrillo与其他来自Colectivo 733设计团队的设计师一起改造了这座位于纳卡胡卡市的社区中心,在完成后作为公众共享的音乐之家和教学场所投入使用,同时保留了举办社区庆祝活动和聚会的功能,作为城市改造更新计划的一项重要工作而为落后的地区提供服务。
Casa de musica有着32x24m的开放式平面布局,内有八间满足隔音效果的演奏室,可以同时练习不同的乐器,并设有自助餐厅、办公室和其他配套空间。整个综合体利用交叉通风和坡屋顶使热气上升,控制室内的温效,减少能源的消耗。
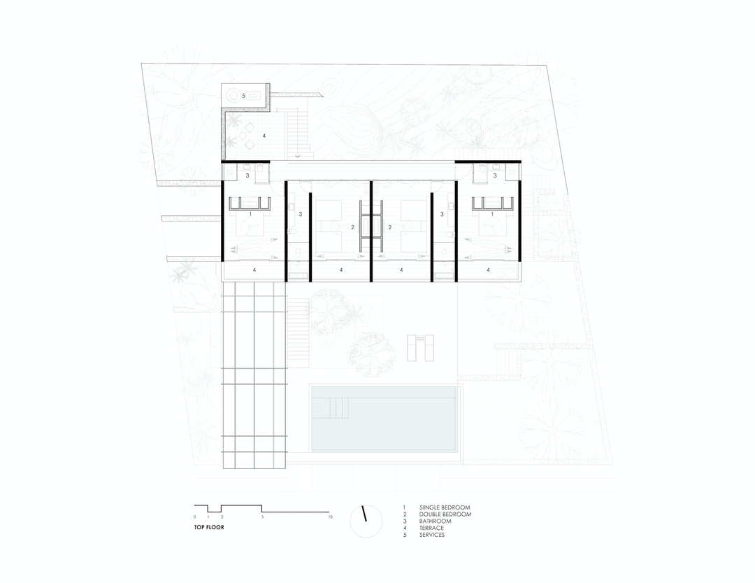
Casa Toluca
Casa Toluca位于墨西哥州托卢卡的一片开放式社区内,为了确保业主的隐私,住宅的底层相对外部而已设计的较为封闭,但与此同时,Gabriela Carrillo将两个建筑体块之间的夹缝空间打造成了一个纵向的视觉轴线,呈现出共享自然的形式。
住宅内部的景观设计同样别有特色,中心轴线的空间内有着几处曲线型的小土坡,上面种植了能够适应光线条件的阴性植物,这一细节的处理不仅打破了建筑单调的背景,还丰富了中心空间的设计元素,使其更具自然的氛围。
撰文: YouChuan
版权:Gabriela Carrillo
建筑 | 室内 | 设计 | 艺术
客服
消息
收藏
下载
最近
































































