查看完整案例


收藏

下载
路易斯·康说,美比任何你想得到的形容词都更强烈,那是一种完全和谐之感,不必知,没有条件,不需要评断,也无须选择就能感受到的。那种完全和谐之感一如你和造物者之间的交会,而造物者即自然。因为自然是所有被造物的创造者,少了自然之助,你无从设计任何东西。万物互联,大道至简,人对环境的感知是很敏感的,作为栖身之所,家不必为了迎合流行而设置,应遵循自我心灵的向往与实际需求。
D· DESIGN的团队也常常在想,如何将这些由冰冷的钢筋水泥构成建筑物变得有温度。建筑、环境、人,如何在一个很好的尺度中找到平衡。别墅建筑,最有价值的地方自然是独居一户的私密居住环境,和可以让一家人或亲朋有更多互动的居住空间,远离喧嚣,清逸翛然。
建筑多余的墙壁被拿掉,窗户尽可能的打开,把更多的光线引入室内。光的注入让空间有了温度。更多的自然风光进入室内,建筑、环境与人也因此可以有了更多的“对话”。
质地是一个需要全方面去考虑的事情,所以从地板、墙面、家具、软装,以及到艺术品的选择也颇为重要。以自然和舒适为主,大地色系特有的质朴温润,有平衡和舒缓身心的效果。入口玄关及客厅壁炉温润特别的哑面大理石,自然的石材纹理和颜色质感端庄又时尚。用最简单的色彩呈现最丰盈的质感。
去掉了房间之间的墙壁,狭窄的走廊被推开,厨房、餐厅、西厨形成了很好的互动关系。透过餐厅区域超大的落地窗便可将精心布置的庭院风光一览无余。无论置身于室内的任何一个空间均可感受到光给您传递的信息,日出日落,四季更替,尽可倾心感受。而室内空间无需任何的装饰也可以变得生机盎然,颇有情调。
在别墅住宅中,楼梯不单承载的是连接空间的功能,在我们看来它更像是一座存在于室内空间的建筑艺术品。无需华丽和绚烂的材质去刻意装饰,也可令其成为视觉焦点。木制的踏板,即便赤足行走也不会感到冰冷,舒适、自由、随性,居家感十足。
主卧室超大的落地玻璃,让花园的绿色蔓延至室内。阳光正好,将清雅铺开,肆意蔓延流淌,看似淡然随意,却倾注着对生活细节的每一分热爱。
生活质量更多的是由内在状态决定的,当那些浮华绚烂褪去,剩下的是喧嚣之外的宁静。物品少了,质感和情感让留下的更有价值,而镶嵌在事物中的东西变得更有意义。
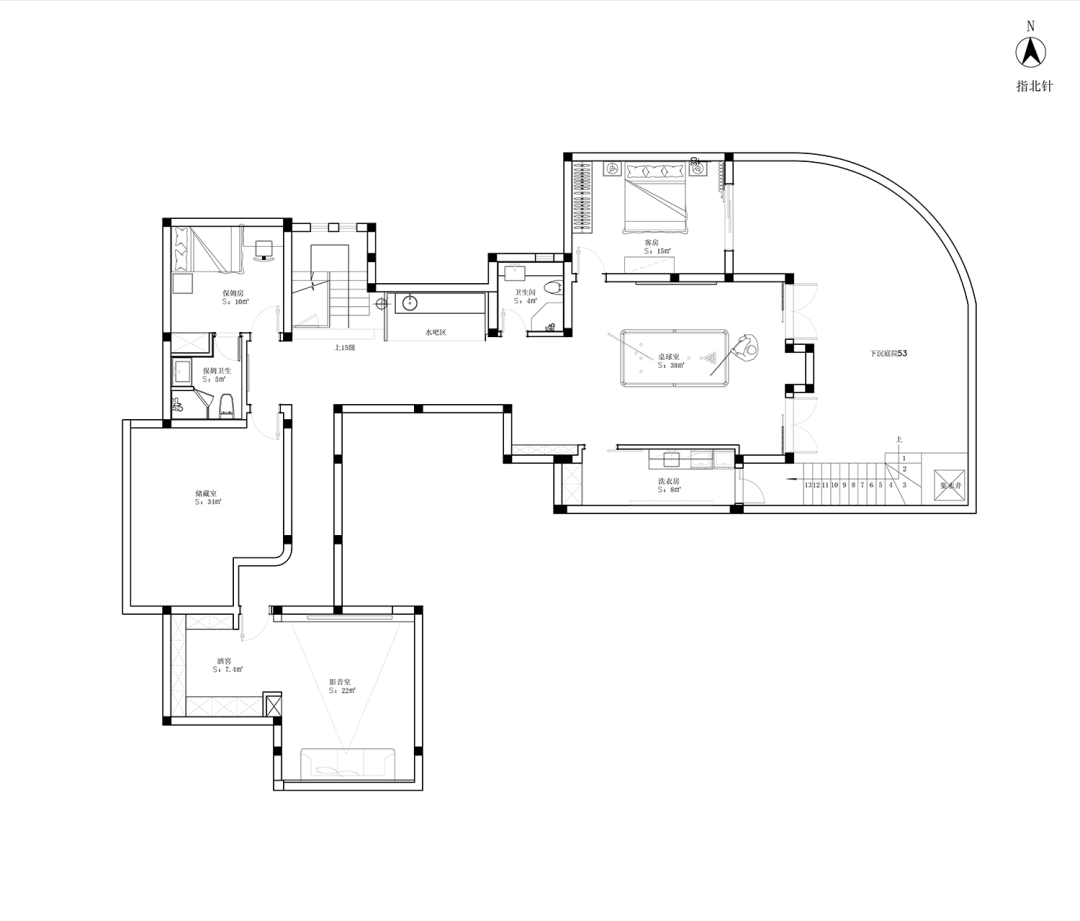
△负
一层平面图
△
一层平面图
△
二层平面图
项目名称|中房森林别墅
项目地点|中国 上海
设计公司|上邸室内设计
主创设计|应华东
设计团队|应华东、李冬哲、腾峻华
软装公司|上邸室内设计
项目面积|600㎡
设计时间|2021年5月
完工时间|2022年7月
部分品牌|Baxter、Cattelan Italia、Ceramiche Coem、DG ART SPACE、
富立织锦地毯
项目摄影|张静
应华东 / Donny
上邸室内设计公司创始人 /
设计总监 / 主案设计师
Donny毕业于上海东华大学,环境艺术设计与工商管理双学位后来进入意大利米兰理工大学进修设计管理硕士,从业经历16年。2013年创建上海上邸室内设计有限公司。
上邸室内设计有限公司成立于2013年,公司入驻文定生活广场,毗邻全中国最顶端的建材品牌中心-喜盈门国际艺术中心。上邸设计由从业12年米兰理工室内设计硕士学位的资深设计师担纲设计总监打造集室内设计,工程施工,软装陈设,产品采购于一体的国际化设计公司,专业服务于对空间、设计、品质有要求的客户群体。业务范围涵盖:住宅,酒店,会所,地产,商业空间,施工工程及软装陈设。从整体出发,建筑、室内和装饰团队密切合作,为客户提供精美、和谐的设计。
客服
消息
收藏
下载
最近











































