创作上传
VIP
收藏下载
登录 | 注册有礼
知末案例
/
齐物秋水
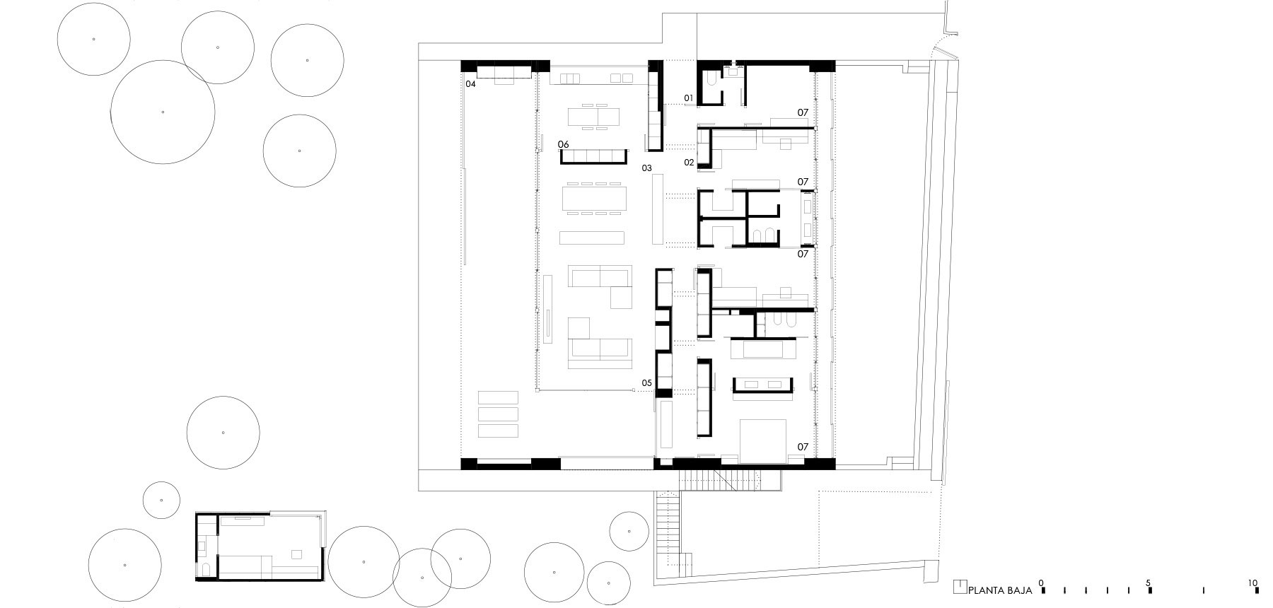
Prism House Ramón Esteve
2020/07/02 18:52:00
查看完整案例
微信扫一扫
收藏
下载
分享
你可能还喜欢
换一换
极简大宅 House in Sotogrande丨西班牙丨Fran Silvestre Arquitectos
湖泊亭阁丨加拿大丨Agence Spatiale
赖特 1911 年设计的 Taliesin 别墅 | 室内设计亮点与评价
柯布西耶的现代建筑杰作——普瓦西萨伏伊别墅
流水别墅
Gas Natural 巴塞罗那总部设计
从业36年,他说:设计,其实是一场预谋。
CMP Design家具产品的场景化展示
温莎花园
大气精致的155㎡住宅,一抹蓝色唤醒时尚气息!
鼓浪屿杨桃院子旅馆设计丨至少是空间设计
卢斯别墅
义乌绿地朝阳门臻装艺术丨中国朝阳丨杨德富
自在熙和丨中国云南丨零境设计
广州增城远洋风景售楼处丨中国广州丨广州内构筑设计顾问有限公司
CLOUDWORKS
现代简约城市花园公寓设计
施泰因巴赫凯勒
客服
消息
收藏
下载
最近