查看完整案例


收藏

下载
Architects: Slava Balbek, Anna Riabova Design: Sasha Kozynets Project Area: 40 sq.m. Project Year: 2018 Location: Kyiv, Ukraine Photo credits: Yevhenii Avramenko
建筑师:Salva Balbek,Anna Riabova设计:Sasha Kozynet项目区:40平方米。项目年:2018年地点:乌克兰基辅
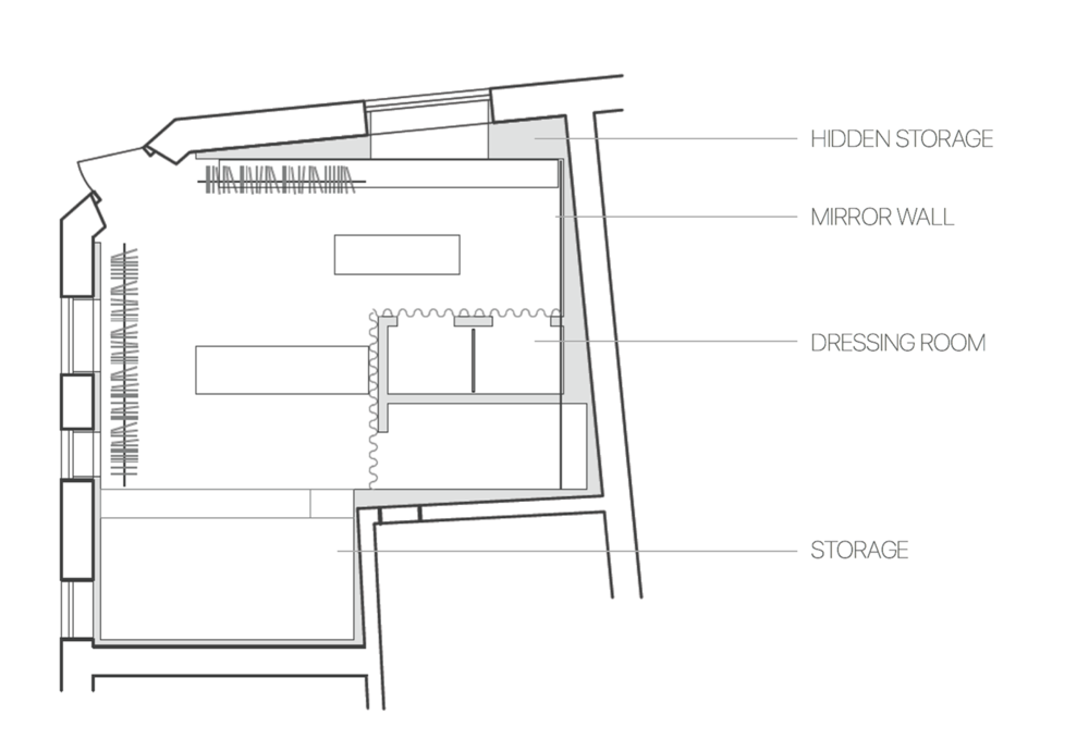
Syndicate is a showroom and dressmaking workshop located in an old building with uneven walls and narrowed spaces.
辛迪加是一个陈列室和裁缝车间,位于一座具有不均匀墙壁和狭窄空间的旧建筑中。
We decided to use the distorted space effect: depending on the complexity and geometry of the floor plan we folded up the axis of parallel and perpendicular lines in relation to the floor tile and installed frameless glass windows fitted into the walls straightened by gypsum board. The only original elements left were the old floor tiles and lath and plaster ceiling, which of course was cleaned, thoroughly dusted and prepared for use.
我们决定使用扭曲的空间效应:根据平面图的复杂性和几何形状,我们将平行线和垂直线相对于地砖的轴线折叠起来,并将无框玻璃窗安装在用石膏板矫直的墙壁上。剩下的唯一原始元素是旧地砖、板条和灰泥天花板,当然,这些都是经过清洁、彻底除尘和准备使用的。
The result was a perimeter with absolutely even white walls, simple forms and straight angles. Another important spatial solution worth mentioning is a mirror panel. Therefore we preserved the functionality of the space and achieved the desired visual effect.
其结果是一个绝对均匀的白色墙,简单的形式和直角的周界。另一个重要的空间解决方案值得一提的是一个镜子面板。因此,我们保留了空间的功能,达到了预期的视觉效果。
客服
消息
收藏
下载
最近





















