查看完整案例


收藏

下载
△THE PHOTO .ZCOOL设计
摄影©Blackstation影像
PLEASURE & CADENCE
愉悦 & 韵律
项目类型 | 别墅空间
在空间中 真实而有温度
是一种极致品质
人们常常谈论美
关于生活 关于居住 也关于精神
韵律优美 相互交错
——设计师寄语
项目地址/广东•东莞•御景湾8号别墅
Project address | Dongguan
建筑户型/独栋别墅
Project address | Single-family Villa
施工面积/ 1000平方米
Construction area | 1000
设计公司/景湖装饰设计
Design company | JingHu space design
全案设计/赵海波
Whole case design | Zhao hai bo
深化团队/全武春 魏晓
Design team | Quan wu chun、Wei xiao
客户经理/陈聪
Key Account Manager| Chen cong
项目位置
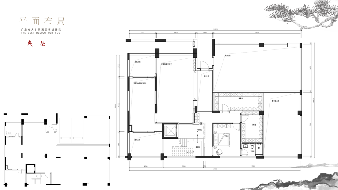
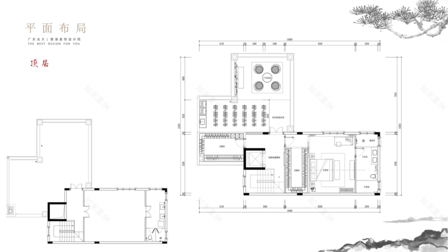
01.
负一层空间平面
Ground floor plan
隐谧之所,从具象的外在转向抽象的内在
建筑,居于自然,于外创造美丽的风景;隐藏于心,于内满足精神与灵魂。空间的本质是以某种方式存在的精神和意志,栖居在城市中央,如何通过设计的本质转换身体的体验,是设计的重中之重,空间、虚实、材质、光影、空气、气味、色彩、感受
等共同构筑完美的心灵居所。
—门厅 ENTRANCE HALL—生活如一场电影,空间为背景,时间为线索,房子的主人透过生活的点滴讲述扣人心弦的故事,每一件家具、器皿、艺术品都是不可或缺的物件,不经意间抒写动人的旋律。“纯粹的景致成了纯粹的情,那就是诗。”纯粹的设计,伴着时光,渐渐养成纯粹的精神淡泊。
—玄关茶厅ENTRANCE HALL—
设计师希望,回家是度假的开始。家,不仅是温暖的港湾,也可以是与自然贴合的度假之所。
—楼梯电梯间STAIRCASE ELEVATOR—
— 健身区FITNESS AREA —
— 雪茄吧 威士忌吧CIGAR WHISKY BAR—
— 影音室VIDEO ROOM—
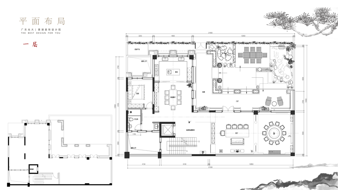
02.一层空间平面
Floor plan
对于多层空间而言,遵循富有辩证性的设计逻辑,更能彰显实用性、动态性、诗意性。对于色彩搭配而言,精准运用才能碰撞出蓬勃的生命力,破解生硬与冰冷的局限,蔓延流动的心跳。
—门厅 ENTRANCE HALL—幸福的空间是无法标准化的,设计师要做的是发掘每个家庭成员的生活方式与生活梦想,为每种习惯、每种偏好、每种心情找到可以安放的位置。
— 茶厅宴会厅公共区LIVING ROOM—
当一切都做对了,家就成了一曲和谐的乐章,那流淌着的就是生活。
— 餐厅区DINING ROOM—
—楼梯电梯间STAIRCASE ELEVATOR—
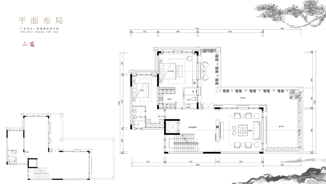
03.二层空间平面
Floor plan of the second floor
品质生活
人居美学
/结构是哲学性的,结构是一种从上而下乃至最微小的细节全部都服从于同一概念的整体,这就是所谓的结构。
——密斯·凡德罗
—楼梯电梯间STAIRCASE ELEVATOR—
— 家庭厅FAMILY HALL—让节奏柔和放松下来,从浅至深的过渡给人春风拂面的惬意感.个性化空间的自我表达,创造一个振奋人心的色彩故事,打造一个充满希望的乐观主义世界。
客房GUESTROOM
— 长子卧室
ELDEST SONBEDROOM
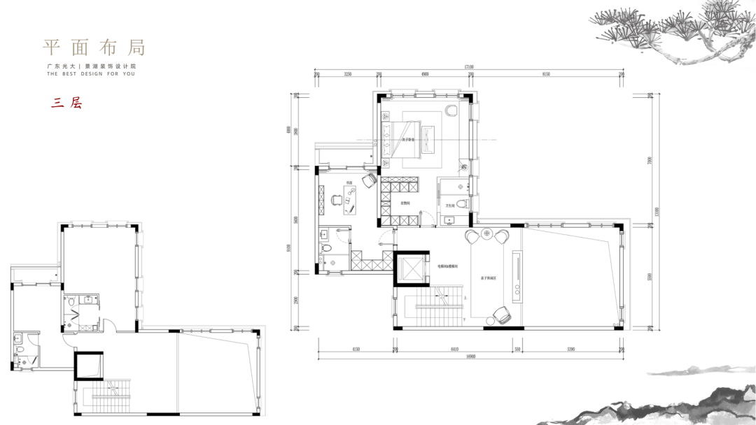
根据孩子的成长需要和性格差异,设定空间的不同风格,注重舒适,彰显个性。空间功能被拓展延伸,不仅符合孩子的生活起居习惯,更强调人文关怀。04.三层空间平面
Floor plan of the third floor
吾心安处
夫天地者万物之逆旅也
光阴者百代之过客也
而浮生若梦,为欢几何
— 书房BOOK ROOM
书房承担阅读和收藏功能,当代艺术被融入的饰品、家具细节等各处,通过各种样式的组合搭配,形成强烈的视觉符号和空间印迹。
— 休闲区
LEISURE AREA
设计师以家的温暖诠释生活的真意,每个独立空间各司其职,相互联系、作用,从而融合成空间机能完整的家庭聚会空间,符合家庭成员生活习性的同时也能彼此陪伴。
— 次子卧室
SECOND SON BEDROOM
05.
四层空间平面
Floor plan of the fourth floor
顶楼是业主日常起居之处,着眼居住者的审美气质与生活需求,感知人的幸福脉络,提炼出空间四大核心:品质、丰盈、情绪与秩序。
— 主人房
MASTER BEDROOM
住宅以人为核心,空间的构造、美学的创造、情感的导向都基于对独特的居者生活方式的洞察。在日常与超越日常之间,一个舒适的、开阔的、明媚的、友好的、充满艺术感的家呈现于眼前。
本案设计师
Designer of this case
设计师:赵海波
Designer/Zhaohaibo
赵海波
景湖装饰总监设计师
室内装饰行业从业11年,专注个性化全案设计
资质| Qualifications
CIID中国建筑学会室内设计分会会员
中国建筑装饰室内设计协会高级室内设计师
中国室内设计学会优秀青年室内设计师
AD100榜单年度室内设计师
理念| Idea
Harmony is more important than surprise, style is more important than product, and comfort is more important than performance.
和谐比惊人重要,方式比产品重要,舒服比表演重要。
殊荣 | Award
AD100榜单年度室内设计师
中国室内设计学会优秀青年室内设计师
案例|Case
光大景湖花园光大锦绣山河 景湖蓝郡
愉景花园虎豹郡王府品尊国际、紫金文昌、扬州天下、加州庄园、月城熙庭、林溪山庄、森林湖、香茗湖、万科第五园等...
广东光大企业集团有限公司始创于1983年,总部位于粤港澳大湾区重点城市——东莞,历经三十多年的积极探索与实践,逐步形成泛地产板块、科技板块两大核心业务协同互动发展的企业集团。业务覆盖至北京、深圳、广州、杭州、绵阳、惠州、肇庆、云浮、清远、南宁、钦州、梧州、贺州、桂林等城市,以及德、法、以等国家,旗下拥有多家全资及控股子公司,员工逾万人。
广东光大秉承“润泽社会兴邦惠民”的企业使命,坚持以客户为中心,守法合规,诚信经营,集团及子公司先后荣获“广东民营百强”“广东纳税百强”“中国房地产业100强企业”“中国建筑业百强企业”等荣誉。
在创造经济效益的同时,集团始终以企业公民姿态履行社会责任,用行动践行使命,以奉献诠释责任,在扶贫赈灾、助学兴教、公共基建等多方面为社会、客户、和员工传递爱心,致力于做市场尊重的永续企业。
室内设计|德系施工|主材搭配|软装陈设|贴心售后
以建筑室内、室外装修工程的设计和施工为一体的专业装饰企业--东莞市景湖装饰工程有限公司,作为东莞本土大型企业光大集团旗下子公司,依靠强大的实力背景,扎根东莞20余年,坚持从建筑概念设计开始,以人为本,服务于人的设计理念。将国际装饰材料呈现最前沿设计的装饰企业。
+86-0769-22663899
东莞市东城区鸿福东路天骄御峰花园地铺46栋1-3
肇庆市端州区凤翔路一号盛景豪庭2号楼首层及二层
客服
消息
收藏
下载
最近












































