查看完整案例


收藏

下载
Lloyd Hartley Architects
新西兰室内设计事务所
Lloyd Hartley Architects是由设计师Lloyd Hartley创立的同名室内设计事务所,总部位于新西兰。Lloyd Hartley是一位崇尚自然的设计师,在其设计作品中,自然“进化”意味着自然成为建筑的一部分。
他希望通过设计作为融合室内与环境的桥梁,赋予居住空间更加深刻的意义。
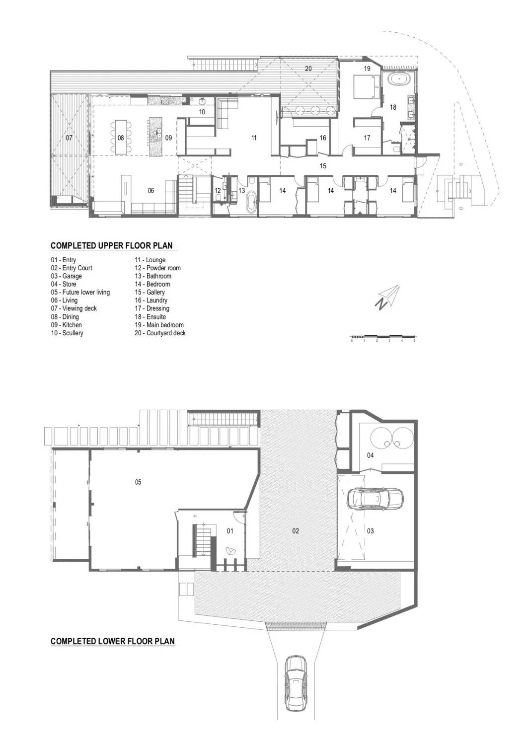
#01HILL TOHORIZONHOUSE
山海之间住宅
“建筑与自然之间有着一种实在、本质的联系。”
——Lloyd Hartley Architects
奥塔马海滩(Omaha Beach)宛如一个被拱到科罗曼德尔半岛(Coromandel )最北端的高隐之地,而筑成这一道道的通北之路的,是无数艰难难行的碎石路。在海滩与其后的山陵之间,Lloyd Hartley设计了一套安静又原始的住宅,它裸露在山表的外壳里,又深陷在海岸的背景之中。
住宅面对大海,背对山丘;任由那崎岖的山间轮廓延伸,它笔直的线条依然能占有一席之地。住宅一共两层,以其独特的人字形屋顶称奇,特别是当转换看者的视角之时,能感受到关于这座住宅“千人千面”的别样风情。
这是一间温暖、成熟的度假屋,以供业主的大家庭可以在海边享受一段美好的时光。Lloyd Hartley引入了大量的木油染色材料,它们以异形的线条切割天花板,为室内带来一种反叛、活泼的效果。
为了中和这样的叛逆,让空间不失之偏颇,Lloyd Hartley采取了两个方案:一是充分利用房屋的朝向,引入丰富的采光和视野;二是添加象征着成熟、克制的黑色材料。
Lloyd Hartley思考这样的两个问题:在山川与海洋之间,究竟有着一个怎样的地带,可以创造出一个怎样的空间?置身于奥塔马海滩的他得以茅塞顿开,他找到了答案,那就是自然。自然可以包容它本身,也可以包容人类社会;它不是新生的,它是永恒的。
所以在无数的设计方案碰撞中,Lloyd Hartley将极简、舒适、全身心的放松作为关键词挑选了出来,最重要的是,它们都是通往自然的道路之一。
再伟大的思想、风格,也需要一个物质的外壳去承载;正如那通往自然的道路,在山海之间,自有来自人类的精雕细琢,纵使看上去自然天成。在这座山海之间的住宅里,在与自然如此亲近的关系中,我们可以感受到人类本性的回归;当眺望海滩时,感受到如此宽阔的世界。
#02THE TAILOREDHOME
定制的家
“室内设计和服装设计有着相同的环节,材料的选择是为了增强住宅新衣的手工制作性质。”
——Lloyd Hartley Architects
"定制"一词最开始被用在服装领域,指的是为个别客户量身剪裁。而这个词语如今放在了建筑的领域,即将人在建筑中的主体地位提升到极致。
Lloyd Hartley便为一位服装行业的客户量身定制了一套住房,在这里,住房的外在表现形式和内在理念都成为了客户的发散能量之一,不管是材料还是剪裁,都显示出了一种精心定制的快感。
住宅选用了多元的材料,如狭窄的雪松板和铝制面板,二者在建造中折叠融合并且产生强大的张力。雪松坂可以很好地与自然环境产生联系,像精细编织的竹篮网了一束光,产生怡然自得的心境。铝制面板折叠接缝,加强了空间的个性。
住宅依湖而建,与湖水有着天然的联系。镂空拼接的铝制百叶窗组合玻璃门材料,在引入了湖光春色的视觉享受中也拉近了人与自然的距离,使人得到心灵上的休憩。
缝合的金属质感带来的平整,令人联想到了如西装面料般的平滑、垂顺,将业主的职业也视觉化到了住宅,创造一个个性化的空间。
面临湖泊,背倚山林,建筑完全地置身于自然之中;而置身于这个建筑中的人,每一寸呼吸,每一个思考,都将与其如影随形。
定制的家是一个有凝聚力的整体,其中的“定制”的含义既象征了业主的职业特点,也包含了定制于自然的设计理念,使其在其突出的湖畔上刻下了一个难以忘怀的印记。
平面图/TheFloor Plan
#03HERNE BAYHIDEAWAY
赫恩湾隐居
“人类始于自然最终也要通过空间回归自然。”
——Lloyd Hartley Architects
赫恩湾是位属英国的一个宁静乡村,在坐落在房屋群落之间的某个车道尽头,掩藏在茂密的常绿树之下,有一座60年代的砖瓦房屋。这座房屋需要被挖掘出新的灵魂,才能与周围的环境相互融合,所以Lloyd Hartley Architects被聘请为此次翻新的首席设计官。
住宅面临考克斯湾(Cox’s Bay ),有着优越的自然地理条件。然而事实上,原有的住宅却并没有利用好这个优势,以至于空间给人一种生硬、死板的感觉。Lloyd Hartley的目标是将其设计成一个如沙漠绿洲般的舒适空间,为业主的家庭提供一个可以休息的庇护所。
一个庇护所必须保卫人们的心灵,并且在沉浸的生活体验中感受环境、建筑的疗愈,所以其设计必须是积极的、治愈的,其中一个很重要的特点就是恰当的引入自然的光线。从开放式的楼梯开始,Lloyd Hartley就主动地引入自然光,一直到主要生活区,这样的光线伴随着美丽的景观被不断地引入了室内。
美丽的景观来自大面积的落地玻璃窗,可以想象在欣赏乍暖春光的同时,进行个人生活的创造,如烹饪或是享用美食,何其美妙!
整个空间以白色作为基本调色板,以调和这座历史住宅的陈旧。人字形顶为空间增加开阔的视觉,黑色的线条巧妙地将灯隐藏其中,呈现出简约的现代线条感。不能忽视的是被大量使用的细木工,它与浅色的背景形成简约舒适的生活氛围。
除了室内被重新翻修,从整个建筑上来看,这所住宅还被适当地扩建了,并提供外部上层甲板,以允许各种生活区和庭院连接。
与温暖舒适的生活区相比,浴室则更加现代、甚至朋克。黑色的质感展现出对都市生活的反叛,斑斓的马赛克瓷砖在光线闭合之时呈现出金属的质感,展现出业主想要逃离都市的冷艳、叛逆性格。
自然的纹理裹覆空间的每一寸,向上打开的天窗得以让光线与纹理融合一起,仿佛清弦得遇好琴,奏乐出属于自然的浪漫歌曲。Lloyd Hartley精心挑选了天然材料,调色板、干净的细节,将房子联系在一起,创造了一个有凝聚力和永恒的整体。
平面图 / The Floor Plan
—END—
人与自然共生 / Herbst Architects
自然·奢适 / Tobias Partners 新作
巴西设计·自然极简 / Lucas Takaoka
软装的视觉传达/Arent&Pyke新作
客服
消息
收藏
下载
最近















































































