查看完整案例

收藏

下载
01
锋茂建筑
四川宜宾安石村,一个普通乡村,背靠碾盘山。村落阡陌相通,田塘错落,屋树交织,是典型的川南聚落。
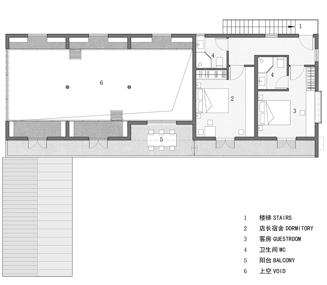
乡村书局位于安石村中心位置,三条道路交汇之处,场地与道路有4m的高差。建筑面对稻鱼共生区,建筑背后为开阔缓坡。
在建筑的外形、轮廓以及高度不做大的变化的限制下,如何将小尺度的日常生活的居住空间转化成为公共开放的阅读空间是设计过程中需要解决的最主要问题。
设计中,我们将建筑靠近景观的主楼西侧内部一二层打通,通过构造柱及圈梁等结构加固方式达到整体结构的稳定性,再将两棵“大树”植入其中,支撑新的屋顶的同时形成一个独特的阅读空间。
建筑西侧直面山景,我们采用了大玻璃面将景观引入室内,外立面设置的电动遮阳百叶,打开和关闭时候以不同的表情面对环境的变化。
考虑到日照对阅读的影响,在建筑南北两侧设计了不同的阅览空间类型:建筑南侧,为避免阳光直射,座位采用侧向窗户的排布方式面对而坐;建筑北侧,无阳光直射,景观视野良好,将座椅正对窗户布置,阅读之余可观赏山坡景色。
内部的木构架支撑了整个屋面,与下部结构适当脱开,形成漂浮感。内部细腻的木结构体系通过玻璃内透出来,与外立面粗粝的砖石材质形成对比。
原有建筑南侧一层部分,改造为会议室,上部为木屋架,西侧横向的大玻璃窗将碾盘山景色一览无余的引入到室内。
教育就是一棵树摇动一棵树,一朵云推动一朵云,一个灵魂唤醒另一个灵魂。那么希望在这个公益性质的图书馆里,在两颗大树之下,让村里更多的孩子在这里阅读、体验和交流,融入到村民日常的生活汇中去。
项目名称:乡村书局
建设地点:四川宜宾翠屏区李庄镇安石村
建设单位:宜宾翠屏农业发展投资有限公司
项目主创:锋茂建筑
建筑面积:240㎡
空间摄影:吴清山
02
昱景设计
台岭乡位于江西省吉安市永新县,中国革命的摇篮——井冈山下,是一个拥有约12000人口的农村。永新县气候温暖,自然条件得天独厚,拥有数个自然保护区。本案是对台岭乡的一个综合文化站进行公益改造。
在设计之初,我们便设想了一个田园诗般的开放设施,融入农村丰富的自然环境,并对当地特有的自然材料和既存空间进行再利用。
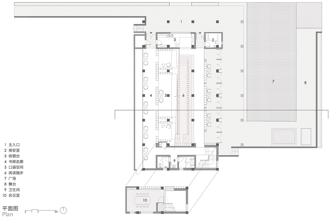
本案的主题并非建设一个封闭的图书馆,而是打造一个向公众开放的“堂”,使人们可以自发地在此聚集,由此为居民们提供一个老少咸宜的学习、交流、娱乐和休闲的场所,为他们的日常生活增添一些小小的幸福感。
建筑在平面上规划为三个区域:入口空间、大厅空间与功能空间。通过结构的设计,坐在大阶梯处,广场的景色一览无余。功能区在一楼配置了卫生间,二楼配置了高私密性的会议室。
大阶梯有足够的宽度,面对着广场而设,宛如剧院的座位面向着舞台。阶梯本身是设计为书架使用的。此外,在阶梯下的空间里还设计了山洞状的私人阅读空间。
弧形的天花板将三个区域连接起来。天花板的曲面反射来自天窗的自然光,使整个空间更加明亮。天花板的材料采用了铝制百叶,上面涂有用当地土壤制成的灰浆。通过弧形天花,呈现出了一个既有质感又柔和的大厅空间。
中国的城市与农村,在生活和环境方面有着相当大的差异。我们希望通过公益项目的设计为乡村的建设尽绵薄之力。
“拨云见日,开云见天”的开云书房历时16个月终于圆满落成,我们在现场收获了孩子们满足的笑容。希望开云书房能成为村民们休憩与交流的地方,也希望在这里学习和玩耍的孩子们健康成长。
项目名称:开云书房
项目地址:江西省吉安市永新县台岭乡
设计单位:COLORFULL 昱景设计
项目规模:500㎡
摄影版权:山兮建筑空间摄影
项目客户:台岭乡镇政府
延伸阅读
▽
客服
消息
收藏
下载
最近














































