查看完整案例


收藏

下载
| 空间设计|商业|民宿|软装|生活美学|
远离都市,守护着两人的梦幻花园。任窗外风景变化、四季更迭,只要有彼此陪伴的每一天,都是小春日和。
项目面积 / 102㎡
Area / 102㎡
项目户型 / 三室两厅一卫
House Type / 3L2D
项目花费/20w
Price / 20w
项目地址 / 成都 · 人居万新峰荟
Location /Chengdu · Sichuan
设计类型 / 精装房· 全案设计
DesignType /Boutique Room design
设计师 / 陈颖
Principal Designer/ Cheng ying
摄影师 / 张圆媛
Photographer/ Zhang yuanyuan
缘
前情介绍:
本项目是一对 90 后情侣和两只喵的故事,屋主两人都喜欢明亮,带一点干净温柔的居家氛围,希望回到家可以完全放松,坐在地毯上肆意玩着游戏机,在阳台上和喵大人一起晒着太阳……
■ 视频·
亦舍设计新作《小春日和》
美好
来自梦境深处的花朵,以最柔软的姿势,定格了时光。
关于风格:
因为两人对喜欢的风格有不同的意见,所以我们一致认为不限定固有风格,而是在材质上统一。选择橡木家具使空间沉稳静谧,现代文艺感更加强烈,再加入一些黑色增加厚重底蕴。
关于布局:
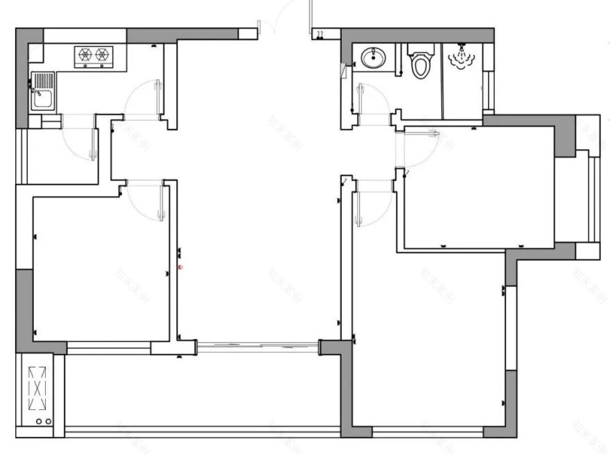
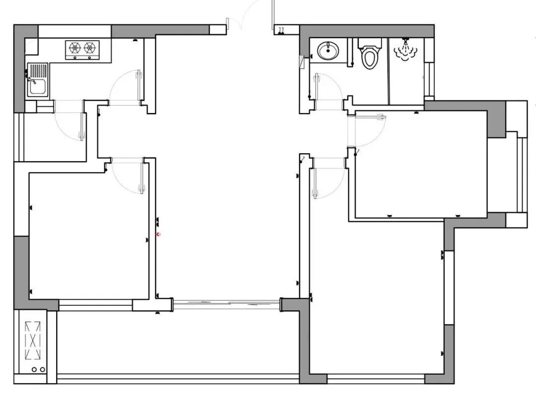
因为是精装房项目,原始空间分布较为规整,不需要大面积的墙体新建拆改,只需要进行小范围的空间优化,扩大客厅面积,增加餐区收纳。
硬装局改部分:
①拆掉原阳台推拉门,将客厅与阳台联通,横向扩大客厅面积;
②将原始红木地板拆除,重新通铺灰橡地板;
③将原始客厅顶面一侧拆除,内藏风管机,缓解客厅电视墙空间不足问题;
④原硬包电视墙拆除。
色彩:
大白墙做画布,辅以奶茶灰穿插原木色,点缀局部黑色元素。
材质:
橡木,灰色皮革,黑砂岩板
功能:
将传统餐桌改为餐边柜联通弧形导台的设计,即承担了餐区的收纳功能,岩板台面方便打扫也使得动线更加流畅有趣。
餐厅
DINING ROOM
—
餐厅承载着三餐四季的生活,定是一个不可被忽略的地方,无关乎大小,而关乎对胃的温暖,暖胃即是暖心。
餐厅与入户相连,因为空间过于狭小,导致如果采用传统的餐桌摆放,会造成玄关与餐区分界模糊,两边区域功能单一。同时男业主希望拥有一个能放置咖啡机的平台,女业主希望自己收集的杯子们也能得到展示和收纳,所以我们做了改良版的吧台餐桌。
靠墙做了边柜和收纳格,满足小家电和杯具的放置收纳,衔接过来我们做了和餐桌高度的“矮版“吧台,他可以满足我们放正常高度的餐凳,并且岩板台面导出弧度,圆润没有攻击性,材质本身也方便清扫打理。
餐凳采用长凳+圆凳的组合,无靠背的椅子最大程度地扩大了餐区的视觉效果。紧靠入户的长凳也可以作为换鞋凳使用。
餐厅墙面也没有用传统的装饰画,而是与过道的湖泊镜形成平面上的组合,异形的挂件和挂钟也让大白墙干净又不失有趣。
客厅 LIVING ROOM—因为家里有两只爱跑跳追逐的喵主子,所以客厅物品需要尽量精简,落地的沙发让猫咪没法躲藏到沙发底。超宽坐深的沙发,让两人撸猫的同时还有舒适的坐感。半弧形的灰色硬包包裹住白色圈绒沙发,适当的让空间形成维和感。放置在角落的葫芦落地灯,可以通过柔和的灯光氛围,将空间层次更加丰富的铺陈开来。
我们舍弃了茶几,用沙发旁黑色的窄长储物边几去取代它的功能,方便挪动且不占空间,还能解决遥控板、水杯小物件等的放置,一举两得。散落的蒲团除了可以坐以外,叠起来也是不错的边几选择,同时黑白藤编呼应了空间基调还增加了一些浪漫的氛围。
打掉原阳台推拉门,将阳台纳入到客厅,从视觉上使客厅的纵向拉长,增加其延伸感。靠墙的下水管通过储物柜包裹起来,可以放置猫粮和猫砂。另一侧阳台位置,放置猫爬架,让它们在这个家有更充足的使用空间。
电视柜采用悬空的抽屉柜设计,暗埋管道,可以保证设备放置后隐形线路,美观整洁。悬空长柜方便机器人打扫卫生。长虹玻璃吊柜,内嵌灯带,将业主积攒的公仔、盲盒悉数纳入。
主卧
MASTER BEDROOM
—
主卧墙面通刷了奶茶色,定制柜的静谧奶灰搭配成品家具的樱桃木,整个空间温柔又不失文艺。衣柜和床头的位置,我们做了镂空衔接,取消了传统床头柜的放置,让原本不方便打开柜门的位置成为可以放书,放隔夜衣的高频地方。
床尾的小梳妆台,有可以左右滑动的镜子,镜子背面就是可以直接钉在上面的耳环收纳软木板,小巧不占地,积攒出更多的空间留出来给过道。
客房 GUEST ROOM—作为远在外地的父母过年时短暂居住的空间,我们在满足正常衣物收纳和睡眠空间的同时,也选用了窄长的藤编小柜,两边都可以同时放置,满足两位老人不同的使用习惯。床头背景用奶茶色的色块,搭配古风金箔装饰画,颜色呼应其他空间,又能通过和后期的饰品搭配做出不同于常规的变化,简洁巧妙。
亦舍项目施工流程
沟通 | 设计 | 基装 | 主材 | 软装 | 摆场 | 拍摄
在每一个设计构思开始至完工结束,设计师除了把控好不好看这个基础之外,还需要运用逻辑去思考整个设计的立意和落地性。在全案设计执行的过程中,设计和施工团队需要配合把控每一个细节、完善每一个工艺标准和施工节点,这些都是决定最后落地效果的关键。在很多看不见的过程中的付出,恰恰是我们必须严格把控的地方。
■
平面布局解析
阳台封窗,通过阳台扩大客餐厅使用面积
↓亦舍.部分获奖荣誉展示
客服
消息
收藏
下载
最近




















































