查看完整案例


收藏

下载
©Duccio Malagamba
UFA 电影中心
德国 德累斯顿 1993-1998
UFA 电影中心设计的核心概念包括两个复杂交织、叠错的建筑体量:其中一个是拥有 8 个电影院厅以及约 2600 人座位的“电影院区块”,而另一个则是同时作为门厅及公共广场使用的玻璃“水晶体”。
©Duccio Malagamba
©Gerald Zugmann
“电影院区块”向街道开放,可供行人穿行,并且这一体量内部的流线体系设计有别于传统的电影院流线,观影者可以在内部走动时拥有看向街道的观景视野。
分析图
模型©蓝天组
“水晶体”不仅是电影院区域的功能性入口大厅,也是一条属于城市的通道。此外,由楼梯及廊桥组成的交通系统优化了这一空间在城市尺度下的功能性,其复杂的空间元素以层层的光感与色彩装点了人们的视野。
©Duccio Malagamba
©Duccio Malagamba
UFA 电影中心的八个电影院设置跨越了包括地下层的 4 个楼层,可以为 2600 名观众提供坐席。观影者可以通过“漂浮”的楼梯及一部电梯在各楼层间穿行。
©Duccio Malagamba
通往电影院的廊桥、坡道及楼梯本身即是城市特征的表达:这一空间的活跃程度如同电影的动态结构一般,其建筑元素将位于不同层次、处于不同状态的人们的动线变得清晰可见,同时也将复杂的城市场所的各种维度在空间中展开。
北立面图
©Duccio Malagamba
©Duccio Malagamba
©Duccio Malagamba
此外,“天空酒廊(The Skybar)”作为浮游于“水晶体”中的双锥体空间,囊括了如咖啡厅、酒吧等不同的功能区域,允许人们随时前往小憩。
©Duccio Malagamba
©Duccio Malagamba
©Duccio Malagamba
建筑师通过这种方式,让建筑物的内部空间变得对城市可见,同时周边城市环境的肌理也在建筑中得到映射而一览无余。UFA 电影中心是一座由内而外设计、且时刻保持着与城市对话的建筑。
©Alfred Schmid
©Alfred Schmid
模型©蓝天组
模型 ©蓝天组
建筑图纸
场地流线
体块示意
场地平面图
地下室平面图
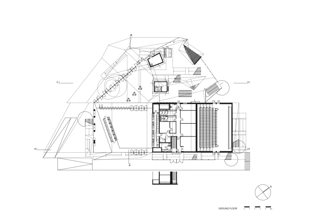
首层平面图
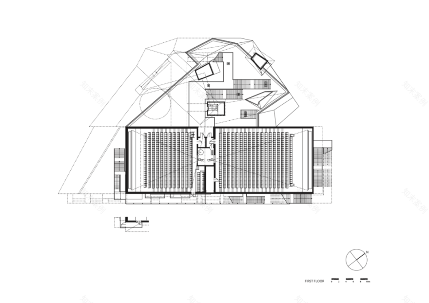
二层平面图
三层平面图
四层平面图
五层平面图
六层平面图
七层平面图
剖面图
剖面图
剖面图
剖面图
立面图
南立面图
东立面图
分析图
分析图
分析图
分析图
分析图
项目信息
项目团队
业主: UFA – AG 剧院,杜塞尔多夫,德国
规划:COOP HIMMELB(L)AU Wolf D. Prix & Partner ZT GmbH|蓝天组沃尔夫·狄·普瑞克斯及其合伙人有限责任公司
设计总监:Wolf D. Prix, Helmut Swiczinsky
设计建筑师: Tom Wiscombe
项目建筑师: Verena Perius
项目团队: Eric Geddes, Alex Hagner, Spencer Hunt, Laura King, Johannes Kraus, Miro Krawczinski, Andreas Mieling, Stefanie Murero, Florian Pfeifer, James Puckhaber, Stefano Pujatti, Jennifer Rakow, Stephanie Reich, Andreas Schaller, Karolin Schmidbaur, Alexander Seitlinger, Bernd Spiess, Michael Volk, Andras Westhausser, Susanne Zottl
施工图纸: Arge Eiger Nord Vienna;蓝天组 Coop Himmelb(l)au – ATP
结构工程: B+G Ingenieure, Bollinger und Grohmann GmbH, 法兰克福,德国
时间线
竞赛年份: 1993
规划开始: 02/1996
建设开始: 02/1997
竣工时间: 03/1998
项目数据
场地面积: 1,847m²
楼板面积: 6,174m²
建筑面积: 1,522 m²
客服
消息
收藏
下载
最近












































