查看完整案例

收藏

下载

翻译
Architects:Taller5 Arquitectos
Area :739 m²
Year :2019
Photographs :Oscar Hernández
Manufacturers : AutoDesk, KRYTON, Cemex, 3D MAX STUDIO, ALUTRON, Fester, Pinturas Berel, TrimbleAutoDesk
Lead Architects :Elisa Lerma García de Quevedo, Octavio Arreola Calleros
Design Team : Juan Manuel Vallejo, Salvador Rodríguez, Maximiliano Jaime, José Maldonado, Katia Sojo.
Engineering : Aurelio Yamin Sopeña, ICNUM S.A. DE C.V.
Landascape : Salvador Mendiola
Collaborators : Patricia Francoulon Álvarez
City : León
Country : Mexico
@media (max-width: 767px) { :root { --mobile-product-width: calc((100vw - 92px) / 2); } .loading-products-container { grid-template-columns: repeat(auto-fill, var(--mobile-product-width)) !important; } .product-placeholder__image { height: var(--mobile-product-width) !important; width: var(--mobile-product-width) !important; } }
Located within an upward steep slope and considering a wide program of necessities, the project required a dialogue of minimum topographic impact; that pursues something “special” in the terrain.
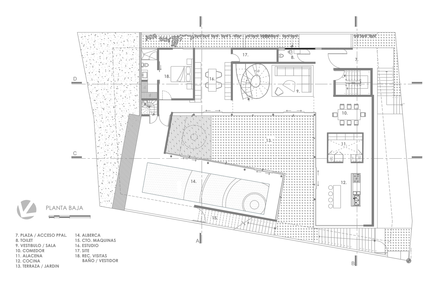
Casa LL manages, in a successful way, the user´s enjoyable coexistence with the project’s material composition; which combines the perfect balance between outdoor views, distribution and privacy. It also manages for both horizontal and vertical routes to be light and peaceful through the project.
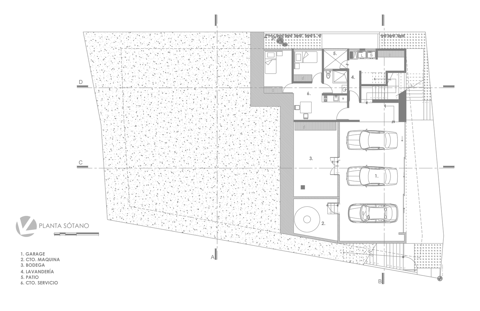
In a street view, Casa LL exalts its character with three blocks that demonstrate the distribution program´s rationality. One dark, strong body at the construction base contains the project´s services and elevates the social amenities which are perceived with an apparent concrete wall carefully labored, yielding prominence to a wooden cube that highlights the main entrance.
A light colored cube composed of two openings shapes the house´s closing element creating a feeling of lightness. Privacy is obtained by expressing material contrast throughout the work.
The house´s main entrance elevates half floor over the street level, consists of a stairwell composition that carries the user though a small access square directly to the lobby.
At main level, the house itself is a social area, it directly connects kitchen, living room, office, garden and swimming pool; allowing visual permeability though glass panels that separates house and central garden´s areas.
A black crystal cube, placed such as an inert monolith between kitchen and dining room vestibules the area, generates attractive reflections from any visual angle and encloses kitchen equipment and cupboard.
The double height main living room distends the garden and swimming pool views thought sizeable windows. This is where the stairwell yields its leadership throughout a rising elegant steel case spiral from base to main level, continuing its way over the upper railing, creating an ethereal effect.
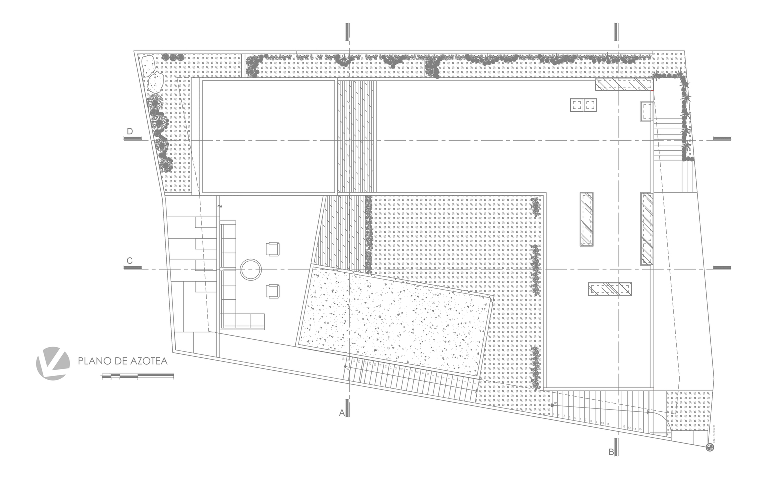
The swimming pool, which is one of the projects main axis, is contained within a mixed box of concrete and glass panels. It integrates to the program with direct access from the base and upper levels. This particular area manages to become a space for relaxation, recreation and contemplation. The slab serves as a fifth facade and visual aid from the houses base level and terrace.
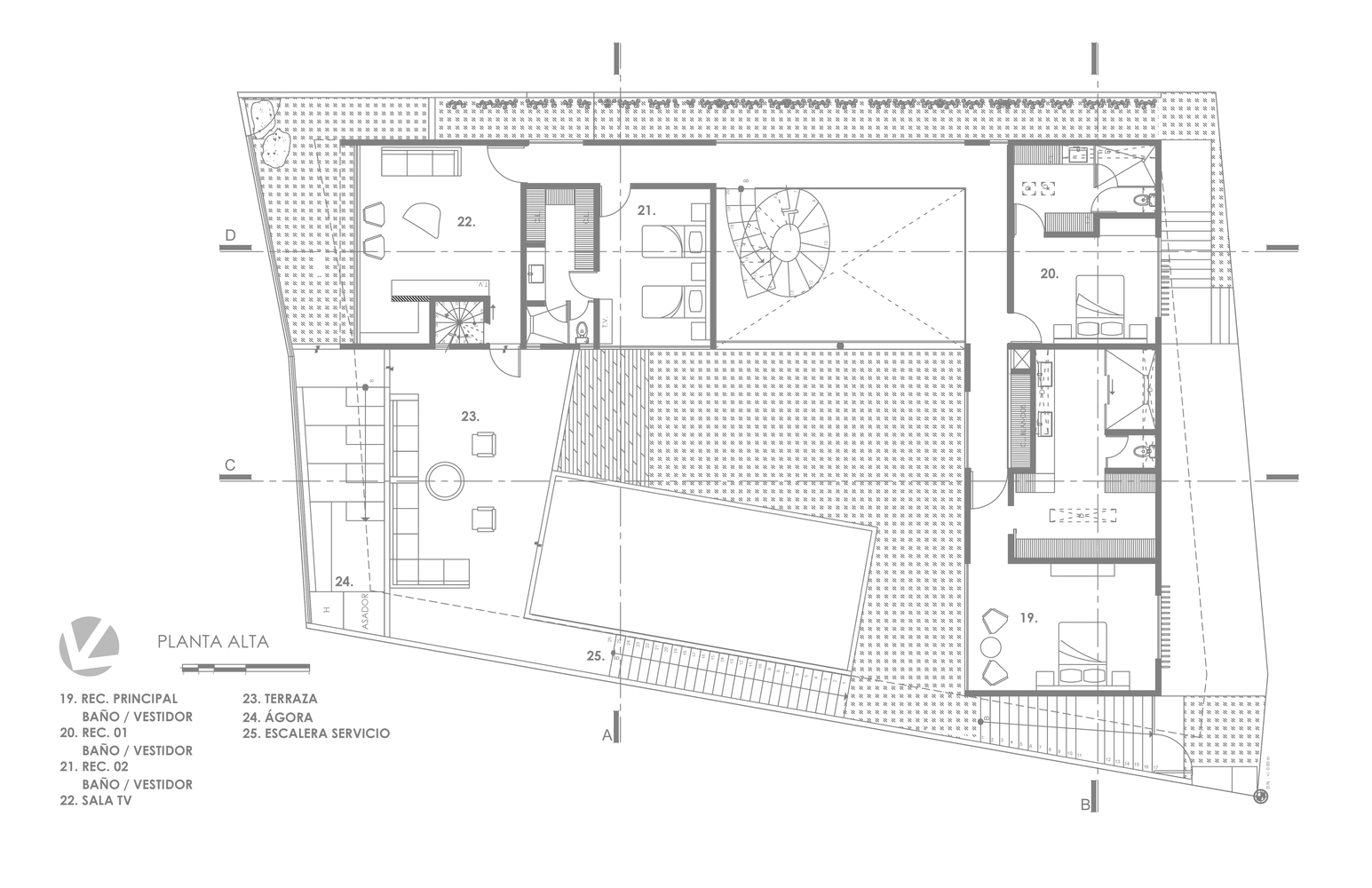
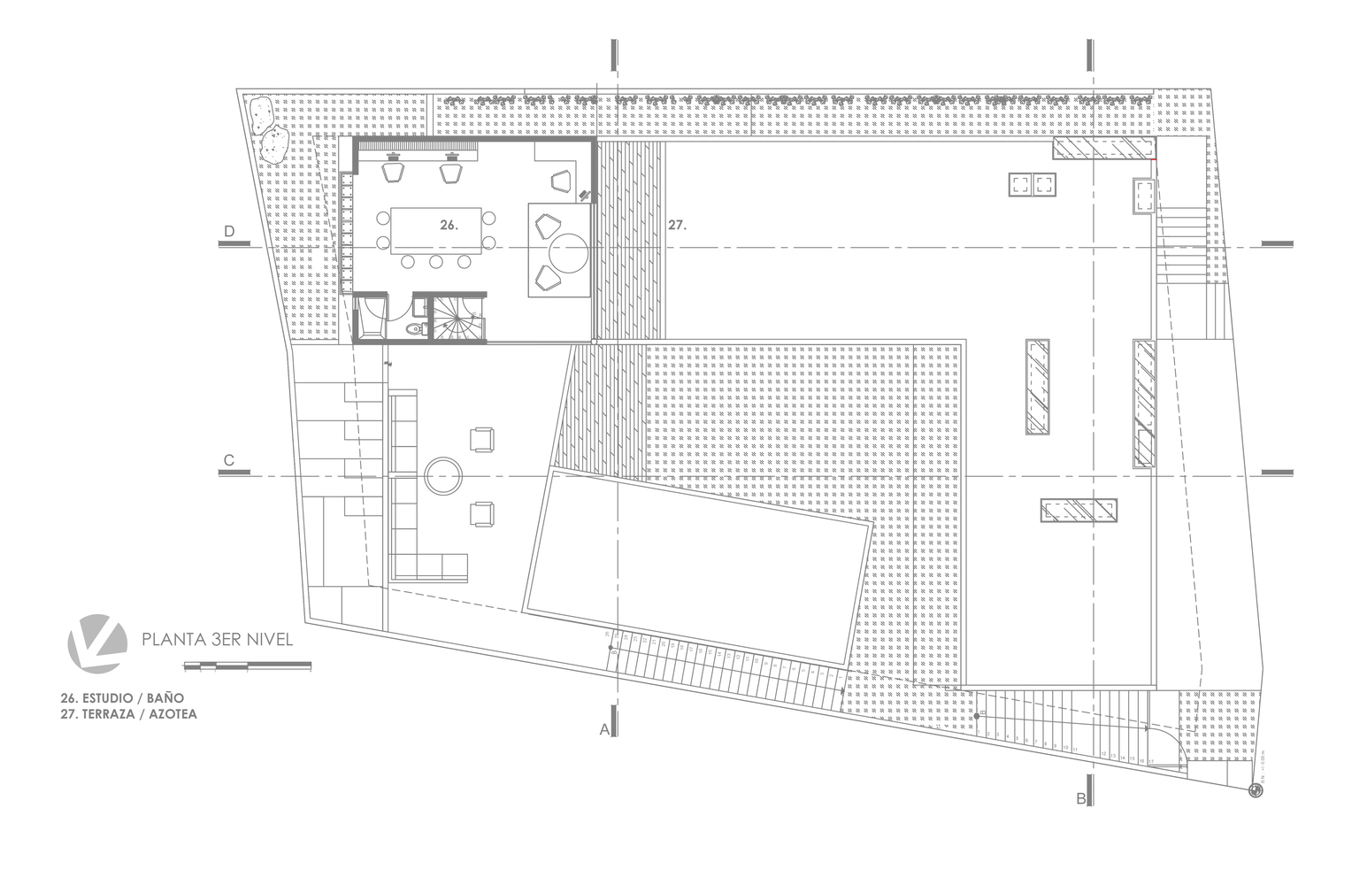
The upper level gathers private areas devoted to family´s coexistence; the terrace turns its back to the main street in an intimate gesture, guiding visuals towards the natural landscape though a crystal wall that serves protection from the exterior.
This terrace also disposes of a small agora that serves as a small external oven for outdoors coexistence. A meditation-study area finishes off the last level, providing amazing views at day and night time.
The volume´s plastic character is achieved by the use of Natural and stony materials; different marble pieces; apparent concrete with in high and low reliefs, and naturally toned woodworks that serve the project´s warmth plot.
▼项目更多图片
客服
消息
收藏
下载
最近








































