查看完整案例


收藏

下载
武汉城建·仁恒 / 西湖山居,是仁恒2022年度作品。该系列定址于武汉市极罕见的低密度区域,坐拥可媲美东湖的严西湖畔和独特的高山茶园。
山峦、茶园的形态本身就像一座雕塑。所有的设计都是关于透明度的,自然成为室内不可分割的一部分。除此之外,在对自然的基础演绎之上,MDO通过富含生命与自然主题的艺术品和装饰摆件来使这种氛围感觉更加浓烈。特邀艺术家二十一、
为此空间创作了一系列蕴含生命的延续性和自然的流动性的艺术装置和花艺小景。在彰显“生命”与“自然”的同时,也为人们提供启发,激励访客以更积极的行动去创造生态未来,探索生活的新形式,更好的处理人与自然的共生关系。
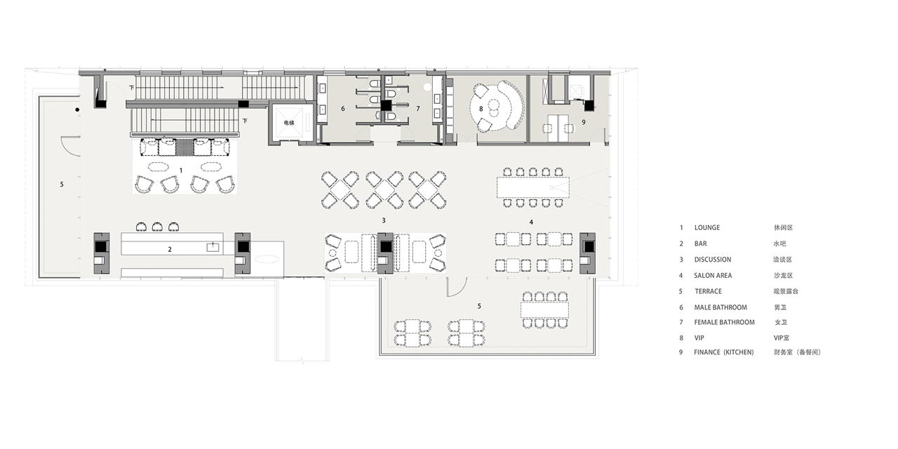
一层接待台由两个独立的几何体量组成,连接楼梯表达茶山层叠向上的形态,楼梯通向悬挑的上层。内部由洽谈区、休闲区和室外观景区组成,在售楼期间临时兼纳销售洽谈功能。未来将全天候提供多功能服务,包括但不限于研学论坛、临时办公、观景品茗、私宴和团建聚会等。
设计比拟当地茶山的形斜轮廓,创建了木质和高度抽象的锯齿形天花。当访客的观赏角度发生变化时,便可看到不同形状、不同大小的角形切口。
全天折叠天花表面上反射的日光和吸顶灯相互作用,为自然性空间提供了一种温和调制、漫射的顶部照明。一个连续性开放平面和贯穿的玻璃幕墙,让水平视野得以敞迎自然。设计师还选择了高反射率的地板,将景观反射到空间中。
不同的家具、艺术品具有不同的尺度、密集度、比例以及节奏,呼应墙面和空间的分割,在规模和使用方式方面定义了清晰的层次结构。镜柱是为了溶解结构而设计的,轻盈的唤起了室内与景观之间的连接。
以茶文化衍生的‘茶砖’形态墙面、天然石材以及木质和泥土色调的家具,以帮助“营造一种庇护感”,让场所流露着澹美、璞真的灵秀之美。
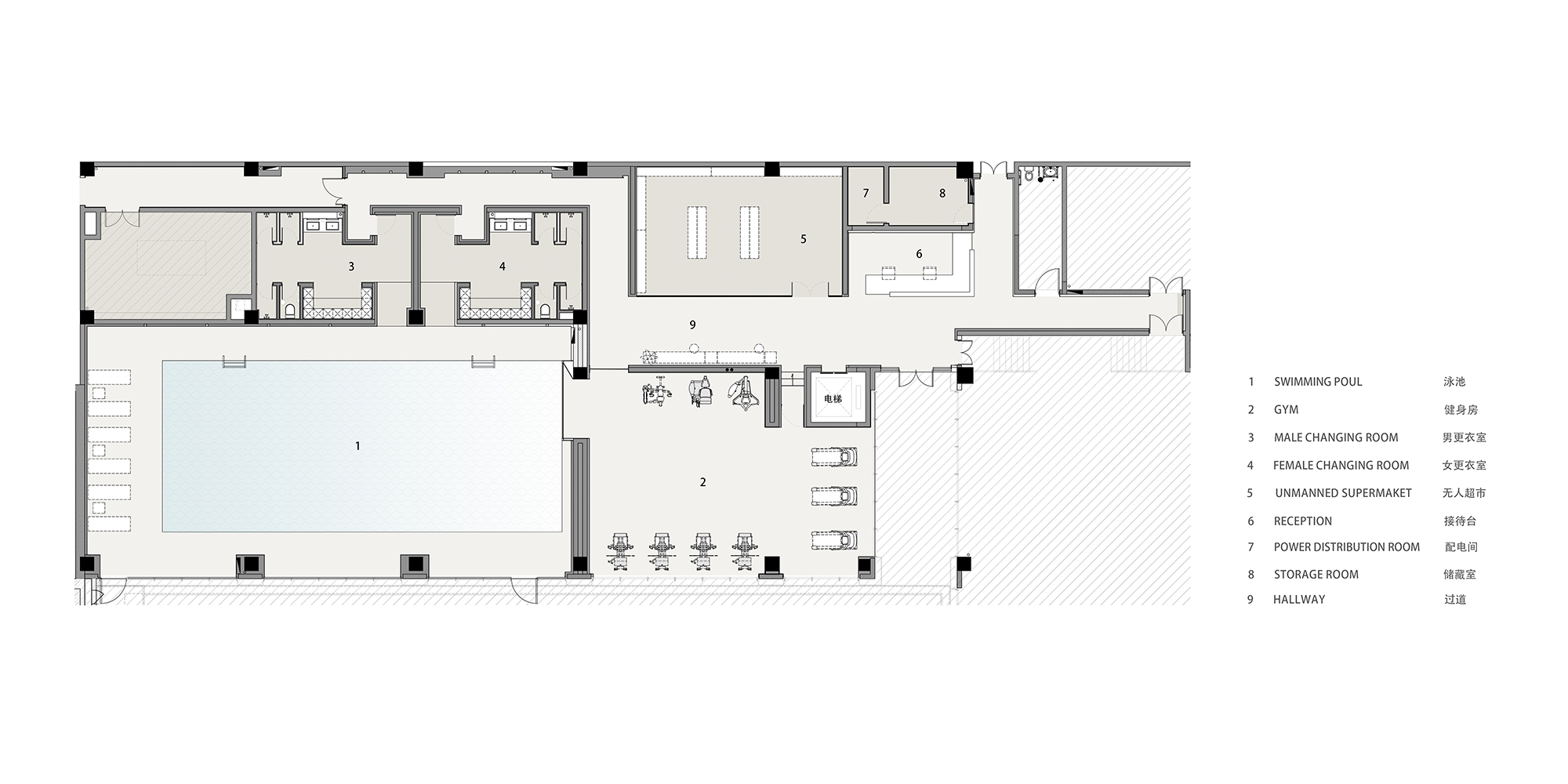
负一层由健身房和泳池组成。MDO采用了雕塑方法,将接待区设想为一系列几何并按截面递减顺序组装的砌块。健身房做抬高设计,将泳池以框景画面的形式呈现。
为了避免地下空间的阴霾氛围,设计将实墙厚壁做极少化运用,转而创造许多穿透性立面引进光、迎入景。立面以玻璃引导日照和花园入内,天花也辟出一系列锯齿结构置入面光源做垂直取光。
一个平静的灰色石头创造了一个强大的雕塑空间。这被拉丝金金属的精细细节所丰富,在粗糙和光滑、强壮和细腻之间创造了一种平衡。
△会所一层平面|MDO
△会所二层平面|MDO
△会所负一层平面|MDO
西湖山居相比城市内的其他住宅侧重于不同类型的放松,安静的空间用于阅读或独立思考,公共空间用于与朋友和家人享受漫长的下午和晚上,同时欣赏美丽的风景。体会不同于城市中的慢节奏生活。
叠墅的设计非常注重通透和开放感,确保无论身在何处,都能欣赏到自然风光。
该户型是一个舒适、以人为本和保护性的居所。创建了一个向内和向外的分层环境,并注入了有机元素。设计师希望空间是温暖的、俏皮的和兼具永恒感的。设计致力于探索各种表面和特征元素的触觉可能性。
起居室中羊毛沙发的形态像是室外茶山的山脊和铁质结构书架、大理石茶几、实木雕塑、陶瓷花瓶以及灯具等拼合为一种有机的空间形式,捕捉并传达了生活中的自然美,体现了温暖和极简主义的审美。
卧室层以住宅设施和景观阳台为中心,建立了一个由内而外的生活。所有的家具、纺织品的灵感都来源于自然界中温暖的混杂物:如亚麻、软木、大理石、胡桃木等元素。设计将自然景观框进室内,人们可以在一天中的任何时候找到温暖而平静的氛围。
设计强调人们寻求的灵活和不断发展的空间。星空书房旨作为生活空间的延伸。
负一层提供了一个约48平方米的爱好空间,可以根据居者的想象适应实际或未来的用途。
△三开间上叠一层平面|MDO
△三开间上叠二层平面|MDO
△三开间上叠三层平面|MDO
△三开间上叠负一层平面|MDO
整个空间的循环通过两条路径发生。一个“快速”私家电梯,是可以直接通往各层生活空间的垂直捷径;一条“缓慢”的楼梯从一层卧室层通向二层宽敞的客厅和餐厅层,也通向顶层的星空书房。
中心空间的形状和材料宁静且简约,一张采用深色磨损木材和黑色镀铬金属制成的矮桌和一系列抽象雕塑为空间增添了一种画廊般的感觉,马鞍凳又为空间带去轻快的幽默。
楼梯通向悬挑的上层,天窗最大限度地提高了自然光的穿透力,而大窗户则优化了房子四面八方的视野。顶层的星空书房是对大自然的隐喻,鼓励人们在大城市的喧嚣中休憩,享受微风。
△两开间上叠一层平面|MDO
△两开间上叠二层平面|MDO
△两开间上叠三层平面|MDO
△两开间上叠负一层平面|MDO
项目名称|武汉城建·仁恒 / 西湖山居
开发单位|武汉云恒钧置业有限公司
甲方管理|张昂、徐可乐
会所面积|1195m²
叠墅面积|两开间上叠296m²、三开间上叠306m²
室内设计|MDO 木君建筑设计
设计总监|Justin Bridgland、徐伩君
空间设计|童彬娜、赵朋、于之然、雷梦清、朱俊
软装设计|赵建稳、胡旸、张福静、王利
装置合作|二十一、章俊杰
景观设计|上海广亩景观设计有限公司
完成时间|2022 年 6 月
空间摄影|夏侯全生、周心然、日野摄影
Justin Bridgland|徐伩君
MDO木君建筑设计联合创始人
由徐伩君⼥⼠和桥义先⽣于2014年共同创⽴的MDO(MORE DESIGN OFFICE)⽊君建筑与室内设计事务所,是⼀家⽴⾜于中国上海,在英国伦敦设有分公司的多元化设计公司。MDO(上海)主要提供国际化的地产与规划、建筑设计、城市更新、商业设计、产品与展陈设计以及视觉设计等六⼤设计服务,MDO (UK) 专于设计和开发欧洲的⾼端可持续住宅项⽬。
徐伩君⼥⼠是英国ARB注册建筑师和室内设计师,桥义先⽣是英国皇家建筑协会RIBA认证建筑师也是⾳乐家。不同的⽂化背景与领域跨界,让MDO对设计中的“转换”概念⼗分重视,这使我们的作品能够⾃然的融⼊多元的⽂化底蕴。同时,MDO致⼒于探索空间与尺度、⽐例、细节、材料、光影及⾊彩的互动关系,为空间营造⼀段特别的旅程。
客服
消息
收藏
下载
最近









































































