查看完整案例


收藏

下载

翻译
Architects:Además arquitectura
Area :145 m²
Year :2022
Lead Architects :Leandro A. Gallo
Design Team : Máximo Bertoia, Ignacio Bubis, Emiliano Granzella
City : Canning
Country : Argentina
Inspired by the Californian domestic experience of the 1950s, this house is resolved through a modular system that serves as an envelope. The skin, an industrial and standardized coating, was marking the rhythm of the full and empty.
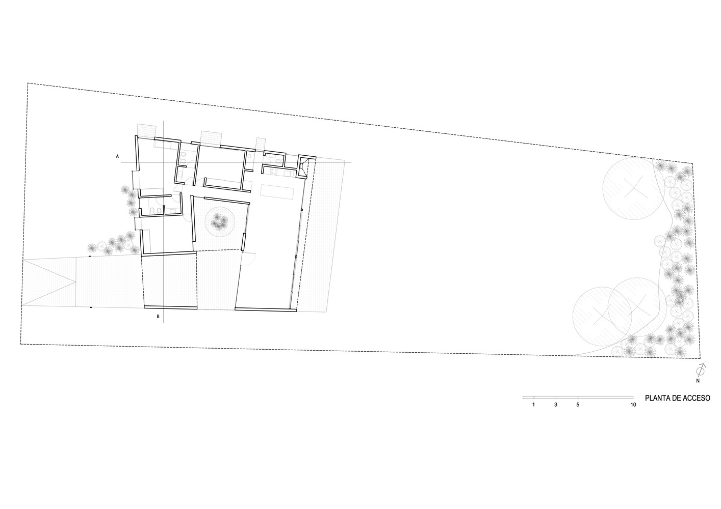
The house is resolved on a single floor. The proportions and dimensions of the lot favored the generation of an interior, intimate, access space that at the same time provides cross ventilation to the more public space.
Towards the quiet part of the building, facing North and in relation to a large space of its own, the most public space is resolved, living room, dining room, kitchen. Turning towards the front, surrounding the interior patio, the three bedrooms are resolved.
The large-format porcelain tile in a gray tone, together with the ironwork, give the house an ethereal and simple appearance. Austerity and material cleanliness are the predominant quality of this house that is offered as a mainly functional housing system.
▼项目更多图片
客服
消息
收藏
下载
最近





























