查看完整案例


收藏

下载

翻译
Architects:Hábitat-estudio de arquitectura
Area :1776 ft²
Year :2022
Photographs :Nicolás Provoste
Manufacturers : AutoDesk, Act 3D B.V., Briggs, Edesa, Hove, MaxiclearAutoDesk
Lead Architect :Víctor Gabriel Burneo Cueva
Structural Engeering : José Veiga
Collaborators : Briggette Herrera
City : San Pedro
Country : Ecuador
@media (max-width: 767px) { :root { --mobile-product-width: calc((100vw - 92px) / 2); } .loading-products-container { grid-template-columns: repeat(auto-fill, var(--mobile-product-width)) !important; } .product-placeholder__image { height: var(--mobile-product-width) !important; width: var(--mobile-product-width) !important; } }
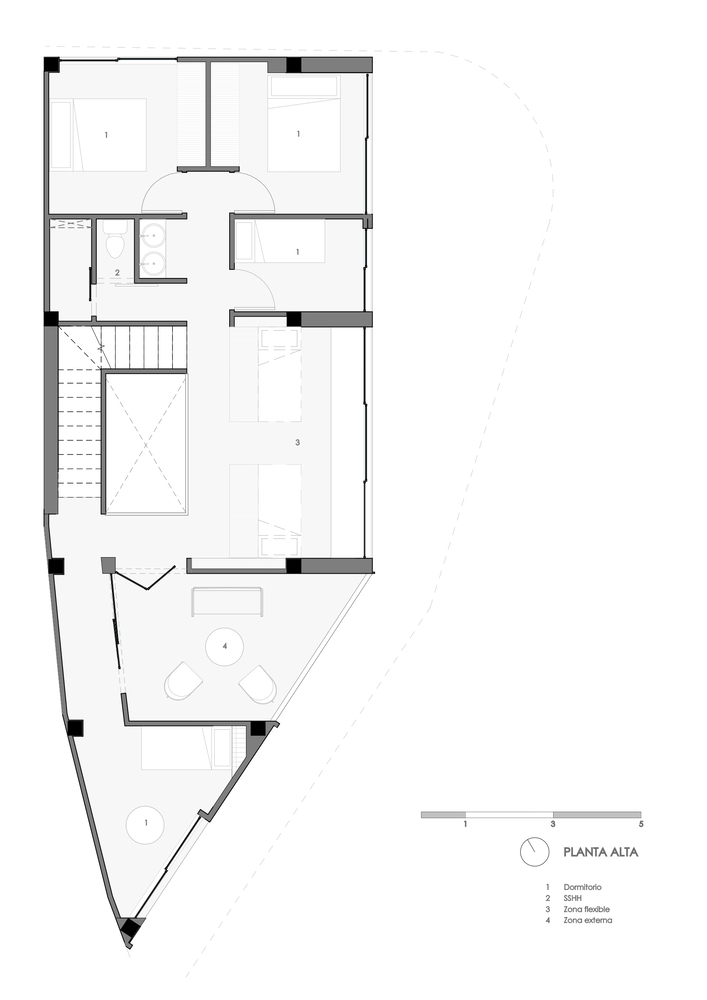
House in 100m2 is established in a landscape contrasted by a parish, whose houses are born from the informal until its consolidation, and a natural context surrounded by mountains and rivers. The surrounding buildings have three essential characteristics: traditional architecture (recognized as heritage), buildings with a formality imposed by tradition, and another part that combines order with the informal growth of housing.
Within this context of informal growth at the city level, a remaining 100m2 corner lot is produced (contrary to what was planned); which passes in abandonment since the consolidation of the parish; due to its morphological characteristics it produces rejection for housing construction. And it is that its irregular shape, along with its steep slope and its surrounding heritage context suggests channeling all the variables to consolidate a design strategy that contextualizes a contemporary home on the site.
Therefore, it is these same conditioning factors that led design toward the deconstruction of form. That is, the irregularity of the terrain is the condition to which the figure is subject, otherwise entering a regularity would decontextualize the architectural object. In this way, a single volume (unit) is raised and the necessary parts are abstracted, relating the functional, structural, figure, climatic, and experience areas, among others.
On the other hand, the house is handled at the level of scenarios related to the dynamics of light. The sector stands out for its warm climate where its temperatures compared to the context of the Ecuadorian highlands are high, due to this a brick envelope is projected to regulate the thermal capacity of the house and instead of exposing the interior, it is protected and takes advantage of the shade resource to help thermal comfort. In relation to light and shadow, the house manages scenarios related to its vertical circulation with the meeting of a higher level. That is to say, a ramp is projected in a garden that abounds in gloom (heat-absorbing space for the ground floor), upon entering the house an entire illuminated floor is opened to later be connected to a box of dark stands and again reach a spacious and bright space. Each type of brickwork allows for a combined experience with the ability of light to enter through its openings and the privacy it projects into the interior.
As for the projected spaces, they are carried out with a vision of habits, not rooms. That is, it also offers a certain spatial flexibility that shows the change in people's lifestyles. The separate house is a weekend house, therefore, it is intended to project coexistence on the ground floor with a patio that contains a hydromassage towards the interior, the existence of interaction spaces or meeting rooms allows it to be used dynamically; along with both rigid bedrooms and rest spaces that can be flexible to change of use.
Materiality is a proposal for the systematization of the local industry and workforce. The white painted brick belongs to the neighboring parish of Malacatos, and the exposed brick to the city of Cuenca. Clay is to expose part of the response to the heritage context, and how contemporary architecture enters that context without imitation, but with new responses to the change in people's lifestyle and how it can be integrated with a natural, heritage context. And social.
▼项目更多图片
客服
消息
收藏
下载
最近








































