查看完整案例


收藏

下载
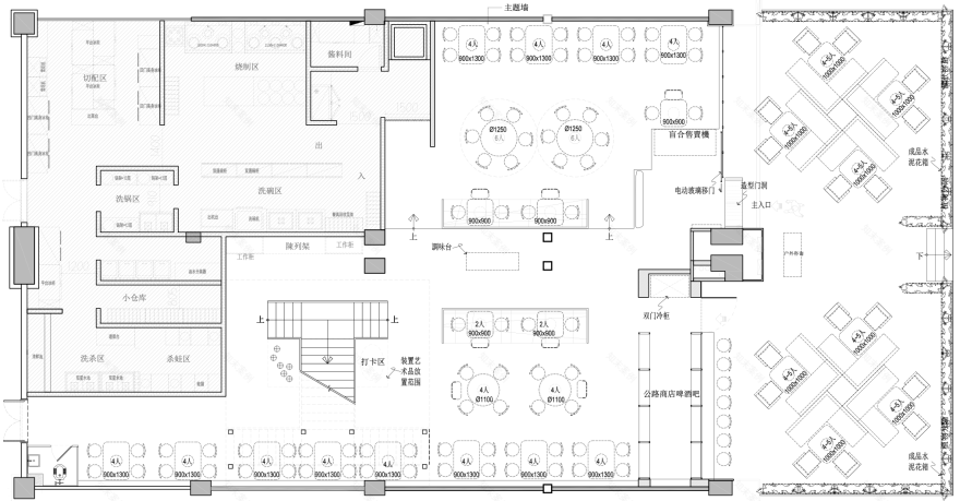
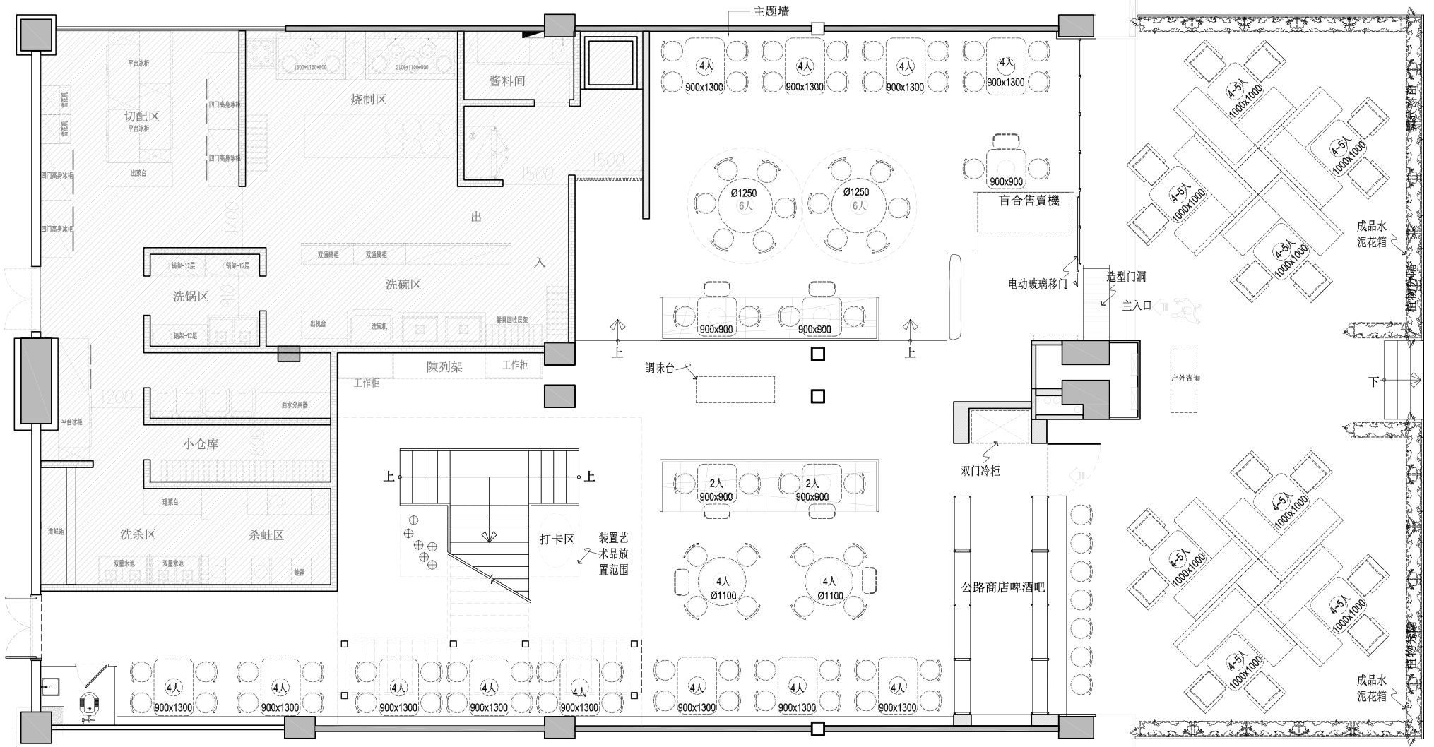
传统情景下的火锅,被赋予太多的意义与价值,而MR BUG笨蛙在变与不变之间,不变是热情似火,变的是不断满足食客对美味和味蕾的要求,让笨蛙更获赞美。
在深度体验当下年轻世代,
聚集社交商业场所之后,
设计选择从另外一个切入口出发,
通过改变传统火锅餐厅的空间堆砌,
选择用更加贴切当下年轻世代,
对个性的表达和不断突破自我的束缚,
去对MR BUG笨蛙进行设计。
MR BUG笨蛙火锅深圳店,
便是独树旗帜的以中国文化X前卫潮流,
以潮玩创造年轻世代精神与社交聚集地。
设定年轻世代社交沉浸的多维体验环境
以动态与静态形成对比,
入门的仪式网红单品和星际熊IP置入,
当下年轻世代客群的流行基因。
置身于旋转梯还是从二楼鸟瞰,
星际熊IP和MR BUG个性艺术潮玩混搭,
场景化的设定 艺术与空间,
强化了MR BUG笨蛙形象,
也让年轻世代探索空间之时,
客服
消息
收藏
下载
最近



























