查看完整案例

收藏

下载
纲岛之家由一栋双层家庭住宅以及其附属的单体建筑改造而成,原建筑最初建于20世纪70年代,坐落于横滨北部的港北区(Kohoku)。设计的核心理念旨在通过减少建筑中现有的元素将原有空间打开,从而使生活区域变得更加灵活。改造前的住宅底层设有一系列狭小的房间与走廊,造成一种类似于迷宫的不适感。
Tsunashima House is the renovation of a two-storey family house and its detached stand-alone building originally built during the 1970s in Kohoku, north side of Yokohama. The project wanted to subtract elements to the existing premises for opening the space, thus making the living areas more flexible. Prior to the renovation the first floor was indeed characterised by a hectic sequence of rooms and hallways that gave the dwelling a maze-like effect.
▼项目概览,overall of the project
面对这种情况,建筑师将部分墙壁拆除,整合平面形成了新的空间布局,在底层空间中创造出从北侧到南侧的视觉连接。原有的斜柱则被保留了下来,它们暗示了原先墙壁的位置,同时也起到了主导空间的作用,这些柱子成为了不同空间之间的视觉分隔线,使空间氛围从厨房到餐厅再到起居室形成自然的过渡。
Therefore, the new layout generated a visual connection from the north side to the south by removing the walls in the centre of the plan. Their presence still remains thanks to the leftover diagonal pillars that now have a predominant role: they act as dividers between the various spaces, providing a pleasant transition from kitchen to dining and living.
▼由客厅看玄关,viewing the entrance from the living room
▼保留下来的斜柱成为了不同空间之间的视觉分隔线,The remaining slanted columns serve as visual dividers between different spaces
▼开放空间充满自然光线,the open spaces are filled with natural light
这种改造策略,在不改动入口旁任何一间日式房间、保留所有原有元素的情况下,为整个楼层引入了充足的自然光线,营造出舒适宜居的氛围。正因如此,平静的传统氛围与明亮的现代化空间之间得以形成自然的过渡与衔接。客厅中裸露的天花板强调了纵向空间,而房间中的榻榻米则强调出平面空间,两者之间的对比进一步彰显出改造前后的新旧关系。
Because of that, the whole floor plan managed to increase its amount of natural light. The Japanese-style room next to the entrance hasn’t received any change, with all the original elements still in place. This creates a nice distinction from the calm tone of the traditional ambience to the bright modernised space remaining. This contrast has been enhanced also vertically by the exposed ceiling of the living opposed to the flat one of the tatami room.
▼底层的日式榻榻米房间,Japanese tatami room on the ground floor
▼细部,details
厨房墙壁采用了10x10cm的白色瓷砖,这种瓷砖从二十世纪开始在日本流行起来:这种材料不仅经济实惠、坚固耐用,同时光滑的瓷砖表面还能够反射从窗口和天窗照射进来的自然光,为室内营造出明亮舒适的氛围。值得一提的是,天花板上的原有天窗经过简化,如今则更加契合现有的房屋结构,并与周围的墙壁融合在一起。
The kitchen wall is covered with the ordinary 10x10cm white tile which became popular in Japan starting from the XX century: while being an affordable and reliable material, it provides a cosy atmosphere by reflecting the light incoming from both horizontal and vertical openings. The ceiling window, in particular, has been simplified in its shape and fits now more with the structure and the surrounding walls.
▼餐厅厨房,dining-kitchen
▼餐厅,dining area
▼厨房细部,details of the kitchen
通往上部楼层的木制楼梯位于住宅的西端。建筑师没有改变二层空间的布局,而是将工作重点放在修复或在必要时替换受损的结构上。尽管这栋住宅是在大约35年前设计的,但二楼的布局今日来看也是十分高效且舒适的。上部楼层被大致平均划分为三个房间,卫生间位于北侧,楼梯位于西侧。宽大的窗口让每个空间都拥有独特的景观视野和充足的自然光线。除铺地外,上部楼层的所有元素几乎都得到了修复。
On the west end of the house, the wooden stairs lead to the above level. Here the layout hasn’t changed from before, since the work focused on repairing damaged elements or replacing when needed. Despite being designed roughly 35 years ago, the disposition of the second floor still works nowadays. Three rooms divide the space more or less equally, with a toilet on the north side and the stairways on the west. This gives each space a unique view and plenty of natural light thanks to the large size windows. Almost every element here has been repaired, with the pavements being the only exception.
▼通往上部楼层的木制楼梯位于住宅的西端,the wooden stairs lead to the above level on the west end of the house
▼楼梯细部,details of the staircase
▼上层楼廊,hallway of the upper floor
▼西式卧室,western style room
▼卧室细部,details of the bedroom
▼浴室,bathroom
所有房间内的铺地则全部被替换为同样色调的新地板。此外,走廊地面去掉了衬垫层,取而代之的是底层为羊毛织物的编织地板。在日式房间中,全新的地毯与裸露在空间中的传统木结构并置在一起,萦绕在古老的怀旧气息中,新旧的对比营造出一种令人放松的氛围。
In fact, all rooms replaced their outdated flooring for a new one with the same tone. In addition, the hallway removed the cushion layer in favour of the underneath covered woven floor. The juxtaposition of the latest carpet floor with the traditional wooden texture of the exposed structure in the Japanese-style room produces a relaxing contrast between old and dated features.
▼二层日式卧室,Japanese style room
▼摆放家具的效果,bedroom
▼卧室细部,detail of the bedroom
附属单体建筑的改造也秉承了相同的设计理念,改造后的建筑在空间与视觉上都发生了重大变化。为了在该建筑中形成连续的空间氛围,建筑师去掉了不必要的内墙,将剩下的柱子作为起居室和卧室之间的分隔。服务空间则被布置在平面的边缘,以将主要生活区域打开,为住宅内引入充足的自然光线,进而形成通透明亮的室内氛围。
The renovation for the detached stand-alone brought some major changes both spatially and visually. Again, the internal walls were removed in favour of a continuous space, with the remaining pillar working as a threshold between the living room and the bedroom. Thanks to the disposition of the various services on the edges of the floor plan and to the bright overall aesthetic, the building benefits from plenty of natural light.
▼附属单体建筑改造后的客厅,living room of the stand-alone
▼细部,details
▼单体建筑中的西式卧室,western style room of the stand-alone
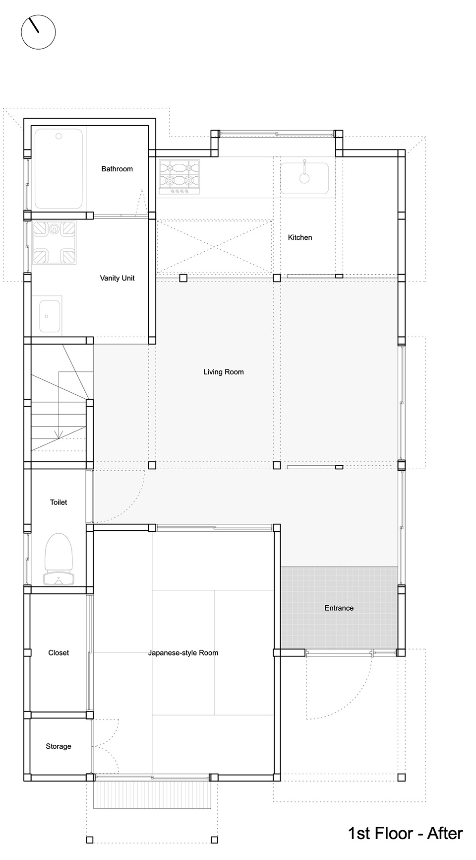
▼一层平面图,1st floor plan
▼二层平面图,2nd floor plan
▼单体建筑平面图,floor plan of the dependence
客服
消息
收藏
下载
最近































