查看完整案例


收藏

下载

翻译
Architects:Studio Weave
Area :250 m²
Year :2021
Photographs :Jim Stephenson
Structural Engineering :Timberwright
M&E Consultant :NPS London
Quantity Surveyor :NPS London
Client : London Borough of Waltham Forest
Furniture And Carpentry : Sebastian Cox
City : London
Country : United Kingdom
@media (max-width: 767px) { :root { --mobile-product-width: calc((100vw - 92px) / 2); } .loading-products-container { grid-template-columns: repeat(auto-fill, var(--mobile-product-width)) !important; } .product-placeholder__image { height: var(--mobile-product-width) !important; width: var(--mobile-product-width) !important; } }
London-based architecture practice Studio Weave has extended the Grade-II listed Lea Bridge Library in East London, adding a cafe and adaptable community space with an improved connection to the library’s gardens, resulting in a revived civic heart for the Borough of Waltham Forest.
To connect the local and future community as the neighborhood undergoes a period of cultural growth and regeneration, Studio Weave explored the changing role of a library in modern civic infrastructure conceiving a new wing that offers places to work, learn, socialize, and gather.
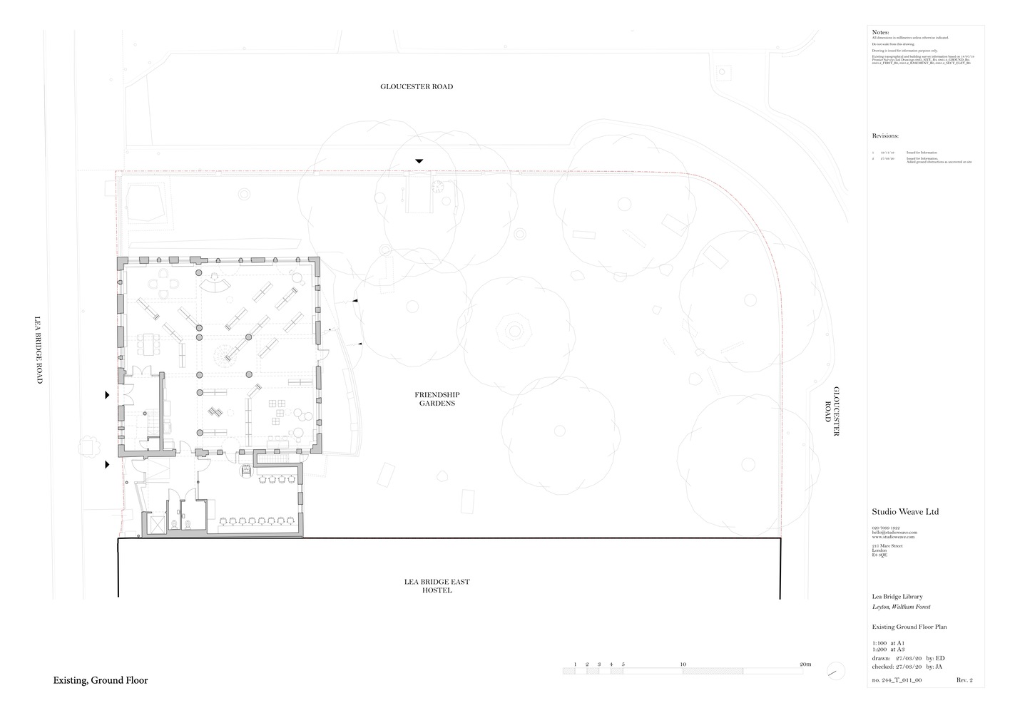
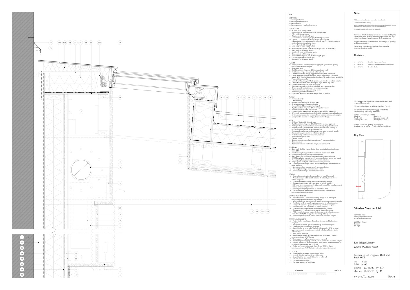
The new 250 square meter wing sits to the rear of the Edwardian red brick library and occupies the Western boundary of the site, designed to lightly touch the existing heritage building and its green space, Friendship Gardens. Studio Weave utilized the existing western garden wall as a structural spine, anchoring the structure and bulk of the building to one side, ensuring a seamless, open connection to the gardens. Cantilevered beams of high-strength laminated veneer lumber (LVL) support a length of overhead glazing and floating ceiling of timber battens. Floor-to-ceiling glazing along the entire east elevation invites the outdoors in, creating a visual and physical connection to Friendship Gardens.
Studio Weave designed the new Lea Bridge Library extension to sit harmoniously in between existing mature trees in Friendship Gardens, resulting in a rectangular floor plan punctuated by a striking semi-circular glass cut out. The pavilion curves in and steps up at a central pinch point to protect the root system of a close-neighboring mature Common Lime tree. The architects used this momentary squeeze in the plan created by the sweeping concave glass as an opportunity to divide the pavilion. A pivoting timber door hangs flush with wall joinery and swings across to create a flexible private events space, offering a valuable community asset while also future-proofing a further revenue stream for the library. A long colonnade stretches the length of the new extension, featuring a gently graded natural stone walkway to ensure level access to the rear event space. A facade of gently zig-zagging red precast concrete panels and columns nods to the tone of the brick used in the existing library and conceals drainage which captures and redirects water down to the tree roots below the building.
Accessibility is central to the success and popular use of the Lea Bridge Library Pavilion. Studio Weave designed two new access points to draw visitors in through the gardens at the side and rear of the site, bypassing the library’s quiet zone. The main entrance and foyer on Lea Bridge Road have been refurbished to include new wash facilities, buggy parking, and an upstairs staff room. From the foyer, the new cafe welcomes visitors before opening into the main space. A continuous wall of fluted timber joinery connects bookshelves with in-built banquette seating, creating interspersed open reading ‘rooms’. The open plan layout can be adapted for a range of cultural, recreational, and community activities and be used at different times of day by different local groups and library users.
The architects’ rigorous approach to sustainability is felt throughout the building. Studio Weave has delicately balanced a light, open-plan community space that benefits from a considered passive cooling strategy supported by mechanical heat recovery ventilation (MVHR). The ceiling is carefully positioned to protect the exposed aggregate floor from direct sunlight, and the continuous glass wall opens at intervals to allow for natural cross-ventilation.
Reuse is a strong theme throughout the new pavilion. All internal joinery and furniture timber was salvaged from trees felled across the publicly owned streets and parks across London in an effort to reduce the carbon footprint of the pavilion and reuse existing waste materials. The species of trees salvaged include London plane, Poplar, Sycamore, Ash, Holm Oak, Turkey Oak, Sequoia, Horse Chestnut, and more, and add a rich variety of textures and tones to the custom-designed fitted and loose furniture. Studio Weave worked closely with local furniture maker Sebastian Cox, designing an in-built banquette with fluted timber shelving that stretches along the pavilion, reinforcing the link to the library while creating a natural visual language that is echoed by the trees outside in Friendship Gardens. Sebastian Cox also designed custom tables, chairs, and sofas for the new space, all crafted from 25 cubic meters of waste timber.
The project is a critical community element of the Borough of Waltham Forest’s cultural regeneration, supported by £411,000 from the Greater London Authority’s Good Growth Fund. Studio Weave is now working on the second phase of the Library’s development, comprehensively re-landscaping the garden and adding in-play facilities to be delivered by Summer 2023.
The extension has revived the library as a key cultural and community hub through which social cohesion is fostered, offering events, activities, and opportunities to empower local residents. Where the library offers access to a wealth of knowledge, Studio Weave’s architecture offers an open public asset and space for the community to share experiences.
▼项目更多图片
客服
消息
收藏
下载
最近













































