查看完整案例


收藏

下载
整体空间调性灵感皆源于自然,颠覆传统空间的演绎,我们以「丛林与梦境」的概念,打造都市精英人群的独特个性与审美乐趣。午后慵懒的阳光,伴随一杯香气弥漫的咖啡,就此展开生活画卷,是不经意的一瞥,如处丛林的惬意,静坐中沉思或回味。
01
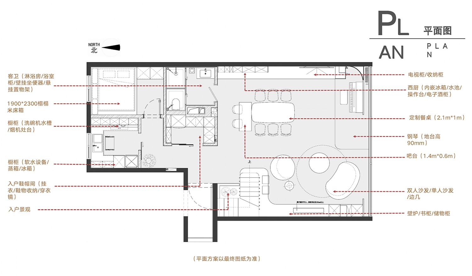
一层公共空间
以「自由」和「秩序感」为关键词,我们将空间重组,整个一层在不同功能之间保持开放性。会客、聚餐、弹琴、健身、阅读......可生长的空间被赋予弹性的使用情境。并根据居住者的日常生活习惯,将有高收纳需求的玄关、厨房、卫浴、衣帽间、储物间、客卧等并入其中,机能配置充分整合。
整面落地窗,最大限度地延伸光进入空间的维度,而自然灵动的光影展现出无拘无束的艺术张力,倚坐其中,能够感受到工作之余的慰藉,氛围渐入佳境。
客餐厅内的家居氛围灵动而具有现代气息,自然矿物的色彩从墙面倾泻而下,模仿了大地的肌理,唤起的感觉从抽象转化到自然。多种材质与色彩共处一室并非易事,每一件家具与配饰都蕴含着趣味与玩味,让空间既和谐又打破常规充满跳跃感。
无主灯照明设计,强调平衡与利落,构筑惬意的环境,隐蔽光源的多处设计带来了舒缓细腻的意境,抚慰居者身心。
02
二层私密空间
拾级而上,纵深与镂空,留下立体主义的想象力,予以场域收放有度的呼吸感。
主卧室提升了温润调木质的使用比例,床头背景的弧线和玫瑰色调,都为私密空间增加了温度感。整面墙的衣柜满足大量储物需求,整齐划一的形态,展现出空间简约的调性和清晰的序列感。
书房承载了办公、学习、阅读、影音等功能,随着使用者角色的变换,空间机能的使命也随之改变。简约生活的格调,也在细微之处渐次明朗。
我们通过空间重组得到一个上下二层的儿童房,为居住者未来十年的生活方式做足了打算。
03
其他空间
卫生间,串联起了日常需求与高级情调。方与圆相伴,黑与白呼应,冷与暖互动,凸显艺术张力,构建温馨氛围。
以光为引,沿阶梯流转,在有限的空间内谱写一段优雅的过渡。30平米的户外露台是另一个天地,抬步前行,是对自然探索的象征,亦是对情感联结的渴望,一切沉浸在简约优雅与岁月静好的氛围中。
改造后一层平面图
改造后二层及三层平面图
项目名称|上元君庭
项目地址|北京·朝阳
项目类型|私宅
项目面积|室内168㎡,室外26㎡
设计公司|筑美壹号设计事务所
设计总监|奚媛媛
深化设计|邢亭飞
设计时间|2020.12
拍摄时间|2022.10
客服
消息
收藏
下载
最近


























