查看完整案例


收藏

下载
Izmir游泳馆位于土耳其伊兹密尔市内的Asik Veysel休闲区,这是市中心一片广阔的绿地,也是当地市民理想的社交娱乐场所。在这里,人们可自由享用各种公共设施,如:露天运动区、露天剧场、溜冰馆、儿童游乐场、咖啡馆,以及人工湖。游泳馆项目由伊兹密尔市政府委托Notmimarlik事务所设计建造,旨在为当地提供适当的设施以满足各种水上运动和游泳课程的需求。
Pool Izmir is located in Asik Veysel Recreation Area which is a wide green area to socialize in the city center. The public is free to enjoy variable facilities such as open-air sport areas, open-air theatre, ice skate hall, playgorunds for children, cafes and an artificial lake. The pool project was assigned by Izmir Metropolitan Municipality to serve a proper facility for various water sports and swimming courses.
▼项目概览,overall of the project
为场地规划而设置的原始石墙为本项目的设计提供了独特的灵感来源。这些石墙在概念上被转化为新建筑的外壳,并得到了重新的诠释。沉重的石墙在设计中被转译为轻盈的半透明悬挂式外立面,巧妙地将改造石墙的想法与废旧材料回收再利用的创新策略相结合。半透明的建筑外壳由玻璃生产中的废料 —— 玻璃石构成。这种独特的材质能够在结构内部产生出不断变化的光影效果,进而为建筑创造出独特的感知体验。
The primitive stone walls made for prior land arrangement on the site gave us the initial inspiration for the unique design approach. These stone walls became the shell of the structure with a new interpretation. The perception of the heavy-weighted stone walls were transformed into a light-weighted semi-transparent hanging shell. The idea of revisualization of the stone walls was supported with the innovative idea of reusing a waste material. Glass rock, which is a waste material in glass production, was used to form a semi-transparent shell that creates a unique perception experience with the ever-changing light effects inside the structure.
▼夜景鸟瞰,aerial view of the project
▼街道视角,street view
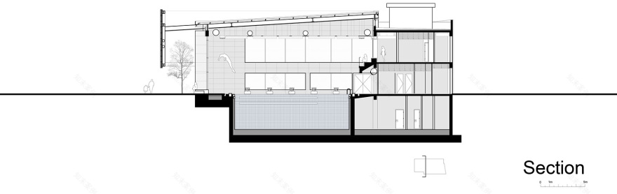
得益于得天独厚的地理位置,经伊兹密尔市的交通主干道就能够很便捷地到达Izmir游泳馆,它不仅服务于周围环境,更服务于整座城市,同时也满足了附近日益增长的人口的重要需求。市民可以通过自行车、私家车或公共交通工具到达游泳馆。由于其重要的地理位置,每日经过建筑前的人流量相当大,因此,设计旨在以建筑吸引人们的关注与好奇心,激起人们对水上运动的兴趣,最终达到鼓励人们保持日常运动习惯的目的。建筑内设有一座4米深的半奥运会标准泳池,可容纳200名观众,此外,还提供了各种水上运动课程,如:水下橄榄球和游泳等。建筑还设有体育馆分区,以满足运动员的需要。
▼分析图,diagram
Due to its location, which is easily accessible by the main arteries of the Izmir transport network, it is a facility that serves not only the immediate surroundings but also the entire city. It also meets a significant need of the growing population in its immediate vicinity. It is possible to reach the building by bicycle, private vehicle or public transport. Because of its location, the building, which is passed by quite a lot of people, has the purpose of attracting people’s interest, curiosity, and arousing interest in water sports, as well as keeping them alive. The building has a semi-olympic 4 meter deep pool and the capacity of 200 spectators. The pool serves various water sports such as underwater rugby as well as swimming courses. There is also a gym to meet the needs of the athletes.
▼外立面,facade
▼半透明的外立面由回收的玻璃石废料构成,the translucent facades are made of recycled glass stone
▼夜间外立面灯光效果, lighting effect of the facade at night
▼灯光与自然光线产生的视觉游戏,artificial light and natural light generated visual games
设计团队认为保证建筑的视觉通透性是非常有意义的,这种设计能够让人们能够透过建筑的外壳看到周围的环境,同时也能够将建筑内部的场景呈现在路人眼前。在某种意义上,游泳馆半透明的外壳既起到了围合建筑空间又起到了保护建筑物内使用者的作用。该建筑外壳采用了对比鲜明的编织手法建造,尽管它看起来十分完整,但实际上则是由成千上万个小碎片组成的。从外观上看,玻璃石材外壳似乎有些沉重,但悬挂式的设计却使外壳结构漂浮于地面之上,进而抵消了沉重感。实体建筑外壳,由于采用了玻璃石材质而变得轻盈透明。设计的首要目标便是利用外壳渗透进建筑内部以及反射出来的光线,营造出灵活多变令人难忘的光影氛围。建筑外壳上缝隙的位置、大小和随机性,以及从外壳渗透到室内的光线产生的光影游戏,共同营造出建筑的独特体验。
We found it valuable to make a structure that we experienced without the covering that surround us visible through the shell that surrounds it, to bring it to the forefront. In a sense, the shell has reached a point that surrounds both structure and people. The shell was knitted with contrasts. Despite its holistic appearance, it was made of thousands of small parts. Despite its heavy appearance, it remains in the air, hanging from above without stepping on the ground. Despite its opaque appearance, it was actually made of clear glass. It was our first goal to reach the unrepeatable and unimaginable atmosphere created by the light and reflections that seeped out of the shell. The position, size and randomness of the gaps on the building shell and the light-shadow games created by the filtered light coming from the shell into the interior, makes the experience of the structure unique.
▼外壳结构悬浮于地面之上,the shell structure is suspended above the ground
▼外壳结构保护下的空间成为室内外环境的过渡,the space protected by the shell structure becomes a transition between the indoor and outdoor environment
▼日景,day view
废料的回收与再利用是本项目设计中最具价值的部分之一,且该策略在美学和实用功能方面都具有不俗的表现。填满玻璃石的半透明立面起到遮挡外界视线保证室内隐私的作用,同时允许自然光线进入室内场馆之中。另一方面,外壳本身就达到了吸引路人的目的。在白天,半透明的建筑外壳过滤了光线,而在夜晚,人造照明反射在玻璃石上,均能够营造出独特的视觉体验。
A waste material became a valuable part of the design process. The result is satisfying in terms of both aesthetic and performance-related aspects. The semi-transparent facade, which is filled with glass-rock, creates a limited visuality while letting the sunlight in. On the other hand, the shell itself seems to accomplish the goal of attracting the passer-by. It provides a unique experience during day- time with the filtered sunlight as well as night-time with the artificial lightings reflecting on glass-rock.
▼材料细部,details of the shell
▼由内侧看建筑外壳,viewing the shell from the inside
本项目独特的建筑外壳设计,证明了废弃材料中曾被人被忽视的巨大潜力,进而为建筑师提供了更加广泛的选择。除此之外,屋顶上的太阳能电池板也在一定程度上满足了建筑的能源需求。可以说,Izmir游泳馆既满足了当地市民对于水上运动设施的需求,同时也向大众呈现出一种极具创新性的设计方法。
In a way, this unique shell design shows that there is an overlooked potential in waste materials and there are far more options to choose from than we think there are. Apart from that, the solar panels on the roof supply a part of the energy need of the building itself. Pool Izmir became a facility used by public for water sports while presenting an innovative design approach.
▼接待大厅,reception hall
▼半奥运会标准泳池,semi-olympic 4 meter deep pool
▼总平面图,site plan
▼南立面图,south elevation
▼剖面图,sections
客服
消息
收藏
下载
最近






















