查看完整案例

收藏

下载

翻译
Architects:Studio Avana
Area :560 m²
Year :2021
Photographs :KIE
Manufacturers : AutoDesk, Lumion, SketchUp, Adobe Creative Cloud, Antonio Lupi, Ateson, Niro Granite Indonesia, Owen, Panasonic, TOSTEM LIXIL, Toto, Venus TilesAutoDesk
Lead Architects :Martin Pradipta, Ramos Saedi, Rayner Tulus
City : Bandung
Country : Indonesia
@media (max-width: 767px) { :root { --mobile-product-width: calc((100vw - 92px) / 2); } .loading-products-container { grid-template-columns: repeat(auto-fill, var(--mobile-product-width)) !important; } .product-placeholder__image { height: var(--mobile-product-width) !important; width: var(--mobile-product-width) !important; } }
How can a house tell a story? Verdure House can do well. Because every configuration in this house is intended to allow residents to tell many stories and share their experiences at each meeting. This house stands on the side of a shady street in Bandung. Throughout the year, the surrounding environment is a combination of a calm ambiance, lush trees, and cool air. This house has a fairly large plot of land and maximizes the function of each area for the comfort of all residents.
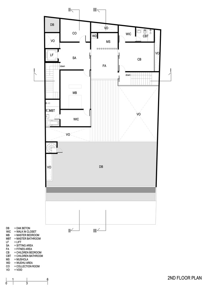
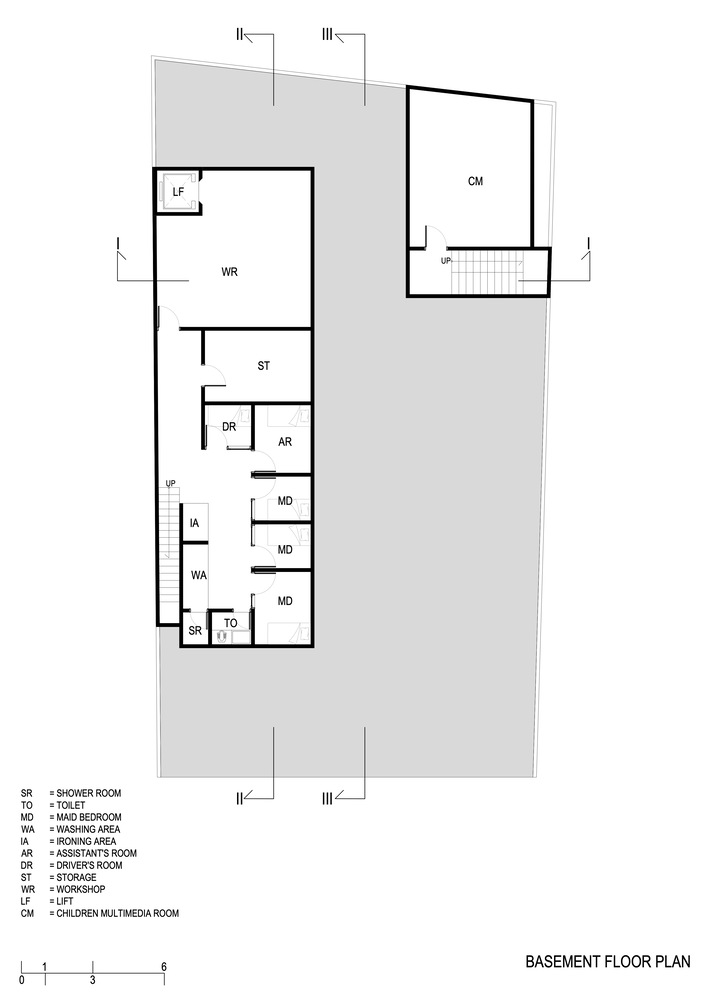
Studio Avana took a unique approach, creating two mass buildings. Because the residents are of varied generations, the concept of building mass separation strives to separate the occupants' various needs. Although separated, Verdure House is designed to allow strong connectedness through a number of openings that become a meeting spot. Verdure House has three levels, two above ground as well as a basement. The basement is used for an entertainment area, and the two floors above it are used to support various private and public activities of its residents.
Several spacious and comfortable rooms are designed to accommodate a variety of needs, including entertaining a vast group of relatives that visit frequently the house. An entertainment area, a woodworking studio, a garage, four bedrooms, multiple bathrooms, a Japanese-style pantry, a BBQ area, and a gym are among the facilities. All of these rooms are linked by broad openings.
Verdure House appears harmonious through the installation of several elements such as natural stone, concrete, and wood, which adopts a multitude of styles such as industrial, traditional Japanese architecture, and modern tropical. These aspects collaborate to explain the transition between spaces, not just in terms of aesthetics. The natural color of the wood elements, which are quite dominant in every area of the room, both on the exterior and interior, surely attracts attention.
Wooden elements may be spotted on the house's exterior at the gate, main entrance, pergola, secondary skin, and wooden decking. The wood element on the secondary skin serves a double function as a direct sunlight barrier that can be opened and closed based on the necessity for air circulation. While in the interior, wooden elements are installed to coat the walls in order to convey a warm feeling, such as in the living room, family room, and several bedrooms.
The installation of skylights, several wide windows, secondary skins, and a unique area of the paludarium situated next to the swimming pool allows for airflow in this house. Cross ventilation is also enabled by the opening of each partition between spaces. This house is also more energy efficient due to the installation of solar panels on the roof. The implementation of this concept creates its own complexity in order to respond to varied needs. The garden area and the distribution of various plants give this house a green area that accounts for 40% of the total land area, hence the name Verdure House.
▼项目更多图片
客服
消息
收藏
下载
最近
























