查看完整案例

收藏

下载

翻译
El nombre de esta vivienda hace referencia al color de los hidráulicos originales que al descubrirlos no hubo duda que serían los portagonistas y el elemento decorativo principal en esta reforma.
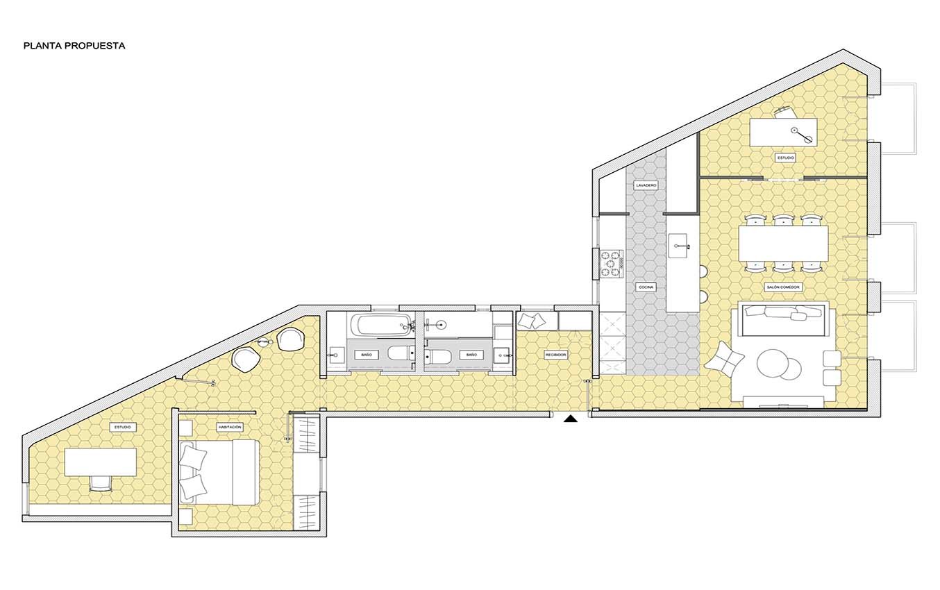
Originalmente el piso contaba con tres habitaciones, un amplio salón comedor, cocina y baño. La disposición de estos espacios, conectados por un largo pasillo y un recibidor central, ayudó a que la nueva distribución pueda separar la zona de noche de la de día, donde salón y cocina se integran generando mayor amplitud con respecto a su disposición original.
La vivienda cuenta ahora con una habitación principal, dos estudios (uno de ellos conectado al salón y el segundo ubicado en la zona de noche pudiendo usarse como habitación en un futuro), dos baños completos, cocina abierta, lavadero-despensa y el gran salón comedor.
Un piso que goza de ventilación e iluminación natural en todas sus estancias, permitiéndonos esta última carácteristica eleigir tonalidades oscuras al restaurar las carpinterías existentes a juego con el mobiliario de cocina. Destacan también los detalles en dorado de las lámparas y herrajes, y el negro en las vigas de la bóveda catalana.
Finalmente, destacar que para la cerámica hexagonal en el pavimento de cocina, se buscó un color neutro que no compita con el suelo original y que sus dimensiones encajen perfectamente con los hidráulicos para generar una transición que respete y mantega la forma de ambos suelos.
客服
消息
收藏
下载
最近


















