查看完整案例

收藏

下载

翻译
CASA INTROVERTIDA.
“Casa Introvertida” (introvert house) is a detached house that turns inwards, searching for a place of rest and recreation in the space that it somehow “gathers”, unconcerned by its surrounding reality. The building opens to a cloister patio, generating distant and framed views of the Sierra de Tejeda, “La Maroma”.
This complex house goes beyond market standards, with very demanding programmatic requirements and a high degree of technical installations and acoustic insulation.
MAIN FAÇADE.
The façade is both emphatic and foreign. This idea is executed with a carefully conceived break-up of large precast concrete panels with two textures. A “ripped” one, simbolizing the earth and generating rhythmic light and shadow vibrations, is present on the first floor and the basement. On the first floor we find a smooth texture belonging to the sky, reflecting the sunlight. The awareness of these two textures varies as we walk around the house. Therefore, the textured part takes great dimension and immerses into itself in the English courtyards, and the smooth texture reaches its greatest magnitude in its encounter with the main street, where the house achieves its greatest height.
This façade is enclosed to the street. It is blind and massive, turning into itself and opening up onto the resulting patio. The openings in this massive façade are framed with white lacquered aluminum metal boxes, highlighting the views from the house.
PATIO.
This casa introvertida is also a patio-house. Embraced by the building as the main element, its inner cloister patio is the main element around which the space is organized and opens to the southern light.
The introverted house vanishes inwards. The blunt volume of the main façade (to the west) raises two stories above the street level and then slopes (to the east) to turn into a one-story volume, a pergola, a wall and, finally, into a gate. The inner void (patio) is created through this space-embracing idea, completely enclosed and “protected”.
The patio is paved with Sierra Elvira marble slabs, creating a contrast with the white tones of the rest of the house.
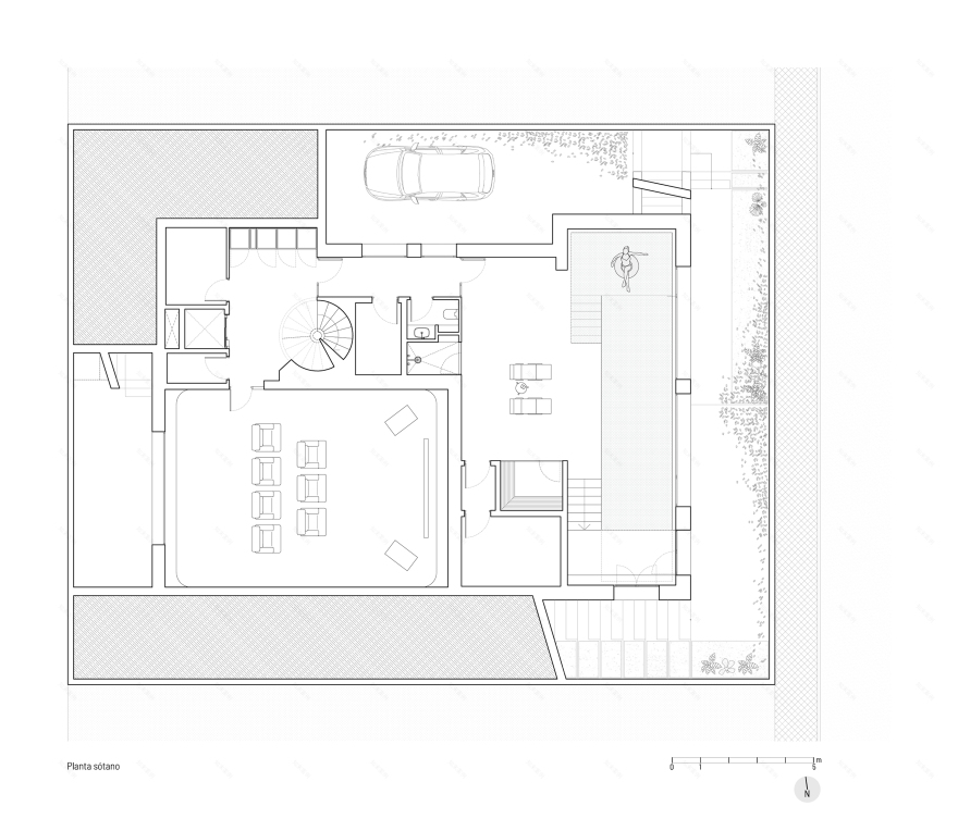
PROGRAM.
Casa introvertida is based on demanding programmatic needs that are far from conventions. The house is divided into two spaces, one above ground level and another below ground level.
In the second group we have a hedonistic space in connection with the senses, with leisure rooms. The high basement aims for the high light of English windows and courtyards. On this floor we find an area related to water and another one related to sight and sound. The water zone is seen as a carved space in the ground, like a quarry cave, and the one related to sight and sound is an audiovisual room in a specific size, a highly technological black box, key space of the house.
Above ground level we have the living areas of the dwelling. The different spaces are organized around the patio and open onto it. The living-dining room is the main space, a two-story area under the slope of the roof where different spatial relationships are established between the different spaces of the house, outdoor-indoor, first floor-ground floor, etc., where the sculptural element that stitches the house vertically arises: the staircase.
STAIRCASE.
The staircase is a sculpture inside the large, two-story sloped space of the living room. It is conceived as a free-standing staircase that curls up emerging from the ground and curls down, digging into the ground, leaving an empty space for the vertical light to pour in. Its materials follow this same idea: a metal element that emerges and rises and its excavated concrete negative. The stair treads are made of oak, a material that links concrete and steel creating the idea of a single element.
CONCLUSION.
Casa introvertida is, as it happens in certain cases, many houses into one single house that gathers experiences, dreams and memories. It is a complex, bold and unique building, the result of an intense design and architectural work. A container for a glance.
Photographer: Javier Callejas
客服
消息
收藏
下载
最近



































