查看完整案例


收藏

下载

翻译
Architects:Perkins&Will
Area :425000 ft²
Year :2018
Photographs :Lisa Logan Photography, Michael Muraz, Doublespace
Manufacturers : AutoDesk, Decoustics, Lutron, Skyfold, Alumicor, Casalgrande Padana, Gaurdian Glass, Trimble Sketchup, VicwestAutoDesk
Lead Architects :Andrew Frontini
Engineering :RJC Consulting Engineers, Smith + Andersen, Crossey Engineering Ltd., MTE Consultants Inc.
Landscape :GSP Group
Design Team : Andrew Frontini, Werner Sommer, Linda Neumayer, James Mallinson, Joanne D’Silva, Liz Tseronakis, Anna Beznogova, Edward Lin, Alan Mortsch, Michael Blois, Will Daravong, Jared Cardiff
Clients : University of Waterloo
City : Waterloo
Country : Canada
When we began working with Waterloo’s top ranked engineering school in 2007, the faculty was struggling to accommodate unprecedented growth and innovative new programs within their existing inventory of outdated facilities. This problem was compounded by the lack of available swing space and buildable sites within the confines of the campus ring road.
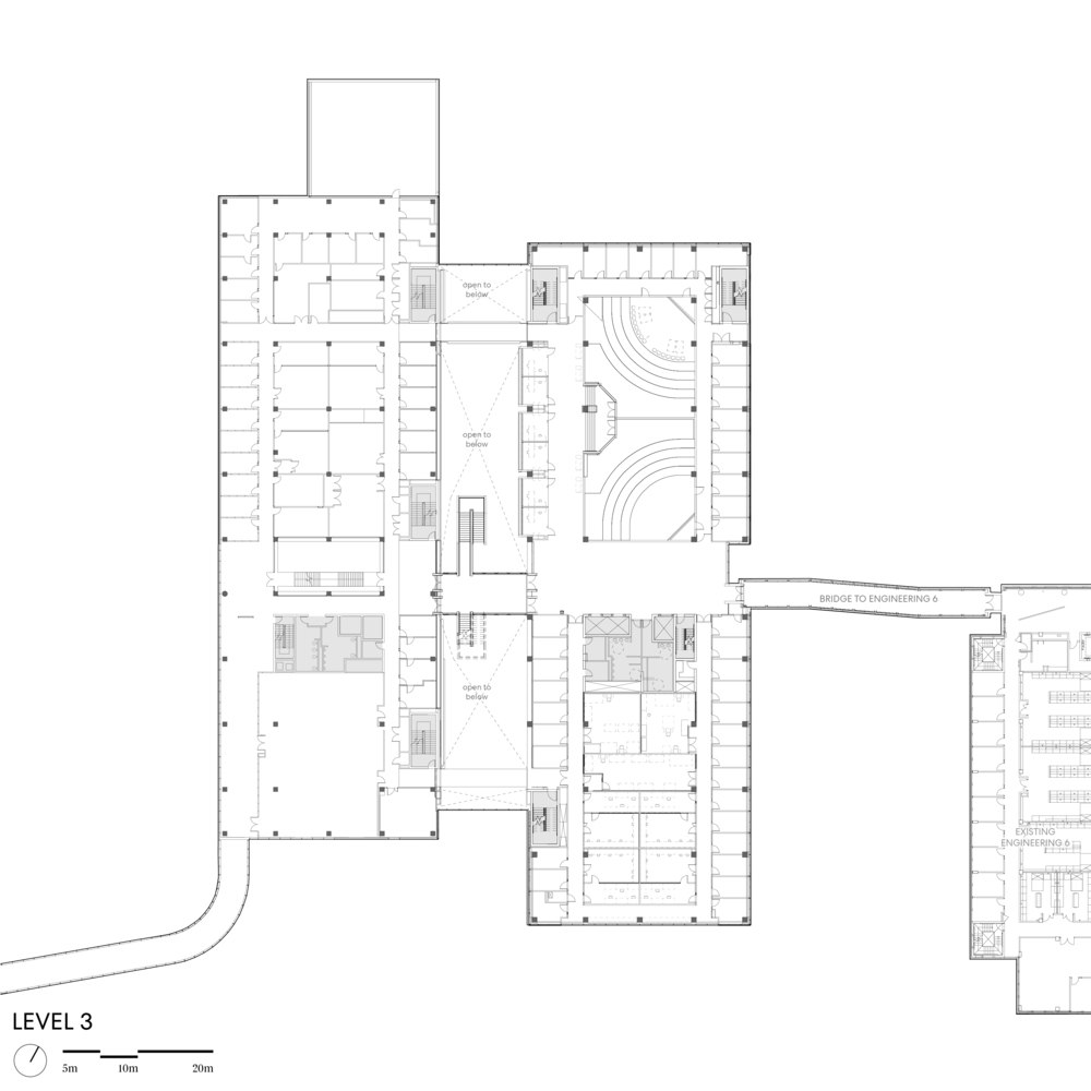
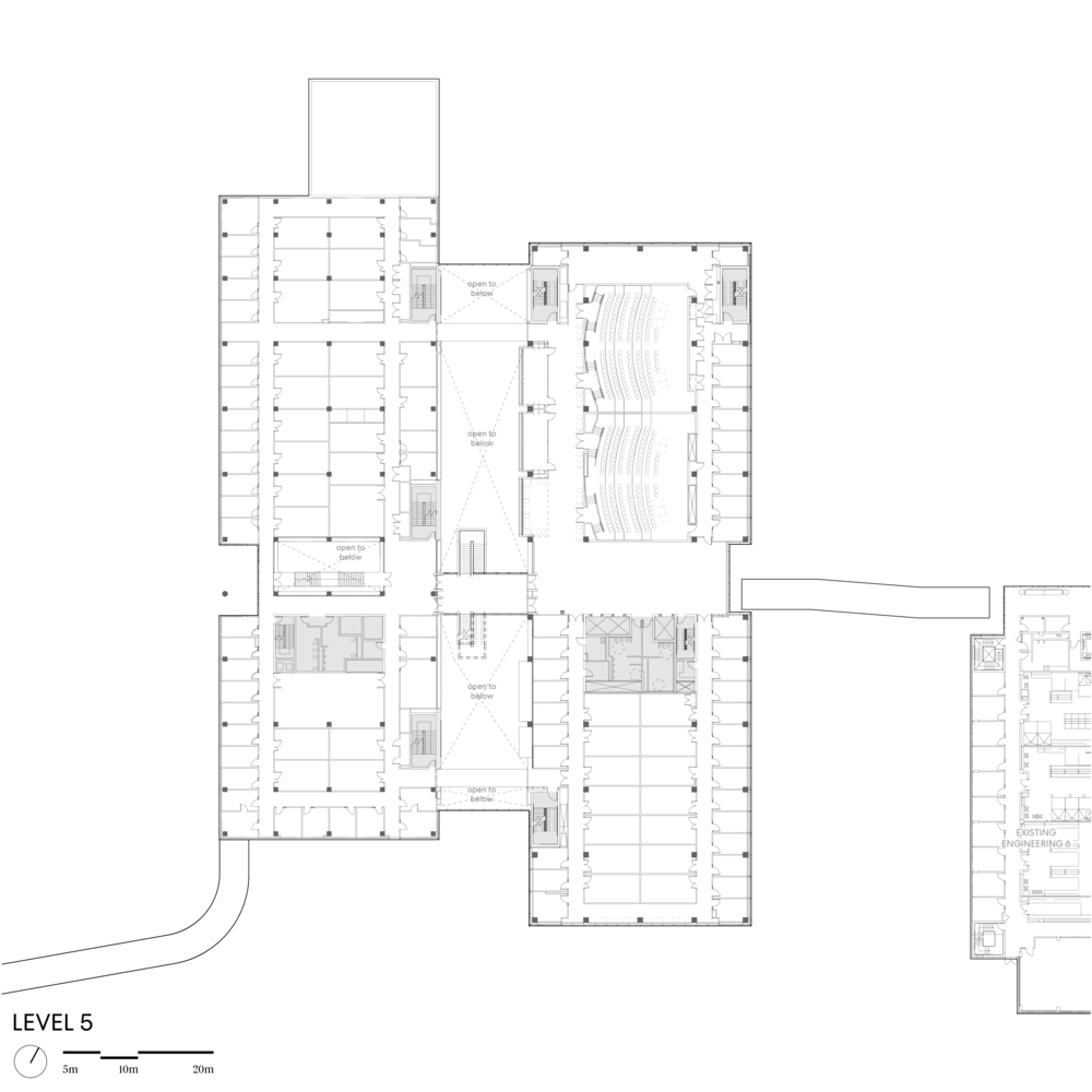
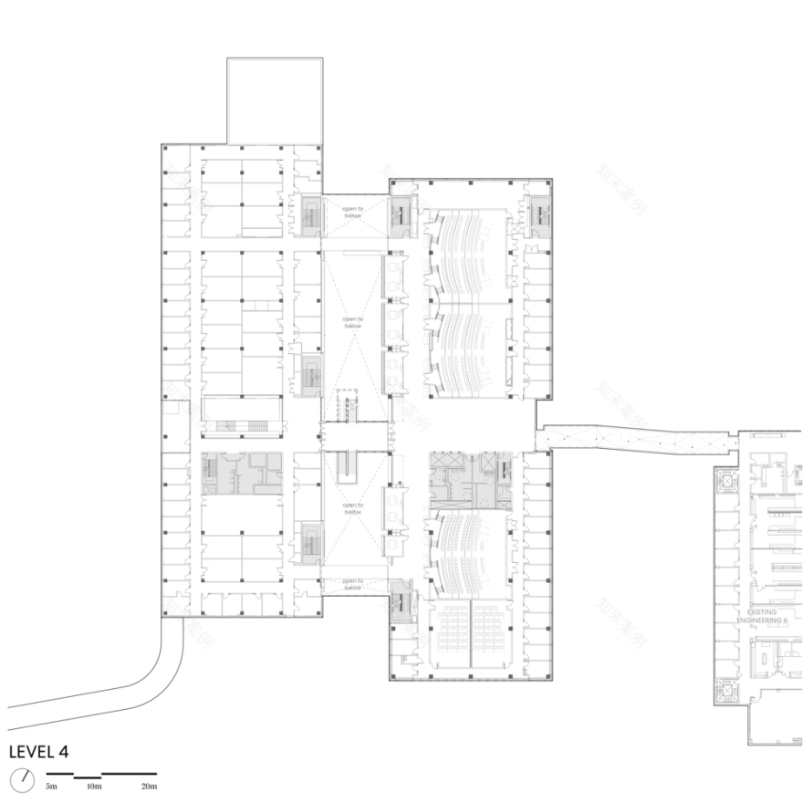
Taking a master plan approach, we worked with the client to develop a new engineering precinct, transforming an underutilized perimeter site into a vibrant academic community with a striking new entry portal to the university. Executed as separate phases over a decade, the Engineering 5 and 7 buildings provide two highly flexible containers for interdisciplinary engineering research and study that flank a dramatic central atrium that offers space for celebrating Waterloo’s unique culture. With their bold geometry and distinctive fritted glass facades, E5 and 7 establish the architectural identity for this leading institution.
The architecture of E5 and 7 works as an instrument for inspiration and recruitment, where the story of the school is constantly unfolding. The complex is designed around principles of pedestrian movement and connectivity for visitors, faculty, and students. This begins with the dramatic curvilinear bridge that connects E5 and 7 back to the main campus, enabling movement of projects and people over the regional LRT tracks. Through transparency, multi-storey overlooks and dynamic feature stairs, movement and curiosity are triggered, and the work of the faculty and students is constantly on display.
Engineering 5 marked the beginning of the transformation of Waterloo’s engineering program. The building is a hyper-flexible ‘daylight factory’ where instructional space and design studios overlook student work-bays of the Sedra Design Center. In this high bay space, undergraduate students work in interdisciplinary teams on multi-year projects. As the new face of Engineering to the campus ring road, the design of E5 gives special prominence to the Student Design Centre making student creativity and hands-on learning the new image of Engineering at Waterloo.
Engineering 7 is home to several spaces that link students to the wider business community. The Engineering IDEAs Clinic connects students and faculty in early experiential and hands-on learning based on real-world problems. The RoboHub, a state-of-the-art 1000 m³ robotics test facility, features an advanced indoor positioning system, movable environmental features, and a globally unique fleet of humanoid, aerial, ground, and magnetically levitated robots. The Conrad Centre for Engineering Entrepreneurship offers joint programs in engineering and business, serving as a platform for interdisciplinary research that converges around entrepreneurial initiatives.
The exterior facades of E7 and E5 clearly articulate diverse categories of space. Public spaces feature a highly transparent low iron glass that highlights student activity. Modular, adaptable spaces for labs and offices are clad in a fritted glass skin that emulates the pyramidal volumetrics of the building’s anechoic chamber. The fritted façade acts as virtual ‘mask’ that creates a uniform appearance across a variety of spatial conditions. Highly responsive to the play of light, the facade transforms subtly from an expression of sculpted monumentality by day to a dematerialized veil at dusk.
The atrium between the Engineering 5 and 7 creates a major space for events and the celebration of Waterloo’s engineering culture. The Atrium serves as a public realm connector for the emerging campus precinct, providing orientation to four cardinal directions. As one of the largest enclosed spaces on campus, the atrium provides a dramatic backdrop for undergraduate students’ capstone projects, serves as a signature space for University functions, and acts as the architectural forum where Waterloo’s global network can converge, launch, and celebrate.
▼项目更多图片
客服
消息
收藏
下载
最近































