查看完整案例


收藏

下载

翻译
Architects:Kengo Kuma & Associates
Area :966 m²
Year :2020
Photographs :Nelson Kon
Manufacturers : Nora, Durafloor, Hunter Douglas, Itaim Lighting Concept, Mohawk Group, OWA Sonex, Ospe floor, PortobelloNora
Country : Brazil
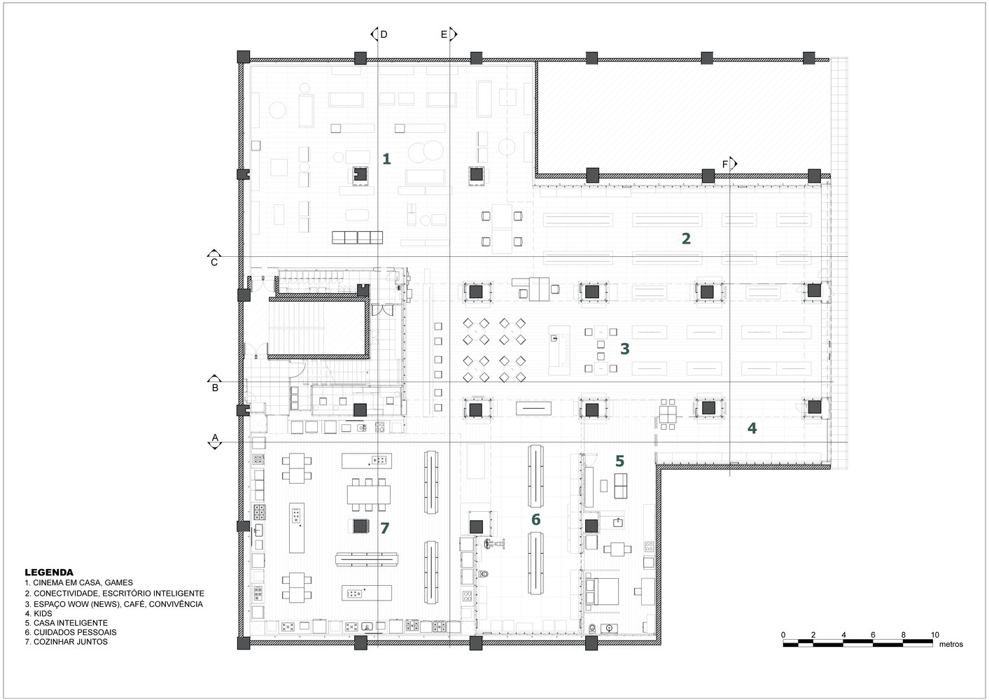
Fast Shop Lifestyle Ibirapuera Flagship store of Fast Shop, a retail chain of electronics and home appliances that operates more than 80 physical stores in Brazil. We designed a space as a house based on daily life of consumers, not a space focused only on products exhibition. The layout of the store is divided into rooms such as "News", "Home Cinema", "Cooking Together", "Connectivity", "Personal Care", "Kids" and we put the symbolic lighting in each room. The idea is to represent the habit of the human being and the family, at home, of gathering around the light.
We hope the new Fast Shop also creates a new communication between the clients and the staff. In the "NEWS" space, located in the center of the store, we hang three-dimensional fabric, like an origami that involves the space. Made with warp and weft by means of triaxial weaving, which uses three thread components that allow the fabric to maintain its pleated form for a long period of time. Its appearance changes depending on the angle and it is possible for visitors to discover a new expression, like fluid clouds. "Connectivity" - Aluminum mesh hanging in the shape of waves to express the lightness of the metal. Designed for space with creative products such as tablet, smartphones and computers, as a contemporary industrial space. "Home Theater" - Copper mesh panels with smooth texture inclined, placed to create a shaded ceiling. The panels not only create a rhythm in space, but are also designed to have an acoustic effect. In the low light space, the copper mesh panels light up gently.
"Kids" - Ambiguous chandelier designed with tension in Nylon mesh, like the Klein Bottle, is a surface on which one can move from outside to inside and vice-versa, without changing the surface. The extraordinary shape itself can look like a toy for children. "Personal Care" - Pendant lamp based on " Chōchin", traditional Japanese lantern. Created in the shape of a cube made of Japanese paper WASHI, gently illuminating the space. The simplicity of WASHI's " Chōchin " combines with clean white space. "Cooking Together" - SUDARE is a traditional Japanese blind made with horizontal bamboo slats. The material was used in a different way than usual, hanging in a curved way to create a soft environment, with a feeling of transparency. The space was "wrapped" like MAKIZUSHI, a kind of sushi that has the shape of a stick or a cylinder.
▼项目更多图片
客服
消息
收藏
下载
最近








































