查看完整案例


收藏

下载
物是人内心情绪的折射,只有将自己内心里被打动的东西放到空间里,才可能营造出情绪来。
——朱光潜《谈美》
1. “好的开头是故事成功的一半。”在过去,人们设计美甲店时多要考虑员工人数、客人访问频率或客户停留时间等客观因素。现如今伴随着空间设计文化变革和无形化组织的产生,美甲场所中的沟通距离与私密空间中的社交关系成为新的社会问题。
美甲店在现代文化的不断演变中不光是要为客户提供好的服务品质还要为员工提供家一般的安全和温暖。本项目的最大优势就是他拥有非常通透的落地玻璃,在客户的整体体验上也是非常的新颖,因为万象城对与设计和施工的要求特别高,怎么把窗户合理的利用好呢?设计师进行了仔细的思考,在大型城市建筑中,灯光就成了装饰城市的一大亮点,设计师结合文字和灯光,夜幕下带给人们感官上的新体验。
▲ 项目外观
Project appearance
▲ 项目外观
Project appearance
▲平面方案
Plane plan
▲ logo 的制作和材料 Logo production and materials
▲ logo 的制作和材料 Logo production and materials
▲ 内部细节
Internal details
从整体设计构思到细节把控,空间设计遵循品牌一贯守正创新意图,用更年轻和当代的可视化设计语言,去营造更纯粹和高级的空间气质。
▲ 生活里的艺术,艺术化的生活
Art of living and life of art
▲ 生活里的艺术,艺术化的生活
Art of living and life of art
2. 完美的呈现只为设计
Perfect Presentation only for Design
设计之初摒弃了以往美甲店所采用的过度装饰的符号化做法,以营造简约、充满亲和力的环境体验作为出发点。
▲ 内部细节
Internal details
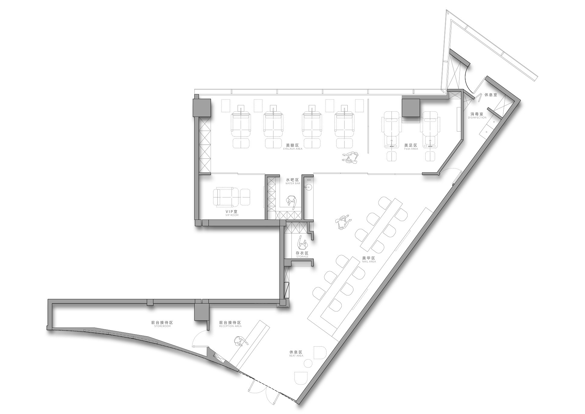
作为商场店项目,整体框架是一个不规则的空间,通过几何化的切割和变形,让空间分为六个功能区:接待区、美甲区、美睫区、水吧区、消毒室、储藏室。
▲ 内部细节 Internal details
▲ 内部细节
Internal details
▲ 内部细节
Internal details
3. 动线体验和需求实用
Practice of Traffic Flow Experience and Demand
“形式追随功能”---路易斯.沙利文
顾客有连贯的参观及体验动线,工作区也相互串联单一的取货引导动线,避免了美甲店嘈杂的环境。功能区之间相互交集,也相对私密。
▲ 空间动线的藏与露
Hiding and revealing of space’s traffic flow
▲ 空间动线的藏与露
Hiding and revealing of space’s traffic flow
▲ 空间动线的藏与露
Hiding and revealing of space’s traffic flow
空间,也是一个具有生命力、更加自在随性的生活舞台。
Space is also a stage of life with vitality and more freedom and casualness.
推开所有浮华设计,透过色彩营造的氛围,进而感受都市摩登生活的情绪、体验和精神本源。
▲ 生活里的艺术,艺术化的生活
Art of living and life of art
▲ 生活里的艺术,艺术化的生活
Art of living and life of art
▲文字细节 Text details
▲空间因物品不同,产生不同的场景和趣味性
The space produces different scenes and interests depending on different objects.
▲ 共同存在,脱离时间
Coexistence, separated from time
当我们面对一处带有年代感的空间时,我们总会首先想到两样事情:尊重空间原有的气质和保留空间中那些由时间打磨后沉淀下来的美感。
▼轴侧分析图
Axis-side Analysis Diagram
▼轴侧分析图 Axis-side Analysis Diagram
客服
消息
收藏
下载
最近
























