查看完整案例


收藏

下载
更多淀川设计作品:项目名称:(身临其境)项目地点:中国·上海·七宝宝龙城市广场
设计面积:1500
项目业主:(国茶股份)集团
项目性质:办公会所空间
设计公司:DCD Studio/淀川设计事务所
导演主创:王皓
设计团队:唐超、Andrew、袁郑亮、殷玉龙
项目摄影:朱恩龙
设计时间:2017年11月
竣工时间:2018年03月
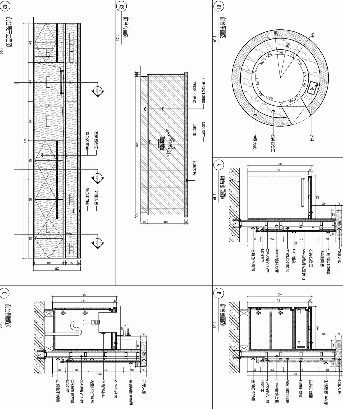
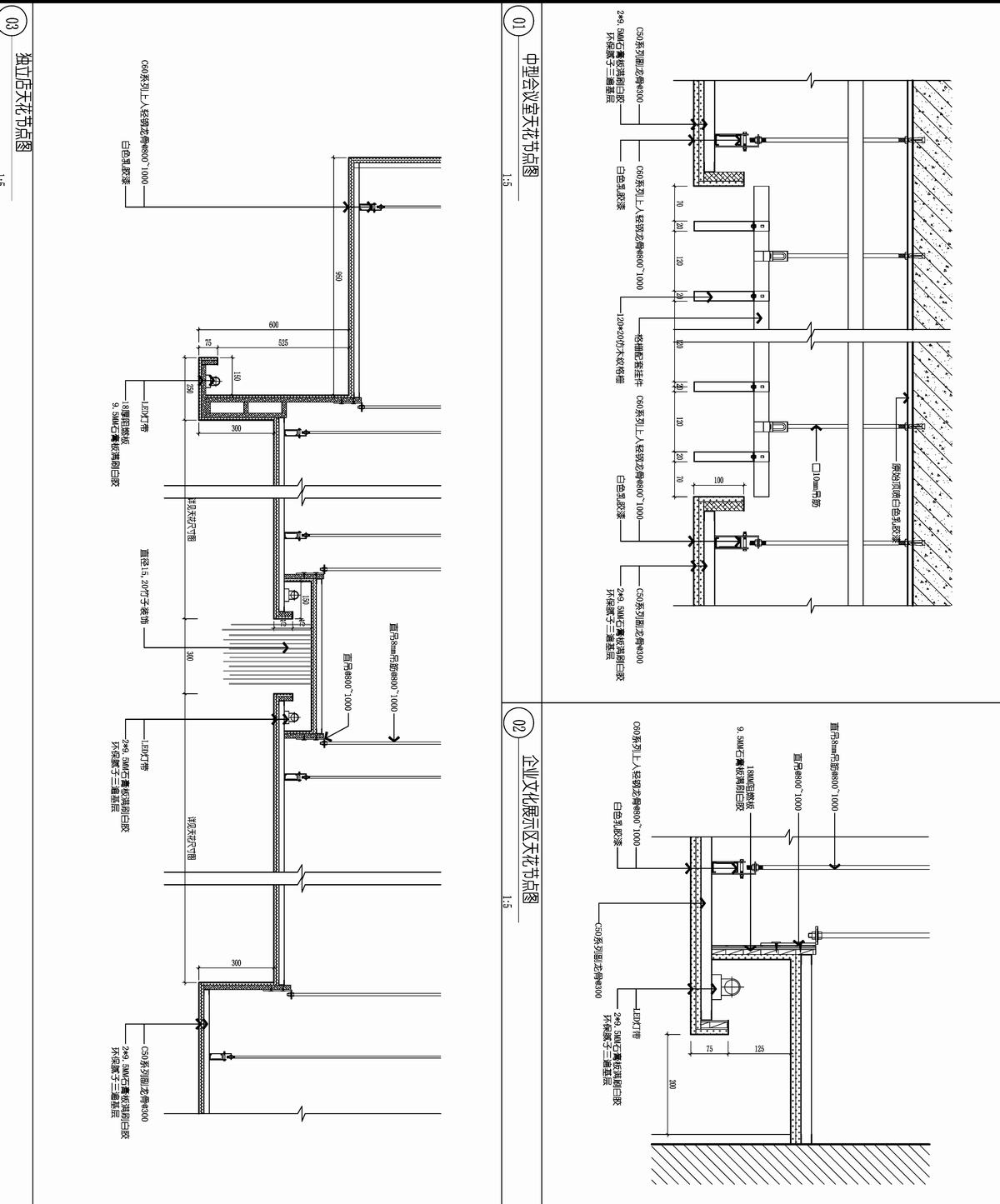
主要材料:绿竹、石板、细竹子、马槽、艺术陶罐、枯干树、白色石子、瓦片、绿植;
禅宗强调“教外别传,不立文字,直下承当,见性成佛”是要将禅的精神融入到日常生活中;亲身去体味、觉悟,即是生活禅;以中国文化中禅自由、自然的宗风为起点;在茶事中体悟禅悦,在禅悦中完成茶事;吃茶与生活禅意相通,慢慢明心见性;境,是禅境、茶境、心境、意镜;悠悠岁月中,永恒与变化一直进行着,唯一不变的是古境的禅意;
本案禅茶办公会所的灵感来自于唐代诗人刘长卿的作品《寻南溪常山道人隐居》过雨看松色,随山到水源。溪花与禅意,相对亦忘言,领悟到禅意之妙处;设计由此而来,旨在能让人获得精神惬意和心理的满足。从幽溪深涧的陶冶中得到超悟,从摇曳的野花静静的观照中,领略到恬静的清趣,溶化于心灵深处是一种体察宁静,荡涤心胸的内省喜悦,自在恬然的心境与清幽静谧的物象交融为一。希望所有人都能获得乘兴而来,兴尽而返的惬意自得的体验感受。
国茶文化是将“国茶”品牌打造成茶领域的航空母舰,我的茶馆由(国茶股份)集团投资打造管理,DCD Studio淀川设计(上海有限公司担纲室内设计;本案办公会所位于上海七宝/宝龙地产区域,也是宝龙城市广场的重要组成部分。
DCD Studio王皓先生认为,文化传承,艺术根植的历史语境需要通过现代写意手法诠释,才能碰撞出空间新的记忆。设计理念通过海派文化为引,结合当代语境解读文化符号,成功打造了国茶集团品牌风格的新标杆。
当人们来到这个与世无争的地方,一切可以归于宁静,这里屏蔽了城市中的喧嚣与浮躁,也正是设计师的初心。空间加入了东方的禅意元素,然后以上海的海派设计风格自然过渡,初步呈现出独一无二并散发着自然之美的办公会所。
(身临其境)作品历时近半年时间建造而成,室内空间形态高低起伏而建。建造期间,王皓先生亲自配合驻场及跟踪,现场指导施工,解决施工细节问题,才让设计无折扣的完美落地!中庭禅意品茶区由5个BOX相隔组成,前厅入户大堂及过道在设计环节用中国文化的对景,框景,造景的手法来颠覆传统办公会所的设计理念,在中庭区包厢的视觉感上犹如漂浮在空中的渔船,整个BOX形态高低起伏、相互交错,内与外之间以走廊相连接,在包厢体验过程中,可以在窗外遥看上海虹桥飞机降落在地面上或起飞的整个过程,同时也可以看到上海东方明珠的顶层部位。
中庭共计5间禅意包间,空间还设有吧台,独立展示店和休闲户外茶室;每间茶房都设有入户的独特设计,展现出东方新禅意之美,同时也给客人及朋友带来了私密的体验。其中在中庭还有几处不同的户外体验的品茶区,设计师提取了户外禅意场景的元素到室内当中,使整个格调栩栩如生,悠然自在;窗的设计也采用借景的手法,客人在茶室透过窗户便能看到窗外美好的景致,蓝天白云,日出日落,户外大自然馈赠的美景犹如挂画一般,透过这些窗户展现在眼前,自然和谐,宛如天成;空间功能分区布局巧妙,恰到好处。室内与周边环境完美融合,却又出类拔萃,呈现出完美的禅茶办公会所空间。个人简介王皓。
DCD淀川(上海)设计事务所
执行创意设计总监
/导演主创
国内注册高级室内建筑师
CIID
中国建筑学会室内设计分会会员
国内注册艺术家设计师协会会员
中国室内设计师协会/专业会员
获奖经历:2017
年度TOP100
国际影响力华人设计师大奖
2017
年度金创意奖特邀设计实战导师
2017荣获
中国建筑室内设计师网新材料十佳办公空间设计奖
2015-2016
作品《素静》中国品牌设计最具原创设计师大奖2016年度获第十一届中国国际建筑装饰及设计艺术人物大奖2016年度荣获第四届ID+G金创意奖杰出中青年设计师奖2016年度《素静》荣获第四届ID+G金创意奖办公空间十佳设计奖2015年度获中国艾特奖餐饮空间入围作品设计奖2014年度获金堂奖办公娱乐空间入围作品奖2014年度获中国室内设计大奖赛CIID餐饮工程优秀奖2013年荣获金堂奖中国室内设计年度十佳住宅公寓设计师称号2012年国内十大最具影响力的资深室内设计师设计理念设计是在虚实关系中的对比,设计是一个非常抽象的,是在有和无之间寻求平衡,是把大自然物象抽象化与现实需求的反复平衡,更是贴近自然人性化的心理需求。
以中国文化中禅风为起点整个办公空间加入了中国元素展现出东方新禅意之美欢迎点评认真评贴奖励10-200金币!
客服
消息
收藏
下载
最近































