查看完整案例


收藏

下载
建筑师 朱周空间设计
地址 中国,上海文定路199号
设计团队 周光明、洪宸玮、彤云
设计师 王凯弘,白建玢
建筑面积 2400.0 sqm
项目年份 2016
摄影师 隋思聪
联合办办公(Coworking Space)正在中国受到欢迎,小型商务的崛起,如何在有限的资源下开创自己的事业,方糖Fountown便是其中一个打着前锋的创新工作下的联合办公品牌。「希望在创业的道路上帮你加点糖」这是方糖的品牌理念,可以让所有使用办公室的创业顾客不仅在服务上可以帮你一把,更希望提供一个更好的创业环境。有别于传统思考下我们对办公室的印象,如何让人在里面可以多被激发活力,让你享受更多工作的乐趣,这是我们在接收到这个项目的时候最大的需求考量。
在文定路这个项目,我们用「Farm Land 创业农场」的概念,打造一个孵化、孕育的基地,所以我们在空间的布局上,处处都有让你随时补充体力、转换心情的地方。因建筑本身围绕着一个大天井,有着先天的采光条件,因此我们将自然光最大化的引进到室内,而并非封闭的状况。
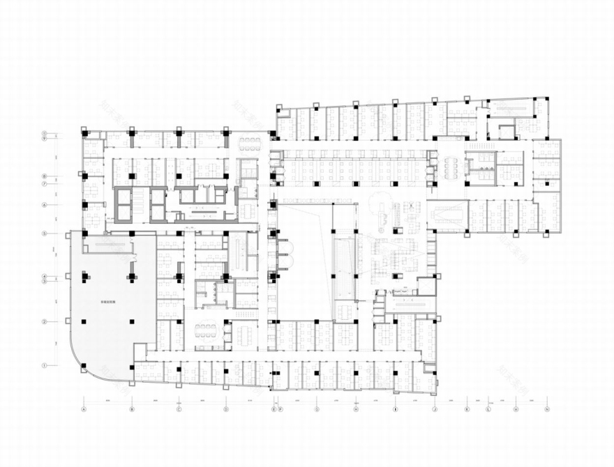
以一人为单位起跳的联合办公区域,整体在座位上的分布有426个位子,除了在「氧气胞」的补充打气,更重要的是每个人工作状态的专注、与打扰降至最低。在个人公位的考虑上,我们提供只需要短暂停留的区位,供灵活使用,成为公共区域的一道风景,可以随意在吧台、沙发,窗边找到适合你的一角,而您也可以拥有您自己的专属个人工作站。
具包覆性但且开放的隔断,让使用者可以更专注眼前的屏幕,而两人以上的空间考虑的为长期的用户,安全上結合刷卡进出,每个房间门外并提供可替换的招牌区块,便於管理上的房号区;而置顶的落地镜面,让你随时整理仪容,即便在草创的阶段也不马虎。同样的基於隐私上的考量,我们将各包房及会议室的玻璃中段取雾面貼膜,不仅不干扰采光,更可以保障您商务上的隐密。
我们一以贯之的设计概念,灌溉初创工作的工作者,提供需要的养分,就如同品牌本身概念的那一颗糖,我们在这项目上提供的不仅仅是环境的舒适,更希望提高工作的乐趣,打造一出一个工作游乐场。
客服
消息
收藏
下载
最近






















