查看完整案例


收藏

下载

翻译
Architects:Robert M. Gurney Architect
Area :2280 ft²
Year :2019
Photographs :Anice Hoachlander
Manufacturers : AutoDesk, Kalwall®, Louis Poulsen, Western Window Systems, Miele, Acor, Affinity Woodworking, Dinesen, Graff, Kohler, Toto, Trimble Navigation, Velux, Windsor Windows & DoorsAutoDesk
Lead Architects :Robert M. Gurney
Engineering :United Structural Engineers Inc.
Landscape :Campion Hruby Landscape Architects
Consultants :Washington Landmark Construction
Design Team : Robert M. Gurney, Claire L. Andreas
Clients : Private Owner
City : Washington D. C.
Country : United States
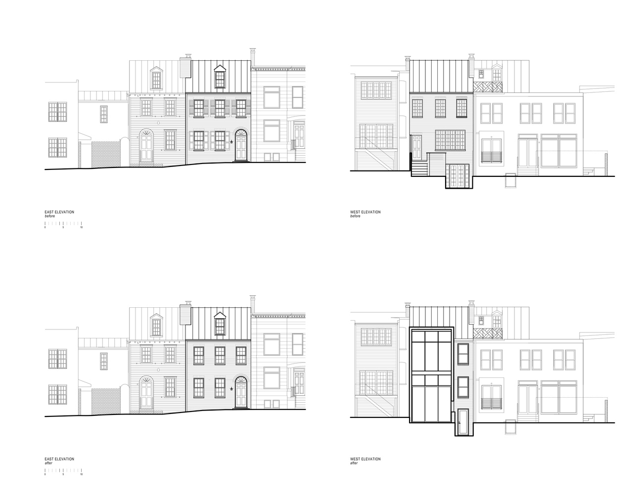
Located in historic Georgetown, this project transforms a tiny, traditional rowhouse into an open, modern dwelling for a family of four. The existing house comprised 2 bedrooms and 1½ bathrooms.
The kitchen was in the basement and the family of four shared one bathroom. Living areas were compartmentalized and disconnected from a long linear garden. A narrow addition allows for access to the basement and an egress window for a middle bedroom on the third floor.
The two bedrooms in the existing house are redesigned with ceilings taken up to the roof line – exposing the dormer in the front and adding a skylight in the back. These rooms are now flooded with natural light. The rooms in the addition, a master suite on the second level with a living room below, benefit from tall ceilings that counteract their narrow widths.
Glass is used to extend these interior spaces to the exterior and make them feel generous and calm. Exposed brick and stone walls, Danish Douglas fir floors, and rich cabinetry create a warm but minimal interior aesthetic. This clean modern addition and whole house renovation is an honest witness to its existence in today’s realm, and not a throwback replica of the past.
▼项目更多图片
客服
消息
收藏
下载
最近

































