查看完整案例


收藏

下载

翻译
Architects:Schmidt Hammer Lassen Architects
Area :22310 m²
Year :2018
Photographs :Adam Mørk
Lead Architects :Kristian Ahlmark
Acoustics :Peutz
Contractor :Besix & Strukton
Mechanical & Electrical :W4Y, Deerns
Structural Engineer :IMD
Client : HU University of Applied Sciences
M&E : Deerns/ W4Y
Acoustics And Fire Safety : Peutz
Sustainability : BREAAM Outstanding
Fire Safety : Peutz
City : Utrecht
Country : The Netherlands
Until four years ago, the HU University of Applied Sciences, a school founded in 1995 through the merger of several previously independent institutions, was spread across some 30 buildings in Utrecht, The Netherlands. The university prioritized consolidating its footprint into five adjacent buildings on its Utrecht Science Park campus, and Schmidt Hammer Lassen Architects’ new structure is the last of the five to be completed. The 22,310-square-metre Heidelberglaan 15 building is home to eight educational institutes in the economics, management, information communication and technology, and media and communication sectors.
“The HU University of Applied Sciences was a spatial design challenge with more than 5,800 students, faculty and visitors moving through the 3,000-square-metre footprint of the building daily,” said Kristian Ahlmark, Partner and Design Director Copenhagen at Schmidt Hammer Lassen.
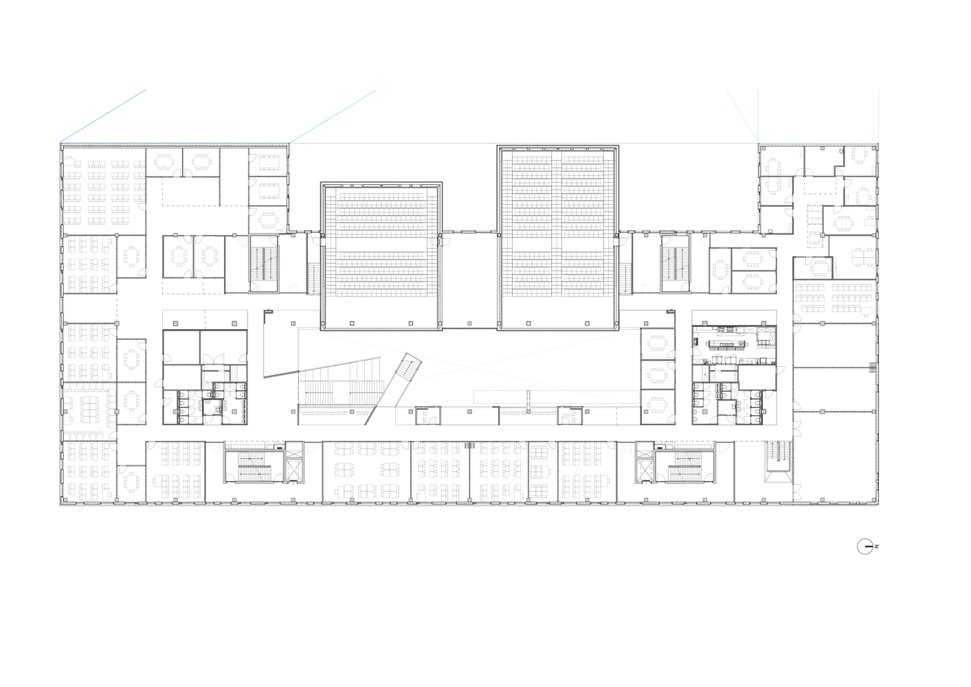
When viewing the building from Bolognalaan street that runs along the east side of the building, two 90-seat lecture halls, an advanced television studio for the media school, and a meeting center can be identified by the solid patches of the cladding.
On the opposite side of the building, a new inner courtyard is created towards the neighboring student housing block. The volume steps up towards the east façade allowing it to connect with the existing buildings and activating it from all sides.
Creative use of color is demonstrated on the exterior façade that features neutrally-colored anodized aluminum cladding, with one color dissolving into the next to create a gentle patchwork effect.
The various colors that fade into each other represent the interwoven design of the interior layout that allows users of the school’s eight institutes to intersect within the building.
The two large, ground floor lecture halls jut out from the façade into the courtyard and serve as shelter for bicycle parking beneath them.
Moving through the doors of the main entrance, a softly-lighted vertical space opens up with a web of stairways, escalators and indoor bridges crisscrossing overhead. The white, off-white and timber color scheme of the university’s interior is accented with a pop of chartreuse that lines the three escalators that transverse the atrium.
Also placed throughout the building are more than 60 classrooms, two smaller lecture halls that each seat 90 people, and 20 project group rooms, all of which are shared across institutes. Timber boxes placed along the central atrium are concentration workspaces fit for one or two people to meet or study. Demonstrating the efficient use of space throughout the design, desk surfaces are built behind the walls overlooking the atrium.
The ground floor of the university is designed to erase the boundary between indoor and outdoor by putting educational activities on full display through full-length windows.
This transparency is also incorporated into the design of two lecture halls on the ground floor. Seating 200 and 260 people respectively, the large lecture halls feature glass walls and a retractable wall similar to a garage door that can open up completely to allow connectivity with the main entrance hall.
The ground floor is completed with a student-run café and other dining options, technical facilities on the south side of the floor, and informal meeting spaces with an abundance of built-in seating.
Moving up through the atrium, each of the university’s institutes has a dedicated student and faculty center within the building, and they are spread out among the top six floors. The centers serve as the beating heart of each department and include institute-specific space and facilities for staff and students to meet and cross paths.
The exterior and interior are also linked by the moiré pattern of the aluminum cladding that can be found not only on the exterior façade but also on the internal staircases. The perforation on the staircases play a role in the acoustics of the space, and beneath them are sound absorption materials that dampen the noise made by the 5,800 people that use the building daily.
▼项目更多图片
客服
消息
收藏
下载
最近











































