查看完整案例


收藏

下载

翻译
Architects:Kraaijvanger Architects
Area :27700 m²
Year :2016
Photographs :Ronald Tilleman
Manufacturers : GIRA, De Vorm, DerakoGIRA
Lead Architect :Hans Goverde
Construction Physics :Royal Haskoning
Landscape :Copijn
Engineering :Envo Groep BV, Laudy construction
Construction :Sittard, Laudy construction
Electrical Engineer Consultant :Royal Haskoning
Transport Consultant :Royal Haskoning
Engineering Consultant :Royal Haskoning
Electrical Engineering :TES Installatietechniek, Laudy construction
Construction Consultants :WSM Constructeurs, Heythuysen
Team For Kraaijvanger Architects : Hans Goverde, Vincent van der Meulen, Bart van der Werf, Edward Timmermans, Jan-Hein Franken, Annemiek Bleumink, Anja Mueller, Hiroko Kawakami
Lead Interior Architect For Kraaijvanger Architects : Daniela Schelle
Team For Kraaijvanger Architects (Interior) : Daniela Schelle, Remco Visser, Bart van der Werf and Patrick Keijzer
Office Concept Consultant : Veldhoen & Company
Construction Physics / Fire Safety : Royal Haskoning, Nijmegen
Construction Costs : Houten
Advisors C2 C : C2C ExpoLab
Fire Safety : Royal Haskoning
City : Venlo
Country : The Netherlands
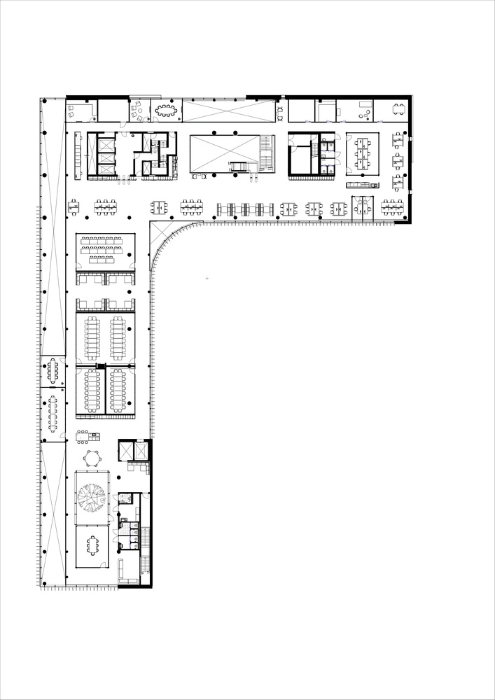
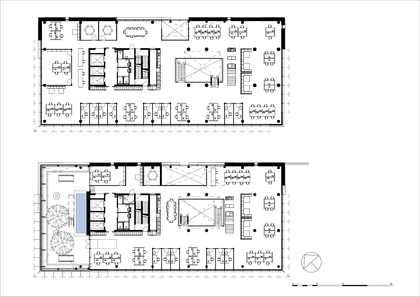
The Venlo region is the world’s first to fully embraced the principles of cradle-to- cradle (C2C), not only did they set this goal for themselves - all products and materials, at all levels of operation, must be 100% reusable and environmentally friendly in production, use and re-use - they also actively attract companies and entrepreneurs with these ambitions. It is therefore logical that when the need for new municipal offices arose Venlo commissioned this project to be C2C.The sustainable and transparent City Hall is an important step in the development of the Maaswaard district, located on the east bank of the river Meuse. The design includes office space, a plaza, a public hall with exhibition space, meeting rooms, a garage and a bicycle parking for visitors and employees.
The town hall draws services that were previously spread across Venlo together in an open and accessible building.The most striking element of the building is its green façade, with 200m² currently the largest in the world; more than 100 different plant species in the façade contribute to biodiversity and a cleaner environment. The adjacent provincial road is a substantial source of pollution, the façade filters 30% of NOx and SO3 from the air and offsets the particulate matter generated by 3000m² of motorway.Warmth collected by the greenhouse on the top floors provides heating for the building. In combination with the green façade, a solar chimney and heat storage in the soil it functions as natural air conditioning, circulation and climate control.
The open and uncluttered public hall on the ground floor houses the municipal service desks, while office floors in the tower above focus on a healthy working environment, with a wide variety of individual and adaptable workspaces. Daylight is let in as deep as possible thus minimizing energy consumption.
The eye catching core of stairs and voids form the central link between floors, being a place of interaction and inviting physical activity the core is also designed to allow for a natural airflow and replace the need for mechanical ventilation.Everything in the building is designed with circularity in mind. Where daylight is not adequate LED is used. The water cycle is aimed at minimal wastage, rain and water from sinks is purified by a constructed wetland roof for watering the green facade and flushing toilets.City Hall Venlo is a tangible proof of a sustainable vision.
All suppliers are C2C certified, sometimes along the way. Thanks to material passports all products used are catalogued and at the end of their life in the City Hall suppliers take their products back for high-grade re-use.
The construction is future-proof; the interior is built independently of the supporting structure and thus leaves a possible change of function a future option. On a smaller scale there is room for unforeseen developments in the field of sustainability, all building-related systems can be replaced without major interventions.
▼项目更多图片
客服
消息
收藏
下载
最近




















