查看完整案例

收藏

下载

翻译
Architects:KPF
Area :24000 m²
Year :2018
Photographs :Tim Griffith
Manufacturers : EQUITONE, Campolonghi, China Southern Glass, MetalPlas, PPG, Quarella, Stone SourceEQUITONE
Structural Engineers :KTP Consultants
Greenmark Consultant :Building System & Diagnostics Pte Ltd
Geotechnical engineer :KTP Consultants
Lighting Consutlant :Lighting Planners Associates
MEP Engineering Consultant :TY Lin International Group
Landscape :Grant Associates
Façade Contractor :Yuanda
Contractor :Woh Hup
Design Director : Bruce Fisher
Senior Designer : Bob Graustein
Project Manager : Debra Asztalos
Client : Tuan Sing Holdings
Associate Architect Team : A61
Façade Consultants : Meinhardt
Country : Singapore
The design of 18 Robinson synthesizes the unique conditions that define the urban, environmental and cultural context of contemporary Singapore, resulting in a signature, boutique, and sustainable retail and office tower.
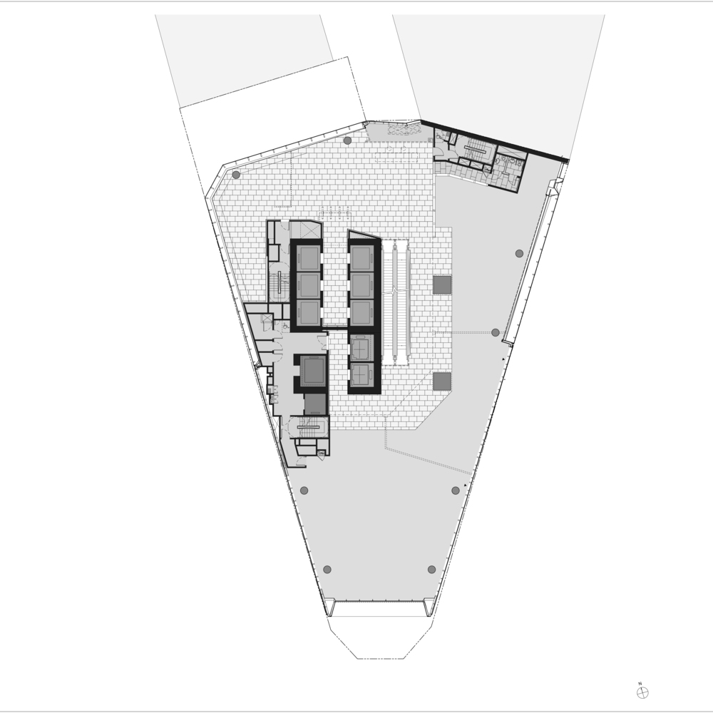
Located at the terminus of the V-shaped intersection of Market Street and Robinson Road, 18 Robinson avails the odd site shape through the balanced elements of the faceted tower. Two primary volumes, a hovering crystalline office tower and a retail podium, make up the principle building elements. Keeping with Singapore’s Landscape Replacement Area policy, 18 Robinson offers publicly accessible green space that is equivalent to the site area. A landscaped podium and rooftop Sky Garden feature planted trees, natural ventilation, and views across the city.
The podium is elevated above the street, enhancing the spaciousness and continuity from the ground level entrance into the atrium garden. The atrium forms the nucleus around which the office lobby, retail, and F&B are organized. Urban windows facing Robinson Road expose retailers and internal activity while the podium’s materiality and faceted design form a contextual relationship with the angular roof form and terracotta of Lau Pa Sat.
20 office floors extend elegantly above the podium, maximizing the building height and marina views. The angled composition of the tower serves to increase access to natural light, mitigate direct views into adjacent towers, and reflect light to create a gem-like beacon for Singapore
▼项目更多图片
客服
消息
收藏
下载
最近

































