查看完整案例


收藏

下载

翻译
Architects:OZ Architects
Area :90000 m²
Year :2021
Photographs :Marcel van der Burg, Mark Kuipers, Valentijn Kortekaas
Lead Architects :Chris Zwiers, John Bosch, Oresti Sarafopoulis
Landscape :Karres en Brands
Engineering :OZ
Design Team : Chris Zwiers, John Bosch, Oresti Sarafopoulos, Cees den Ouden, Ewout de Jager, Farida de Vries, Gijs Tegelberg, Hesh Fekry, Jan Hijlkema, Jaime Pérez Galindo, Javier Oyanarte Callego, Joanna Wnuk, Jorn van Popta, Maarten Verhelst, Martin de Jong, Rogier Bezuijen, Rogier Söhne, Sander Klein, Thijs Ultee, Thom Pegman, Wellae el Rowidi, Zachary Ropel-Morski
Clients : Blauwhoed
Collaborators : Z-as maquettebouw
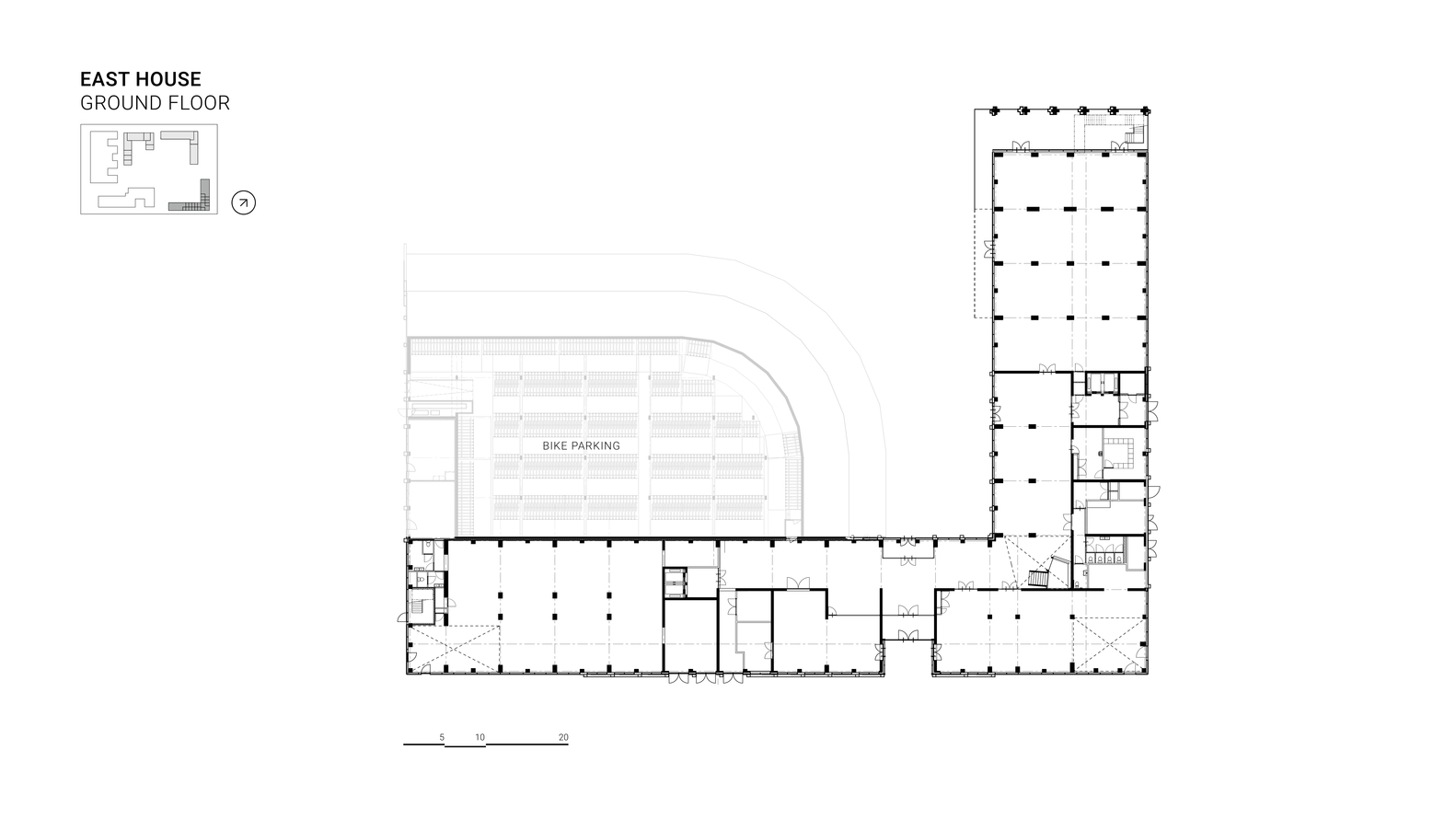
Parking Area : approx. 12.000 m2
City : Amsterdam
Country : The Netherlands
OurDomain Amsterdam Southeast, located on a knowledge axis consisting of educational institutions and student housing in Amsterdam, sparks a new pulse in the area. Strategically located next to an academic hospital and train station, the campus with a critical mass of approx. 1,500 apartments and amenities introduces its first residential building into a predominantly office area. This new campus is the catalyst that ignites the long-desired change from a mono-functional office area into a lively, multifunctional city district. The urbanistic objective of the OurDomain campus is to introduce fundamental change, generate new connections, and facilitate social space that inspires its users.
All stakeholders considered the surrounding larger transformation area (known as Amstel III) problematic. The location, set up as an office area, has an unattractive appearance. A hospital is one of the main stakeholders in the area. Social safety is a point of attention. Many of the current office buildings are free-standing creating islands. These islands were created by centering the buildings with water and greenery. Meanwhile, there were positive ongoing developments such as several start-up initiatives. The big question was: how to unite this divided area in such a way that it becomes a whole? With the plan for the OurDomain campus, a connection was realized as a first step for the further development of the transformation of the area as a whole.
The choice for a campus community at this location is special because it is the first time that people can live in this part of Amsterdam. The idea to implement a campus relates to a current Amsterdam housing issue: a great shortage of housing for students and young people. In order to make this residential function possible the municipality of Amsterdam amended the zoning plan in 2011 to permit residential units, at the request of market parties. In 2014 OZ, together with consultant Fakton, developer Blauwhoed, real estate owner LSI, and investor Greystar, researched the possibility of introducing a large number of apartments. It was investigated whether a new campus for young adults next to the hospital responded to the demand for more youth housing. The results were positive and that is how the fundamental plan for an area-oriented approach was born. Ultimately, the interest of Greystar in this project was decisive. The American investor was already working on a campus concept in a part of Amsterdam Southeast and also saw the possibility of this new campus. The municipality of Amsterdam agreed on the effectuation.
A new tenant for an empty office building and parking garage on the location of OurDomain could not be found and the area was socially unsafe. For these reasons, it was decided to demolish both buildings. The area looked cluttered with a lot of fencing, and the public space was not maintained well. A bit desolate and inaccessible. Students had also reported a sense of anonymity and insecurity.
The main urban development objective for the area was to connect functions, routes, and surroundings to the campus. The public space, at first an unattractive place to stay, was the basis for the campus plan. The layout of the public space ensured cohesion in the plan area, the community campus, and the medical campus as a whole. A high-quality public area was essential, because of the residential function of the community campus. The unique character of each of the three campus buildings reflects the diverse character of the area with all independent office buildings. OZ chose to make three different partners responsible for each of the individual designs.
The architecture strengthens the relationship with the public space. The connection of the outdoor space to the ground level of the three buildings is very important to create one community. Openness is a keyword that is reflected throughout the campus. Water and greenery no longer act as dividing elements but were transformed into connections. The cycling and running routes are more integrated than before. Continuous routes connect the campus with the metro station, hospital, and other surrounding buildings. The routes in the plan are connected to squares, which have various functions and activities. Residents meet here, play sports or organize a BBQ. The public functions located in the plinth are meant for the residents of the community campus.
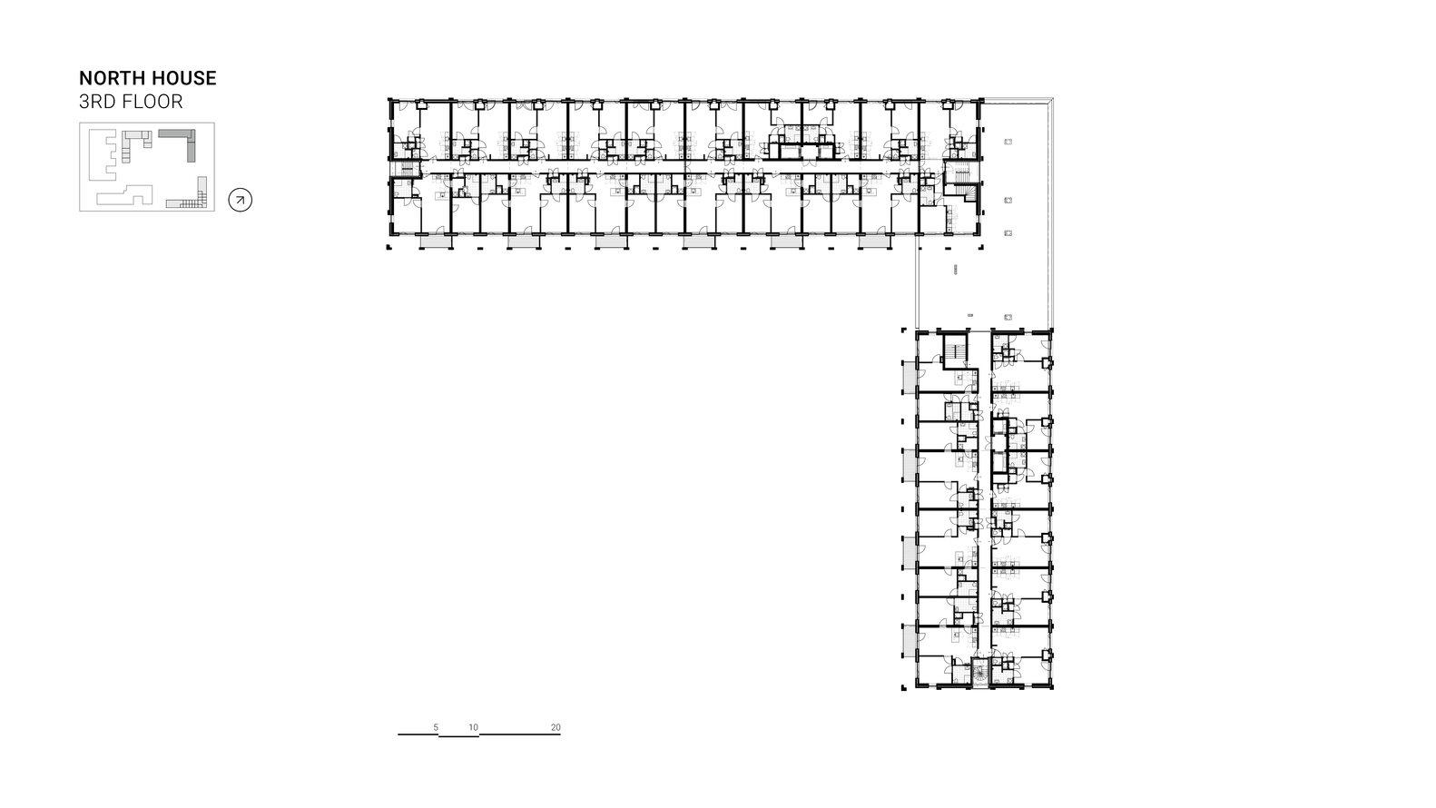
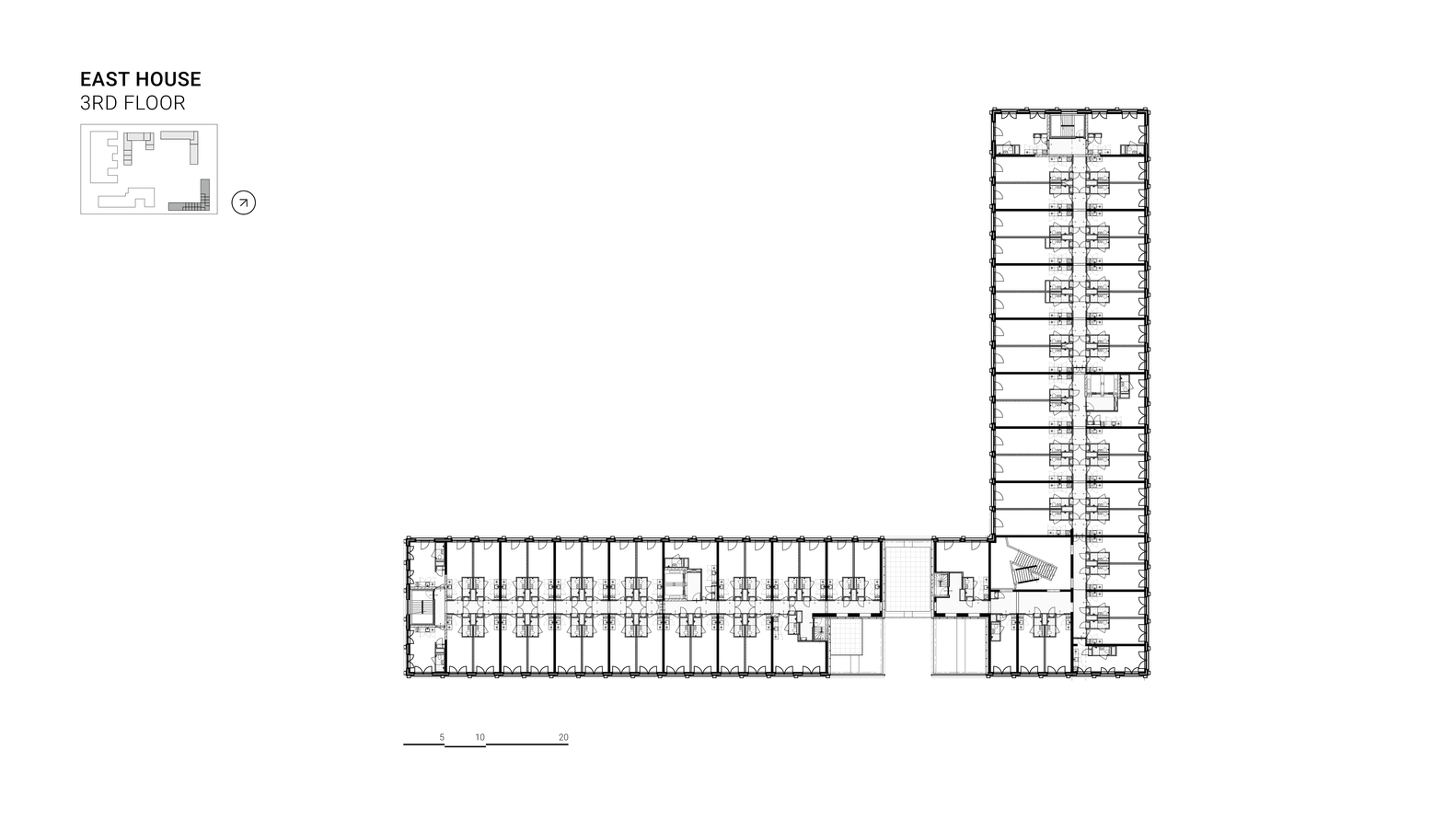
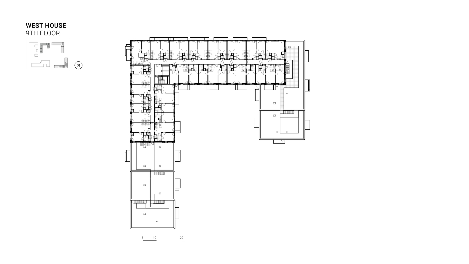
Inserting three large housing blocks (East House, North House, and West House) around an articulated park allows for a recognizable residential atmosphere in a predominantly office location. The three blocks, each with an independent identity, are designed to be cornerstones that mark the park boundary. Together with the two existing buildings, which will be transformed into student housing and medical startups, the campus will grow into the pivotal center of the area. The lush, inviting landscape design by Karres en Brands adds articulated topography to the park. The residual soil of excavating the underground parking garage is used to make small-scale hills that render local quality, give the area a strong identity, and inspire people to make use of it.
▼项目更多图片
客服
消息
收藏
下载
最近








































